Студопедия

КАТЕГОРИИ:


Архитектура-(3434)Астрономия-(809)Биология-(7483)Биотехнологии-(1457)Военное дело-(14632)Высокие технологии-(1363)География-(913)Геология-(1438)Государство-(451)Демография-(1065)Дом-(47672)Журналистика и СМИ-(912)Изобретательство-(14524)Иностранные языки-(4268)Информатика-(17799)Искусство-(1338)История-(13644)Компьютеры-(11121)Косметика-(55)Кулинария-(373)Культура-(8427)Лингвистика-(374)Литература-(1642)Маркетинг-(23702)Математика-(16968)Машиностроение-(1700)Медицина-(12668)Менеджмент-(24684)Механика-(15423)Науковедение-(506)Образование-(11852)Охрана труда-(3308)Педагогика-(5571)Полиграфия-(1312)Политика-(7869)Право-(5454)Приборостроение-(1369)Программирование-(2801)Производство-(97182)Промышленность-(8706)Психология-(18388)Религия-(3217)Связь-(10668)Сельское хозяйство-(299)Социология-(6455)Спорт-(42831)Строительство-(4793)Торговля-(5050)Транспорт-(2929)Туризм-(1568)Физика-(3942)Философия-(17015)Финансы-(26596)Химия-(22929)Экология-(12095)Экономика-(9961)Электроника-(8441)Электротехника-(4623)Энергетика-(12629)Юриспруденция-(1492)Ядерная техника-(1748)

Крупноблочные здания




 

Конструкции крупноблочных зданий являются полносборными. Наружные и внутренние стены монтируются из сборных конструкций заводского изготовления массой до 5 тонн.

Для зданий высотой до 5-ти этажей применяют бескаркасную, конструктивную систему с продольными несущими стенами, а для зданий повышенной этажности - с большим или смешанным шагом поперечных стен.

Наружные стены в пределах высоты каждого этажа членят по горизонтали на два, три или четыре ряда блоков.

Чаще всего для жилищного строительства применяют двухрядную разрезку (рис. 118.).

Крупные блоки наружных стен изготавливают из легких бетонов марок М-50, М-75, М-100 плотностью не более 1600 кг/м3, а блоки внутренних стен - из тяжелого бетона марок М-150 и М-200.

Крупные блоки наружных стен подразделяются на простеночные (рядовые, угловые, доборные); поясные (рядовые, угловые, доборные); перемычечные, подоконные, цокольные (рядовые, угловые, доборные); парапетные, карнизные (рис. 119.).

Горизонтальные и вертикальные стыки блоков наружных стен в швах разрезки с внешней стороны герметизируют. В вертикальных стыках устанавливают утепляющие вкладыши (рис. 120.).

Крупные блоки внутренних стен подразделяют на стеновые, вентиляционные и специальные: электроблоки, блоки лестничных клеток, чердака и др. Эти блоки в пределах этажа могут иметь однорядную и двухрядную разрезки. Наиболее распространена однорядная разрезка.

Прочность и устойчивость обеспечивается:

- подбором соответствующих марок по прочности на сжатие;

- кладкой стен на растворе с перевязкой вертикальных швов;

- замоноличиванием вертикальных стыков между блоками легким бетоном

марок М-75 и М-100;

- стальными связями между блоками наружных и внутренних стен;

- опиранием перекрытий на стены по слою цементно - песчаного раствора и стальными связями поясных и перемычечных блоков с настилами перекрытий и покрытий.

Кирпичные блоки до 1м3, т.е. весом до 3т, изготавливают заранее на кирпичном заводе и, реже, на строительной площадке.

Основной формой крупного кирпичного блока является параллелепипед с четвертями, расположенными так, что при укладке в стену четверти соседних блоков образуют колодцевые пазы, заполняемые кирпичным боем на цементном растворе. Устанавливают блоки на стене краном при помощи специального клещевого захвата.

Для изготовления кирпичных блоков применяется легкий кирпич (дырчатый, щелевой). Перемычечный блок имеет комплексную конструкцию с железобетонной плитой снизу (121.).

 

ДЕТАЛИ СТЕН ИЗ КРУПНЫХ ЛЕГКОБЕТОННЫХ БЛОКОВ

 

а – порядовка наружной стены; б – порядовка внутренней стены; в – разрезка наружной стены; г – конструктивная схема фрагмента крупноблочного здания;

д – парапет в здании с чердаком; е – парапет в здании без чердака.

Рис. 118.

ОСНОВНЫЕ ТИПЫ КРУПНЫХ БЛОКОВ СТЕН ЖИЛЫХ ЗДАНИЙ

 

а – блок наружной стены перемычечный; б – то же, простеночный; в – то же подоконный;

г – угловой; д - простеночный с круглыми пустотами

 

ДЕТАЛИ СОПРЯЖЕНИЙ КРУПНОБЛОЧНЫХ СТЕН

 

а – закрытый стык блоков внутренних стен или блок – перемычка наружных стен; б – закрытый стык простеночных и подоконных блоков; в – открытый стык простеночных блоков наружных стен; г – связь перемычек блоков наружных стен

Рис. 119.

ДЕТАЛИ СТЫКОВ СТЕН ИЗ ЛЕГКОБЕТОННЫХ БЛОКОВ

 

ПРИМЫКАНИЕ ПЕРЕМЫЧЕЧНЫХ И ПОЯСНЫХ БЛОКОВ НАРУЖНЫХ СТЕН ПРИМЫКАНИЕ УГЛОВЫХ БЛОКОВ НАРУЖНЫХ СТЕН
ПРИМЫКАНИЕ БЛОКА ВНУТРЕННЕЙ СТЕНЫ К БЛОКАМ НАРУЖНОЙ СТЕНЫ ПРИМЫКАНИЕ ПРОСТЕНОЧНЫХ БЛОКОВ НАРУЖНОЙ СТЕНЫ
ПРИМЫКАНИЕ ПОДОКОННЫХ БЛОКОВ К ПРОСТЕНОЧНОМУ С ХОЛОДНЫМ ШКАФОМ ПОД ОКНОМ И ОБЫЧНОГО ДЕФОРМАЦИОННЫЙ ШОВ

Рис. 120.

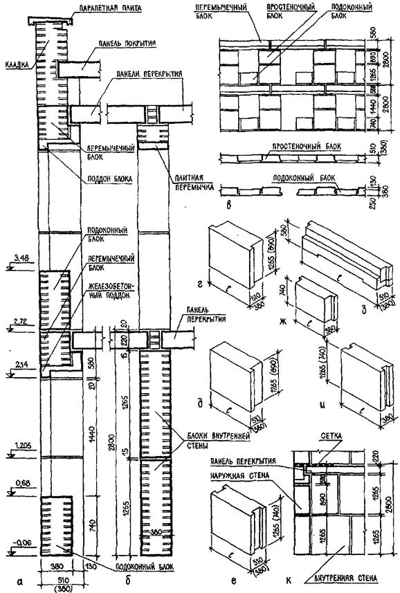
ОСНОВНЫЕ КРУПНЫЕ КИРПИЧНЫЕ БЛОКИ И ДЕТАЛИ СТЕН ИЗ НИХ

 

а, б – порядовка наружной и внутренней стены; в – разрезка наружной стены из крупных кирпичных блоков; г – простеночный блок; д – угловой блок наружной стены; е – блок торцевой стены; ж – подоконный блок; з – перемычечный блок; и блок внутренней стены; к – вертикальное сечение наружной стены и примыкание к ней внутренней стены

Рис.121.

 

 




Поделиться с друзьями:


Дата добавления: 2014-12-25; Просмотров: 735; Нарушение авторских прав?; Мы поможем в написании вашей работы!


Нам важно ваше мнение! Был ли полезен опубликованный материал? Да | Нет



studopedia.su - Студопедия (2013 - 2026) год. Все материалы представленные на сайте исключительно с целью ознакомления читателями и не преследуют коммерческих целей или нарушение авторских прав! Последнее добавление




Генерация страницы за: 0.01 сек.