Студопедия

КАТЕГОРИИ:


Архитектура-(3434)Астрономия-(809)Биология-(7483)Биотехнологии-(1457)Военное дело-(14632)Высокие технологии-(1363)География-(913)Геология-(1438)Государство-(451)Демография-(1065)Дом-(47672)Журналистика и СМИ-(912)Изобретательство-(14524)Иностранные языки-(4268)Информатика-(17799)Искусство-(1338)История-(13644)Компьютеры-(11121)Косметика-(55)Кулинария-(373)Культура-(8427)Лингвистика-(374)Литература-(1642)Маркетинг-(23702)Математика-(16968)Машиностроение-(1700)Медицина-(12668)Менеджмент-(24684)Механика-(15423)Науковедение-(506)Образование-(11852)Охрана труда-(3308)Педагогика-(5571)Полиграфия-(1312)Политика-(7869)Право-(5454)Приборостроение-(1369)Программирование-(2801)Производство-(97182)Промышленность-(8706)Психология-(18388)Религия-(3217)Связь-(10668)Сельское хозяйство-(299)Социология-(6455)Спорт-(42831)Строительство-(4793)Торговля-(5050)Транспорт-(2929)Туризм-(1568)Физика-(3942)Философия-(17015)Финансы-(26596)Химия-(22929)Экология-(12095)Экономика-(9961)Электроника-(8441)Электротехника-(4623)Энергетика-(12629)Юриспруденция-(1492)Ядерная техника-(1748)

Доступный для инвалидов магазин

Нормативно-правовая база по приспособлению для инвалидов объектов городской инфраструктуры

Благодарю за внимание!

 

 

BUHJDJT

 

bbbb

 

ПР

 

П

 

 

  • В Москве проживают и пользуются услугами торговой сети 1,2 млн. инвалидов:
  • 1,2 тыс. инвалидов, использующих кресла-коляски
  • 17 тыс. инвалидов, использующих для передвижения различного вида опоры свыше 6 тыс. слепых и слабовидящих
  • 3 тыс. глухих

Федеральные законы, содержащие нормы доступности городской инфраструктуры:

  • Градостроительный кодекс РФ
  • Кодекс об административных правонарушениях РФ
  • Закон «О социальной защите инвалидов в Российской Федерации»

Московские законы и постановления

  • Закон «Об обеспечении беспрепятственного доступа инвалидов к объектам социальной, транспортной и инженерной инфраструктур города Москвы»
  • Кодекс об административных правонарушениях города Москвы
  • Постановления Правительства Москвы

№ 852-ПП от 7 декабря.

№ 319-ПП от 24 апреля. и др.

Строительные нормативы по доступности среды для инвалидов действуют 1991г.

Ответственные за реализацию требований по адаптации среды для инвалидов:

  • Органы исполнительной власти
  • Органы местного самоуправления
  • Предприятия и организации
  • Финансовые затраты в части обеспечения доступности несут собственники и балансодержатели объектов
  • Доступный для инвалида магазин с товарами первой необходимости должен находиться в радиусе не более от его места жительства.
  • Если данный магазин недоступен для инвалидов-колясочников, то рекомендуется на входе разместить информацию о ближайшем доступном магазине.

Магазин считается полностью доступным для данной категории инвалидов, если доступны его вход, пути движения в магазине и места обслуживания, а также имеются доступные для данной категории инвалидов средства информации и коммуникации

Категории инвалидов:

  • Инвалиды-колясочники
  • Инвалиды с нарушением опорно-двигательного аппарата
  • Инвалиды по зрению (слепые и слабовидящие)
  • Инвалиды по слуху (глухие и слабослышащие)

Паспортизация

  • Заключение о доступности здания магазина можно сделать, используя методику паспортизации с помощью анкеты обследования и паспорта доступности
  • Анкету обследования можно найти по адресу 6075065@mail.ru пароль 6075065

Анкета обследования

Входная группа

  • В здании должен быть как минимум один вход, доступный для инвалидов.
  • Если для инвалидов оборудован отдельный вход, то он должен быть обозначен знаком доступности.

Где взять знак доступности?

В магазинах Автозапчасти – 15 руб.

 

ОАО «МАШ ХХI век» (тел. 925-35-53) - 100 руб.

 

 

Комплексное приспособление ВХОДА в здание для всех категорий инвалидов

  • Вход с УРОВНЯ ТРОТУАРА или ЛЕСТНИЦА с опорными поручнями, тактильными полосами перед лестницей и контрастной окраской крайних ступеней
  • ПАНДУС или подъемник для инвалидов (при необходимости)
  • ВХОДНАЯ ПЛОЩАДКА размером не менее 2,2х2,2м
  • ДВЕРНОЙ ПРОЕМ без порога и шириной не менее 90см
  • Звуковой маяк, тактильная информация

1. Для облегчения нахождения магазина инвалидами по зрению рекомендуется устанавливать на входе звуковые маяки. Можно использовать трансляцию музыки, какой-либо радиопрограммы. Дальность звучания маяка 5-10м.

2. На полотнах дверей (на прозрачных обязательно) следует предусматривать яркую контрастную маркировку расположенную на уровне.

  • 1,2м - 1,5м от пола:
  • прямоугольник 10 х 20 см.
  • или круг диаметром 15 см. желтого цвета

Изготовитель рекламно-производственная компания rostart,тел. 623-3370, Москва, Милютинский пер., 15, стр.1

Двери

  • Ширина дверного проема должна быть не менее 90см
  • Максимальное усилие при открывании двери вручную должно быть не более 2,5 кгс
  • Тяжело открывающаяся дверь может быть препятствием для инвалидов
  • Задержка автоматического закрывания дверей должна быть не менее 5 сек

 

Высота порога (или одной ступеньки) не должна превышать 2,5 см.

 

 

Тамбуры

Глубина тамбуров должна быть 1,8 м. не менее при ширине не менее 2,2 м.

После того, как инвалид вошел в тамбур, он должен закрыть входную дверь, а затем открыть следующую дверь в вестибюль здания.

Глубина пространства для маневрирования кресла-коляски перед дверью при открывании "от себя" должна быть не менее 1,2 м., а при открывании "к себе" - не менее 1,5 м. при ширине не менее 1,5 м

 

 

Лестницы

Ступени лестниц должны быть сплошными, ровными, с шероховатой поверхностью.

Глубина ступеньки не менее 30см при высоте не более 15см.

 

 

Для слепых очень важна единообразная геометрия ступеней:

Ступени выше 15 см. являются препятствием для инвалидов с поражением нижних конечностей

Эта ступенька высотой почти 30 см. делает магазин недоступным для инвалидов- опорников

Эти надписи слепые не прочтут!

Контрастная окраска крайних ступеней

  • Для предупреждения слабовидящих о начале лестничного марша контрастным цветом выделяется нижняя ступень и часть крыльца на глубину одной ступени. Рекомендуется окрашивать ступени в желтый или белый цвет.

  • Для контрастного выделения крайних ступеней можно использовать резиновые противоскользящие коврики или полоски (не менее трех на одной ступени)

Открытые ступени на путях движения инвалидов недопустимы

Люди, которые носят протезы или которые имеют проблемы с тазобедренными или коленными суставами подвергаются риску споткнуться на открытых ступеньках

Рельефная (тактильные) полоса

Перед лестничным маршем должен быть расположена рельефная тактильная полоса шириной 60 см.

Изменение фактуры должно ощущаться ногами и предупредить слепого инвалида о препятствии. Может быть выполнена из рельефной тротуарной плитки, различных ковриков, которые должны быть надежно закреплены, можно использовать покрытие «Стоунгрип», «Мастерфайбер».

Тактильные указатели

Рельеф тактильной плитки, предупреждающей слепого о препятствии: (лестница, дорога, дверь, лифт и пр.)

ООО Керамикс, тел. 955-11-53

МТС Гранитогрес, тел. 974-08-35

Поручни

  • Отсутствие поручней у лестниц делает ее недоступной для инвалидов-опорников
  • Поручни должны быть вдоль обеих сторон лестниц на высоте 09 м.
  • Диаметр поручня 3-4,5 см.

Горизонтальное завершение поручней

 

Поручни должны выступать минимум на 30см за последней ступенькой, давая возможность твердо встать на ровную поверхность.

 

 

Горизонтальное завершение поручня предупреждает слепых о начале и конце лестничного марша.

 

 

 

За такой поручень можно зацепиться рукавом или краем одежды и упасть

 

 

 

Поручень закончился раньше лестницы

Для инвалидов с трудностями в передвижении это может привести к падению

 

Пандусы

При наличии на входе в магазин лестницы для инвалидов-колясочников нужен пандус.

Пандусы являются неприемлемыми для инвалидов, пользующихся костылями, ходунками, ортопедической обувью. Им легче преодолеть ступени.

Пандус для инвалидов-колясочников

  • Уклон не более 5°
  • Ширина не менее 1 м.
  • Поручни на высоте 0,7 и 0,9 см с двух сторон
  • Бортик не менее 5 см. с открытой (не примыкающей к стене) стороны
  • Посадочные площадки вверху и внизу габаритами не менее 1,5 х 1,5 м.
  • На каждые 0,8 м. подъема промежуточная горизонтальная площадка
  • Освещение в темное время суток
  • Козырек

Уклон пандуса для инвалидов

Уклон пандуса допускается не более 5°, что соответствует 8% или отношению высоты Н к горизонтальной проекции длины L 1/12

Даже при подъеме по такому пандусу инвалиду на кресле-коляске необходимо приложить значительные физические усилия.

На более крутых уклонах возможно опрокидывание коляски.

Такие пандусы опасны

Уклон пандуса для инвалидов-колясочников допускается не более 5°, что соответствует 8% или отношению высоты Н к горизонтальной проекции длины L 1/12

В городе сооружено множество пандусов с уклоном равным уклону лестниц - 30°. При попытке подняться по такому пандусу инвалид на коляске может опрокинуться.

Причем расстояние между направляющими, как правило, не соответствует расстоянию между колесами коляски.

Эти пандусы опасны и для слепых.

Пандус занимает много места.

Чтобы определить нормативную длину пандуса, его высоту надо умножить на 12 и добавить по на каждые подъема

Например, при перепаде высот более 1,6м пандус будет иметь длину больше.

В таком случае лучше использовать подъемник

Промежуточные площадки

 

 

Промежуточные площадки необходимы, если пандус имеет высоту подъема более 0,8м. На горизонтальной площадке посредине пандуса инвалид может остановиться и отдохнуть.

Габариты промежуточной площадки зависят от конструкции пандуса. Если направление движения не изменилось, то площадка по ширине может быть равна ширине пандуса, а по направлению движения должна быть глубиной не менее 1,5 м.

Если пандус выполнен с поворотом на 90 или 180°, то габариты площадки должны быть 1,5 м., как по ширине, так и по длине.

На такой площадке с глубиной 70 см. кресло-коляска не сможет разместиться и тем более развернуться. Пользоваться таким пандусом невозможно.

 

Поручни у пандусов

  • Ограждение с поручнями выполняется у пандусов выше 45 см. (к лестнице больше трех ступенек).
  • Оптимальное расстояние между поручнями пандуса 1 м., чтобы колясочник мог подниматься при помощи поручней, перехватывая их двумя руками
  • Поручни должны быть расположены на высоте 0,7м для колясочников и на высоте 0,9м для передвигающихся самостоятельно.
  • Поручень для инвалида- колясочника должен быть непрерывным для обхвата рукой, чтобы не перехватывать его в местах пересечения со стойками ограждения
  • Завершение поручня должно быть не травмоопасным с закруглением к стене или стойке ограждения
  • Поручни выделяются контрастным по отношению к фону цветом (для ориентации слабовидящих)

 

Поручни с двух сторон на высоте 0,7 и 0,9 м. Нет горизонтального завершения

 

 

Нет поручня для инвалида на кресле-коляске. Нет поручня с другой стороны. Уклон крутой.

 

 

Пандус в цокольный этаж

  • Нет поручня со второй стороны
  • Нет поручня на высоте 0,9 м.
  • Нет промежуточных площадок для отдыха

Поверхность пандуса

  • Поверхность пандуса должна быть нескользкой, но и не слишком шероховатой, без заметных неровностей, создающей оптимальное сцепление подошвы обуви или колеса кресла-коляски с покрытием.
  • Основной материал - асфальт, бетон, мелкая керамическая плитка (не полированная), грубо обработанный натуральный камень, дерево.

Бортик

  • Бортик на пандусе выполнятся высотой не менее 5см для предотвращения соскальзывания колеса кресла-коляски, костыля или ноги. Особенно важно наличие бортика когда ограждение пандуса отсутствует.

Модульные пандусы

Мобильные (переносные) пандусы

  • Легко раскладываются и складываются
  • Выпускаются длиной от 0,5 до 3 м.
  • Используются на лестницах в 2-4 ступеньки
  • Цена 10-30 тыс.руб.

Мобильные подъемники

  • Подъемником могут управлять только люди, прошедшие обучение
  • Кресло-коляска закрепляется устройствами захвата
  • Стоимость 150-220 тыс.руб.

Подъемные платформы для инвалидов

Вертикальная подъемная платформа

Вертикальная подъемная платформа

Стоимость платформ от 180 до 350 тыс.руб. (без монтажа)

Зоны оказания услуги на предприятии торговли

Варианты организации зон обслуживания для инвалидов на объектах торговли рассматриваются в СП 35-103-2001

Обслуживание через прилавок

1. Высота прилавка более 1 м.

2. Высота прилавка 0,7-0,9м

3. Достаточное пространство для кресла-коляски диаметром 1,5х1,5 м

4. Длина прилавка на одного посетителя должна быть не менее 0,9 м., ширина (глубина) прилавка 0,6м., высота прилавка от 0,7 до 0,9 м.

Снижение части прилавка

Обслуживание инвалида-колясочника через окно

Примерочные кабины

Одна из кабин примерочных должна быть больших габаритов для инвалида на кресле-коляске и сопровождающего его лица. Можно использовать передвижную перегородку, например, на петлях.

Габариты кабины:

  • ширина - 1,6 м.
  • глубина - 1,8 м.

 

Ширина проходов в торговых залах

 

 

  • Для незрячих 0,7м
  • Для инвалидов-опорников – 0,85м
  • Для инвалидов-колясочников – 1,4м

Доступность зала самообслуживания для инвалида на кресле-коляске

 

 

Ширина проходов между оборудованием в торговых залах должна быть 1,4м. (минимум 0,9м), высота размещения товара до 1,5м., глубина полок не более 0,5м.

 

 

Проход у кассового аппарата для инвалидов

Не менее одного прохода у кассовых аппаратов шириной не менее 0,9м

Такой же должна быть ширина прохода через рамочный детектор

Кассовый аппарат с расширенным проходом следует обозначить знаком доступности

 

 

Помощь персонала

 

 

В магазинах самообслуживания инвалидам по зрению при выборе товара требуется помощь персонала.

Инвалиду-колясочнику также может потребоваться помощь, если необходимый товар расположен вне зоны его досягаемости.

 

 

 

Стойку информации с дежурным администратором желательно размещать вблизи входа, адаптированного для инвалидов

Рекомендуется на входе в магазин помещать знак доступности или в «Уголке потребителя» размещать объявление, что инвалидам по зрению, инвалидам-колясочникам оказывается помощь при выборе товара и к кому обращаться

 

Информация для слепых
Тактильные таблички

Визуальная информация о торговых отделах, лифтовых холлах, туалетах и пр. должна быть выполнена контрастным шрифтом, с высотой прописных букв не менее 7,5см

Рекомендуется использовать пиктограммы, голосовые сообщения

Информация должна быть продублирована шрифтом Брайля

Размер надписей

Высота прописных букв надписей на указателях, размещенных под потолком помещения на высоте более 2м, измеренной от пола до нижней кромки указателя, должна быть не менее 0,075м.

Информация для глухих

Для инвалидов по слуху звуковая информация для покупателей в торговом зале должна быть продублирована на светодинамических табло или других средствах вывода оперативной информации

 

Обслуживание в кафе

 

Необходима удобная конструкция стола и достаточная ширина прохода к нему

 

Места для инвалидов-колясочников в зале кинотеатра

К местам для инвалидов должен быть проход не менее 1,4м.

Место для размещения кресла-коляски

шириной не менее 0,9м

глубиной не менее 1,2м

 

 

 

В залах с числом мест 800 и более места для инвалидов в креслах-колясках следует рассредоточивать в различных зонах, размещая их в непосредственной близости от эвакуационных выходов, но в одном месте не более трех.

 

 

Туалет для инвалидов в магазине

Общественные туалеты для посетителей должны быть в магазинах с торговой площадью более 2,5 тыс. м кв.

 

 

 

В торговом зале должна быть информация о наличии и расположении туалета

 

 

 

На кабине туалета должен быть знак доступности

 

 

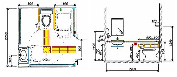
Универсальная кабина

Универсальная кабина туалета должна иметь размеры в плане не менее: ширина - 1,65м, глубина - 1,8м.

В кабине рядом с унитазом следует предусматривать пространство для размещения кресла-коляски, а также оборудование кабины поручнями, крючками для одежды, костылей, тревожную кнопку.

Стационарные и откидывающиеся поручни; кнопка сигнализации; крючок для одежды и костылей

Варианты планировок:

Туалет для инвалидов-опорников

Крючок для костылей с выступом от стены на 12см (1) и опорные поручни (2)

Опорные поручни

Размещаются на высоте 75см. Около унитаза со стороны посадки используются откидные поручни

Производители поручней

ЗАО «Инвапром» тел. 506-18-05, 334-78-90

ООО «МАШ ХХI век» тел. 925-35-53

Магазины «Экспрессмедтехника»

Высота унитаза

Для инвалидов, которые пересаживаются с кресла-коляски на унитаз или имеющих проблемы с тазобедренными или коленными суставами, необходим унитаз высотой 45см.

Тревожная кнопка

 

 

В кабине для инвалида с отдельным входом необходима тревожная кнопка для вызова персонала в экстренном случае.

 

Дверь в туалете для инвалидов должна открываться наружу

 

Замок должен предусматривать возможность открывания двери снаружи в экстренном случае.

 

  • Дверные ручки должны быть удобны для открывания одной рукой и без особых усилий
  • Высота расположения ручек 0,8-0,9 от уровня пола.

Ошибки при установке поручней в туалете

 

 

Из-за стационарного поручня сбоку унитаза инвалид-колясочник не сможет разместить кресло-коляску рядом с унитазом и пересесть на него.

Унитаз высотой 40см для инвалидов неприемлем, к тому же отсутствует второй поручень на стене.

 

 

Прилегающая территория

 

  • Ширина пути движения должна быть не менее 1,2м
  • Здесь проход между цветочницами 0,6м, инвалид на кресле-коляске не проедет

Путь к зданию

 

 

  • Должна быть обеспечена возможность доступных пешеходных путей вблизи магазина
  • На пешеходных переходах, пересечениях тротуара с проезжей частью вблизи магазина уклон съезда до 10%, а высота бордюрного камня в месте съезда не более.

Габариты стоянки для автотранспорта инвалида-колясочника.

 

<== предыдущая лекция | следующая лекция ==>
Изготавливается под заказ , размер по вашему желанию! | Приведение общей задачи линейного программирования к канонической форме
Поделиться с друзьями:


Дата добавления: 2015-04-24; Просмотров: 2797; Нарушение авторских прав?; Мы поможем в написании вашей работы!


Нам важно ваше мнение! Был ли полезен опубликованный материал? Да | Нет



studopedia.su - Студопедия (2013 - 2026) год. Все материалы представленные на сайте исключительно с целью ознакомления читателями и не преследуют коммерческих целей или нарушение авторских прав! Последнее добавление




Генерация страницы за: 0.017 сек.