Студопедия

КАТЕГОРИИ:


Архитектура-(3434)Астрономия-(809)Биология-(7483)Биотехнологии-(1457)Военное дело-(14632)Высокие технологии-(1363)География-(913)Геология-(1438)Государство-(451)Демография-(1065)Дом-(47672)Журналистика и СМИ-(912)Изобретательство-(14524)Иностранные языки-(4268)Информатика-(17799)Искусство-(1338)История-(13644)Компьютеры-(11121)Косметика-(55)Кулинария-(373)Культура-(8427)Лингвистика-(374)Литература-(1642)Маркетинг-(23702)Математика-(16968)Машиностроение-(1700)Медицина-(12668)Менеджмент-(24684)Механика-(15423)Науковедение-(506)Образование-(11852)Охрана труда-(3308)Педагогика-(5571)Полиграфия-(1312)Политика-(7869)Право-(5454)Приборостроение-(1369)Программирование-(2801)Производство-(97182)Промышленность-(8706)Психология-(18388)Религия-(3217)Связь-(10668)Сельское хозяйство-(299)Социология-(6455)Спорт-(42831)Строительство-(4793)Торговля-(5050)Транспорт-(2929)Туризм-(1568)Физика-(3942)Философия-(17015)Финансы-(26596)Химия-(22929)Экология-(12095)Экономика-(9961)Электроника-(8441)Электротехника-(4623)Энергетика-(12629)Юриспруденция-(1492)Ядерная техника-(1748)

Подбор сечений растянутых стержней ферм




Подбор сечений сжатых стержней ферм. (Металл)

Подбор сечений растянутых стержней

Требуемую площадь нетто сечения растянутого стержня фермы из стали с отношением определяют по формуле:

(9.12)

Скомпоновав по требуемой площади сечение (с учетом установленного ассортимента профилей и общих конструктивных требований), производят проверку принятого сечения, причем подсчитывают действительное его ослабление отверстиями.

Подбор сечений сжатых стержней

Подбор сечений сжатых стержней начинается с определения требуемой площади по формуле:

Эти параметры обычно задаются Гибкостью стержня, учитывая степень загружения и характер его работы. По заданной гибкости находят соответствующую величину? и площадь А по формуле (9.16).

При предварительном подборе для поясов легких ферм можно принять 80 - 60 и для решетки 120 - 100.

Задавшись гибкостью, можно также найти требуемые радиусы инерции сечения по формулам.

В соответствии с требуемыми радиусами инерции и площадью сечения по сортаменту подбирается подходящий калибр профиля. Несогласованность табличных значений i и А с требуемыми показывает, насколько неправильно была задана гибкость. Принимая после этого профиль с промежуточным значением площади и соответствующим радиусом инерции определяют во втором приближении гибкость, коэффициент? и напряжение. Обычно второе приближение достигает цели.

Типы поперечных сечений стержней ферм:

а-и - сжатые пояса;

к-р - растянутые пояса;

с-ч - раскосы стоек

1.Компановка конструктивной схемы одноэтажного промышленного здания. Обеспечение пространственной жесткости каркаса одноэтажного промышленного здания. (Ж/Б)

Обеспечение пространственной жесткости каркаса. Пространственную жесткость каркаса, т.е. его способность сопротивляться воздействию горизонтальных нагрузок, обеспечивают защемленные в фундаментах колонны, жесткий диск покрытия и система стальных связей (вертикальных и горизонтальных).

В поперечном направлении вертикальные связи не могут быть установлены, так как они препятствовали бы технологическому процессу. Поэтому пространственную жесткость каркаса в поперечном направлении обеспечивают колонны (по расчету) и диск покрытия, распределяющий местные горизонтальные нагрузки между колоннами.

В продольном направлении общую устойчивость каркаса в целом обеспечивают вертикальные крестовые или портальные металлические связи по колоннам. В зданиях с мостовыми кранами такие связи устраиваются всегда и размещаются в одном шаге каждого ряда колонн посредине температурного блока на высоту от пола до низа подкрановых балок (рис. 1.7, поз. 6). Эти связи рассчитываются на действие ветровых нагрузок, приложенных к торцовым стенам, и продольных тормозных нагрузок от мостовых кранов. В бескрановых зданиях небольшой высоты (Н < 9,6 м) связи по колоннам могут не устанавливаться.

Рис. 1.7. Виды связей в одноэтажных промышленных зданиях: 1 — колонна;
2 — ригель; 3 — диск покрытия; 4 — вертикальные связи-фермы; 5 — распорки; 6 — вертикальные связи по колоннам

 

 

При высоте опорных частей ригелей более 800 мм, например в зданиях с плоской кровлей, между ними устанавливают вертикальные связи-фермы, располагаемые в крайних ячейках температурного блока, а поверху каждого продольного ряда колони — стальные распорки (рис. 1.7, поз. 4, 5). Связи-фермы имеют номинальную длину 6 либо 12 м и высоту, равную высоте ригеля на опоре. Необходимость устройства таких связей обусловлена тем, что горизонтальная сила от ветровой и крановой нагрузок, приложенная к покрытию, может вызвать деформацию ригелей поперечных рам (стропильных балок или ферм) из плоскости. Следовательно, назначение этих связей-ферм и распорок — передать продольные горизонтальные усилия с диска покрытия на колонны и, в конечном счете, на вертикальные связи по колоннам.

При высоте опорных узлов ригелей покрытия не более 900 мм и наличии жесткого опорного ребра вертикальные связевые фермы и распорки допускается не ставить, однако в этом случае сварные швы в сопряжении ригеля с колонной должны быть расчетными.

В высоких зданиях (Н ≥ 18 м) с большими пролетами горизонтальные нагрузки на диск покрытия (от ветра в торец здания) достигают значительных величин, поскольку диск покрытия: представляет горизонтальную опору для торцевой стены, воспринимающей ветровую нагрузку. Это может вызвать расстройство креплений плит покрытия к стропильным конструкциям.
Уменьшить горизонтальную силу на диск покрытия можно путем устройства дополнительной опоры для торцевой стены. Такая опора устраивается у торцевых стен в уровне нижнего пояса стропильных балок или ферм в виде горизонтальных связей» служащих дополнительными опорами для колонн фахверка. Эти связи выполняют в виде горизонтальной фермы с крестовой решеткой из стальных уголков, поясами которой служат нижние пояса двух смежных стропильных балок или ферм. При необходимости горизонтальная связевая ферма может быть установлена и в уровне подкрановых путей (рис. 1.8).

Рис. 1.8 — Горизонтальные связи: 1 — торцевая стена; 2 — фахверковая колонна;
3 — горизонтальные связи; 4 — колонна; 5 — вертикальные связи по колоннам; 6 — подкрановые балки; 7 — распорки; 8 — ригель; 9 — диск покрытия

 

Устойчивость сжатых поясов ригелей из плоскости при беспрогонной системе покрытия и отсутствии фонаря обеспечивается плитами покрытия, приваренными к ригелям с последующим замоноличиванием швов.
Таким путем достигается образование жесткого диска, и необходимость постановки дополнительных связей в плоскости покрытия отпадает.
В зданиях со светоаэрационными фонарями сжатый пояс ригеля имеет свободную длину, равную ширине фонаря, поэтому необходимо предотвратить возможную потерю устойчивости из плоскости сжатого пояса ригеля в пределах ширины фонаря. Это обеспечивается постановкой стальных распорок
4 по оси фонаря (рис. 1.9), которые крепят к горизонтальным крестовым связям
3, устанавливаемых в уровне верхнего пояса ригеля в пределах ширины фонаря по концам температурного блока (рис. 1.9). Если же фонарь не доходит до конца температурного блока, то горизонтальные связи по верхнему поясу ригеля не ставятся и достаточно одних распорок.

Жесткость фонарей в продольном направлении обеспечивается вертикальными стальными связями 5 (рис. 1.9, сеч. I—I).

Рис. 1.9. Схема связей покрытия при наличии фонаря: 1 — ригель покрытия;
2 — светоаэрационный фонарь; 3 — горизонтальные крестовые связи; 4 — распорки по оси фонаря; 5 — вертикальные связи в плоскости остекления фонаря

 

 

2.Разбивка здания на температурные блоки. Компоновка покрытия одноэтажного промздания. (Ж/Б)

Разбивка здания на температурные блоки. При большой протяженности в поперечном и продольном направлениях здание делят температурными швами на отдельные блоки. Температурные швы обычно совмещают с усадочными и называют температурно-усадочными. Основное их назначение — уменьшить дополнительные усилия в колоннах от вынужденных перемещений продольных и поперечных элементов здания вследствие изменения температуры наружного воздуха и усадки бетона.

Наибольшие расстояния между температурно-усадочными швами при расчетных зимних температурах наружного воздуха выше минус 40° С, назначаемые без расчета (для конструкций с ненапрягаемой арматурой и предварительно напряженных, к трещиностойкости которых предъявляются требования 3-й категории), для одноэтажных каркасных зданий из сборного железобетона не должны превышать 72 м для отапливаемых зданий.

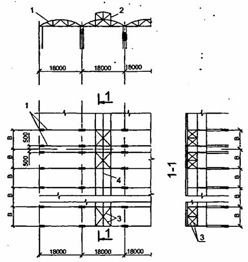
Поперечные температурно-усадочные швы выполняют на спаренных колоннах, геометрические оси которых смещаются с разбивочной оси (расположенной но середине шва) на 500 мм в каждую сторону (рис. 1.2, г), или на размер больший, но кратный 250 мм; шов доводится до верха фундамента.

Продольный температурно-усадочный шов также выполняется на спаренных колоннах со вставкой (рис. 1.2, д, е). Размеры вставки зависят от привязки колонн к продольным разбивочным осям и принимаются равными 500... 1500 мм, кратно 250мм.

Привязка колонн в продольном температурном шве к продольным осям выполняется по следующим правилам:

- если шаг колонн крайних и средних рядов одинаковый (подстропильные конструкции отсутствуют), то колонны привязываются к продольным осям аналогично привязке колонн крайних рядов (см. рис. 1.2, д);

- при шаге колонн крайних рядов 6 м, а средних — 12 м, т.е. при наличии подстропильных конструкций, расстояние между продольными разбивочными осями и гранями колонн, обращенными в сторону температурного шва, принимается кратным 250 мм,

- Выбор типа и назначение размеров сечений колонн. В одноэтажных производственных зданиях применяются сборные железобетонные колонны сплошные прямоугольного сечения и сквозные двухветвевые (рис. 1.6). При выборе типа колонн можно придерживаться следующих рекомендации:

- сплошные колонны применяют в зданиях с пролетами до 24 м, высотой и < 16,2 м, шаге 6...12 м и при грузоподъемности кранов до 30т;
- сквозные (двухветвевые) колонны целесообразно применять при грузоподъемности кранов более 50 т, пролетах более 24 м, высоте H > 16,2 м и шаге 12 м, а также в случаях, когда высота сечения подкрановой части колонны h2 превышает 1 м.

В бескрановых цехах обычно применяют колонны постоянного сечения.

3.Выбор сетки колонн и установление внутренних габаритов одноэтажного промздания.(Ж/Б)

При компоновке конструктивной схемы каркаса решаются вопросы размещения колонн здания в плане, устанавливаются внутренние габариты здания, назначаются и взаимоувязываются размеры основных конструктивных элементов каркаса.

Размещение колонн в плане принимают с учетом технологических, конструктивных и экономических факторов. Оно должно быть увязано с габаритами технологического оборудования, его расположением и направлением грузопотоков. Размеры фундаментов под колонны увязывают с расположением и габаритами подземных сооружений (фундаментов под рабочие агрегаты, боровов, коллекторов и т.п.). Колонны размещают так, чтобы вместе с ригелями они образовывали поперечные рамы, т. е. в многопролетных цехах колонны разных рядов устанавливаются по одной оси.

Согласно требованиям унификации промышленных зданий, расстояния между колоннами поперек здания (размеры пролетов) назначаются в соответствии с укрупненным модулем, кратным 6 м (иногда 3 м); для производственных зданий l=18, 24, 30, 36 м и более. Расстояния между колоннами в продольном направлении (шаг колонн) также принимают кратными 6 м. Шаг колонн однопролетных зданий, а также шаг крайних (наружных) колонн многопролетных зданий обычно не зависит от расположения технологического оборудования и его принимают равным 6 или 12 м. Вопрос о назначении шага колонн крайних рядов (6 или 12 м) для каждого конкретного случая решается сравнением вариантов. Как правило, для зданий больших пролетов (l > 30 м) и значительной высоты (H > 14 м) с кранами большой грузоподъемности (Q > 50 т) оказывается выгоднее шаг 12м и, наоборот, для зданий с меньшими параметрами экономичнее оказывается шаг колонн 6 м. У торцов зданий колонны обычно смещаются с модульной сетки на 500 мм для возможности использования типовых ограждающих плит и панелей с номинальной длиной 6 или 12 м. Смещение колонн с разбивочных осей имеет и недостатки, поскольку у торца здания продольные элементы стального каркаса получаются меньшей длины, что приводит к увеличению типоразмеров конструкций.

При больших размерах здания в. плане в элементах каркаса могут возникать большие дополнительные напряжения от изменения температуры. Поэтому в необходимых случаях здание разрезают, на отдельные блоки поперечными и продольными температурными швами.

Наиболее распространенный способ устройства поперечных температурных швов заключается в том, что в месте разрезки здания ставят две поперечные рамы (не связанные между собой какими-либо продольными элементами), колонны которых смещают с оси на 500 мм в каждую сторону, подобно тому как это делают у торца здания.

Продольные температурные швы решают либо расчленением много-пролетной рамы на две (или более) самостоятельные, что связано с установкой дополнительных колонн, либо с подвижным в поперечном направлении опиранием одного или обоих ригелей за колонну с помощью катков или другого устройства. В первом решении предусматривается дополнительная разбивочная ось на расстоянии 1000 или 1500 мм от основной. Иногда в зданиях, имеющих ширину, превышающую предельные размеры для температурных блоков, продольную разрезку не делают, предпочитая некоторое утяжеление рам, необходимое по расчету на температурные воздействия.

 

4.Нагрузки, действующие на поперечную раму промздания. (Ж/Б)

На раму передаются следующие нагрузки:

- постоянная - от массы покрытия, собственного веса колонн, подкрановых балок и подкранового пути, ограждающих конструкций;

- временная - снеговая, ветровая и крановые.

Все вертикальные нагрузки вводят в расчет с фактическими эксцентриситетами относительно центров тяжести сечений колонн.

а) Постоянные нагрузки.

Значение постоянных нагрузок на 1 м2 покрытия.

б) Временные нагрузки.

-Снеговая нагрузка. Для расчета колонн принимают равномерное распределение снеговой нагрузки по покрытию.

-Крановые нагрузки. В соответствии со стандартами на мостовые электрические краны.

-Ветровая нагрузка. Ветровая нагрузка принимается распределенной по высоте колонны. Давление ветра на здание выше колонны заменяют сосредоточенной силой W, приложенной на уровне верха колонн. Давление ветра на колонну собирают с вертикальной полосы шириной, равной шагу колонн вдоль здания.




Поделиться с друзьями:


Дата добавления: 2015-04-24; Просмотров: 3820; Нарушение авторских прав?; Мы поможем в написании вашей работы!


Нам важно ваше мнение! Был ли полезен опубликованный материал? Да | Нет



studopedia.su - Студопедия (2013 - 2026) год. Все материалы представленные на сайте исключительно с целью ознакомления читателями и не преследуют коммерческих целей или нарушение авторских прав! Последнее добавление




Генерация страницы за: 0.181 сек.