Студопедия

КАТЕГОРИИ:


Архитектура-(3434)Астрономия-(809)Биология-(7483)Биотехнологии-(1457)Военное дело-(14632)Высокие технологии-(1363)География-(913)Геология-(1438)Государство-(451)Демография-(1065)Дом-(47672)Журналистика и СМИ-(912)Изобретательство-(14524)Иностранные языки-(4268)Информатика-(17799)Искусство-(1338)История-(13644)Компьютеры-(11121)Косметика-(55)Кулинария-(373)Культура-(8427)Лингвистика-(374)Литература-(1642)Маркетинг-(23702)Математика-(16968)Машиностроение-(1700)Медицина-(12668)Менеджмент-(24684)Механика-(15423)Науковедение-(506)Образование-(11852)Охрана труда-(3308)Педагогика-(5571)Полиграфия-(1312)Политика-(7869)Право-(5454)Приборостроение-(1369)Программирование-(2801)Производство-(97182)Промышленность-(8706)Психология-(18388)Религия-(3217)Связь-(10668)Сельское хозяйство-(299)Социология-(6455)Спорт-(42831)Строительство-(4793)Торговля-(5050)Транспорт-(2929)Туризм-(1568)Физика-(3942)Философия-(17015)Финансы-(26596)Химия-(22929)Экология-(12095)Экономика-(9961)Электроника-(8441)Электротехника-(4623)Энергетика-(12629)Юриспруденция-(1492)Ядерная техника-(1748)

Библиографический список. 1. Что мы называем проёмом в стене или перегородке.




ВОПРОСЫ ДЛЯ САМОПРОВЕРКИ

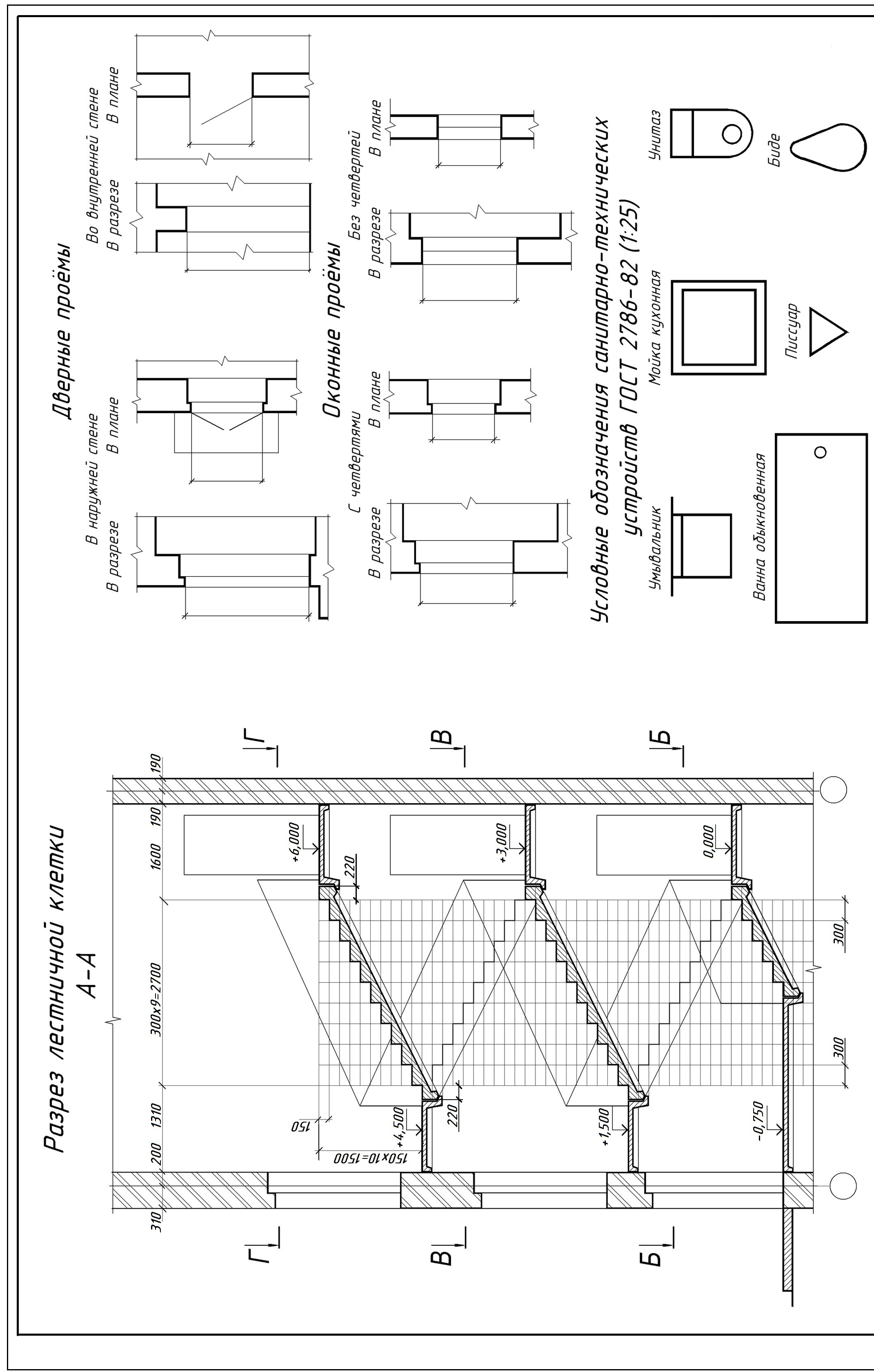
1. Что мы называем проёмом в стене или перегородке?

2. Чем отличается изображение в плане дверного проёма с порогом и без порога, т. е. доходящего до пола?

3. Назовите размеры красного (обычного) кирпича?

4. Дать понятие «четверти» в проёме и назвать её размеры.

5. Назвать в мм толщину стен в полтора кирпича, в два кирпича?

6. Назовите элементы лестничного марша.

7. Какой элемент лестничного марша называют проступью, подступёнком?

8. Какой элемент лестницы называют косоуром?

9. Какие ступени лестницы называют фризовыми?

 

 

1. Каминский В. П. Строительное черчение: учебник для вузов /В. П. Каминский, О. В. Георгиевский, Б. В. Будасов. – М.: ООО Издательство «Архитектура – С», 2004 – 456 с.

2. Георгиевский О. В. Правила выполнения архитектурно–строительных чертежей: справочное пособие / О. В. Георгиевский – М.: АСТ, Астрель, 2005. – 104 с.

3. ЕСКД ГОСТ 2. 301-68 – 2.307-68. Общие правила выполнения чертежей. – М.: ИПК Издательство стандартов, 2001. – 159 с.

 

 

Приложение

Содержание верхней половины формата листа РГР


Окончание приложения

Содержание нижней половины формата листа РГР

 

 

Учебное издание

Составители: ЧУРБАНОВ Владимир Иванович

ЛАПШОВ Александр Юрьевич

СИДОРОВСКАЯ Лариса Леонидовна

 




Поделиться с друзьями:


Дата добавления: 2015-06-25; Просмотров: 1342; Нарушение авторских прав?; Мы поможем в написании вашей работы!


Нам важно ваше мнение! Был ли полезен опубликованный материал? Да | Нет



studopedia.su - Студопедия (2013 - 2026) год. Все материалы представленные на сайте исключительно с целью ознакомления читателями и не преследуют коммерческих целей или нарушение авторских прав! Последнее добавление




Генерация страницы за: 0.008 сек.