Студопедия

КАТЕГОРИИ:


Архитектура-(3434)Астрономия-(809)Биология-(7483)Биотехнологии-(1457)Военное дело-(14632)Высокие технологии-(1363)География-(913)Геология-(1438)Государство-(451)Демография-(1065)Дом-(47672)Журналистика и СМИ-(912)Изобретательство-(14524)Иностранные языки-(4268)Информатика-(17799)Искусство-(1338)История-(13644)Компьютеры-(11121)Косметика-(55)Кулинария-(373)Культура-(8427)Лингвистика-(374)Литература-(1642)Маркетинг-(23702)Математика-(16968)Машиностроение-(1700)Медицина-(12668)Менеджмент-(24684)Механика-(15423)Науковедение-(506)Образование-(11852)Охрана труда-(3308)Педагогика-(5571)Полиграфия-(1312)Политика-(7869)Право-(5454)Приборостроение-(1369)Программирование-(2801)Производство-(97182)Промышленность-(8706)Психология-(18388)Религия-(3217)Связь-(10668)Сельское хозяйство-(299)Социология-(6455)Спорт-(42831)Строительство-(4793)Торговля-(5050)Транспорт-(2929)Туризм-(1568)Физика-(3942)Философия-(17015)Финансы-(26596)Химия-(22929)Экология-(12095)Экономика-(9961)Электроника-(8441)Электротехника-(4623)Энергетика-(12629)Юриспруденция-(1492)Ядерная техника-(1748)

Детские сады-интернаты




ЯСЛИ

Местоположение: среди жилой застройки.

Вместимость: обычная — 20 детей, из них 1/3 — грудные младенцы, 2/3 — ползунки.

Вместимость детской комнаты 12—16 детей. Площадь на 1 ребенка 2м2.

Объем воздуха на одного ребенка в детской комнате 6—10 м3. На каждого ребенка 1 кровать, 1 ванна на каждых 6—8 детей.

Состав и планировка помещений (рис. 8. Примерный проект). Обязательно четкое разграничение детских помещений, ориентированных на юг, и подсобных и хозяйственных помещений, ориентированных на север, а также квартиры для персонала, имеющей собственный отдельный вход с востока; главный вход в здание с запада.

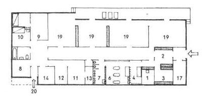
8. Примерная планировка детских яслей. М 1:400. 1 — кабинет заведующей; 2 — вестибюль; 3 — помещение для кормления; 4 —раздевальная-приемная; 5 — душ; 6 — ванная: 7 — горшечная; 8 — изолятор; 9 — жилая комната заведующей; 10 — жилая комната помощницы заведующей; 11 — молочная кухня; 12 — моечная; 13 — кладовая для продуктов; 14 — прачечная; 17 —помещение для детских колясок; 19 — детская спальня; 20 — служебный вход.

Возле тамбура расположено помещение для детских колясок (17), рассчитанное на 3/4 общего числа детей. Из небольшого вестибюля (2) легко попасть в помещения для кормления (5), кабинет заведующей (1), главный коридор и раздевальную-приемную (4). В приемной установлен стол для пеленания (детская одежда хранится в мешках в вентиляционных шкафах).

Рядом с приемной — ванная комната с двумя или более ваннами, установленными на высоких подставках (рис. 10, б), и стол для пеленания. Детская туалетная (рис. 10, г) расположена возле ванной комнаты и оборудована низкими унитазами, сливом и полками для детских горшков.

Молочная кухня (11) оборудована газовым кипятильником для молока и холодильником для бутылок с молоком. Рядом расположена моечная (12), оснащенная машиной для мойки бутылок, и раковиной. Возле служебного входа (20) находится прачечная (14). Детские комнаты связаны между собой дверьми в поперечных перегородках у наружной стены. Перед комнатами устроена защищенная от ветра открытая терраса. Размеры помещений пребывания детей определяются размерами манежа (рис.11,а) и расположением кроваток (рис. 11,б).

9. Няня и дети. 1 сестра в детских яслях на 7 — 10 детей-ползунков: 1 воспитательница в детском саду на 25 детей; 1 воспитательница в интернате на 30 детей школьного возраста; 1 практикантка на 10 детей дошкольного возраста или 15 детей школьного возраста.

10. а) Стол для пеленания, б) Детская ванна, в) Полка для горшков, г) Детский унитаз


11. а) Манеж, б) Кроватки для грудных детей, в) Шкаф для игрушек, г)Поперечный разрез одноэтажного здания детского сада со сквозным проветриванием через фонарь верхнего света над коридором.

12. Пример комплекса из четырех групповых комнат с вспомогательными помещениями и административно-хозяйственного блока. Комплекс рассчитан на обслуживание около 100 детей. 1 – групповая комната; 2 – открытая терраса; 3 – гардеробная; 4 – кладовая; 5 – умывальная; 6 – комната для ползунков; 7 – молочная кухня; 8 – спальня; 9 – приёмная; 10 – кабинет заведующей; 11 – комната персонала; 12 – тепловой пункт; 13 – кухня; 14 – комната для ручного труда; 15 – комната для выполнения школьных заданий.


  Минимальные условия по устройству детских учреждений Гессен Нижняя Саксония
Детские сады, работающие в течение неполного и полного дня Число детей в группе 20 - 25 ≤ 25
Игровая площадь на 1 ребёнка 1,5 м2 2 м2
Местоположение умывальной и уборной   В зоне размещения групповых комнат
Число умывальных раковин на 1 ребёнка 1/8 – 1/10 1/10
Число унитазов на 1 ребёнка 1/10 – 1/12 1/10
Отношение площади окон к площади пола 1/5  
Высота групповых комнат в свету 2,8 – 3,2 м ≥ 2,5 м
Ширина коридоров ≥ 2 м ≥ 1,7 м
Ширина лестничных маршей   1,25 м
Изолятор   Требуется, но не отделяется
Детские сады с группами продлённого дня, Детские ясли Число детей в группе 20 - 25 ≤ 20
Площадь на 1 ребёнка в групповой комнате 2 м2 2 м2
Число детей в группе 8 грудных детей, 7 ползунков 10 грудных детей, 15 ползунков, 15 детей младшего ясельного возраста
Площадь в спальне на 1 грудного ребёнка 2,5 м2 2,5 м2
Площадь в спальне на 1 ребёнка младшего ясельного возраста 3 м2 2,5 – 3 м2

Местоположение: среди жилой застройки (как и детские сады).

Вместимость: обычная - 30 - 40 детей; в одной групповой не более 20 детей.

Площадь на одного ребенка 1,5 м2.

Объем воздуха на одного ребенка 8 - 10 м3.

Планировка помещений аналогична планировке детских садов (рис 13), но умывальные для мальчиков и девочек устроены отдельно. Душевые и раздевальная используются мальчиками и девочками поочередно. В просторной кухне (11) должны помогать 6 — 8 детей, для чего необходимо предусмотреть соответствующую высоту предметов оборудования (плита и т. п.). Необходима также мастерская (18) размером около 3 х 4 м.

Полы по возможности бесшовные, что облегчает уборку. В детских яслях устраивают лучистое отопление в полу или, по меньшей мере, предусматривают надежную теплоизоляцию пола. Нижняя часть стен должна быть моющейся. Необходимо по возможности обеспечивать сквозное проветривание. Вся мебель и оборудование должны соответствовать росту детей.

13. Пример планировки здания детского сада-интерната. М 1: 400. 1 — кабинет заведующей; 2— гардеробная; 3 — душевая; 4— умывальная с уборными; 5 —изолятор; 6 — квартира заведующей; 7 — кухня; 8— раздаточная; 9— кладовая для продуктов; 10 — помещение для хранения одеял и раскладных кроваток; 11 и 12 — групповые; 13— мастерская.





Поделиться с друзьями:


Дата добавления: 2015-06-27; Просмотров: 578; Нарушение авторских прав?; Мы поможем в написании вашей работы!


Нам важно ваше мнение! Был ли полезен опубликованный материал? Да | Нет



studopedia.su - Студопедия (2013 - 2026) год. Все материалы представленные на сайте исключительно с целью ознакомления читателями и не преследуют коммерческих целей или нарушение авторских прав! Последнее добавление




Генерация страницы за: 0.009 сек.