Студопедия

КАТЕГОРИИ:


Архитектура-(3434)Астрономия-(809)Биология-(7483)Биотехнологии-(1457)Военное дело-(14632)Высокие технологии-(1363)География-(913)Геология-(1438)Государство-(451)Демография-(1065)Дом-(47672)Журналистика и СМИ-(912)Изобретательство-(14524)Иностранные языки-(4268)Информатика-(17799)Искусство-(1338)История-(13644)Компьютеры-(11121)Косметика-(55)Кулинария-(373)Культура-(8427)Лингвистика-(374)Литература-(1642)Маркетинг-(23702)Математика-(16968)Машиностроение-(1700)Медицина-(12668)Менеджмент-(24684)Механика-(15423)Науковедение-(506)Образование-(11852)Охрана труда-(3308)Педагогика-(5571)Полиграфия-(1312)Политика-(7869)Право-(5454)Приборостроение-(1369)Программирование-(2801)Производство-(97182)Промышленность-(8706)Психология-(18388)Религия-(3217)Связь-(10668)Сельское хозяйство-(299)Социология-(6455)Спорт-(42831)Строительство-(4793)Торговля-(5050)Транспорт-(2929)Туризм-(1568)Физика-(3942)Философия-(17015)Финансы-(26596)Химия-(22929)Экология-(12095)Экономика-(9961)Электроника-(8441)Электротехника-(4623)Энергетика-(12629)Юриспруденция-(1492)Ядерная техника-(1748)

Муфты прямые короткие




Основные размеры

Крест по ГОСТ 8953-75

Основные размеры

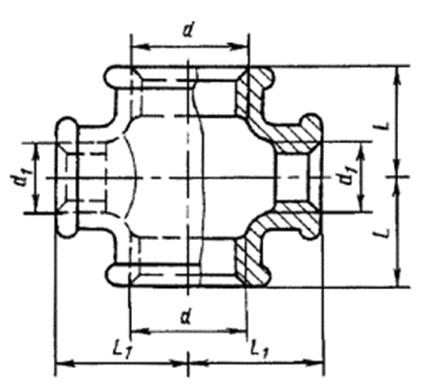
Кресты по ГОСТ 8952-75

Основные размеры

По ГОСТ 8951-75

Кресты прямые

Рисунок Б10

 


Таблица Б7

Усл. прох. Dy(мм)   d   L   d
  3/8²   16,663
  1/2²   20,956
  3/4²   26,442
    33,250
  1 ²   41,912
    47,805

 

 

Примеры условных обозначений

Прямого креста без покрытия с Dy 25 мм:

Крест 25 ГОСТ 8951- 75

То же, с цинковым покрытием:

Крест Ц-25 ГОСТ 8951- 75



Рисунок Б11

 


Таблица Б8

 

Усл. прох. Dy (мм) Резьба dхd1 в дюйм.   L   L1
15х10    
15х20    
20х15    
25х15    
32х15    
40х20    

 

 

Примеры условных обозначений

Переходного креста без покрытия с Dу 25 мм на Dу1 20 мм:

Крест 25 × 20 ГОСТ 8952- 75

То же, с цинковым покрытием:

Крест Ц-25 ×20 ГОСТ 8952-75


Рисунок Б12

Таблица Б9

Dy, мм d1 d2 d3 L L1 L2
20х15х15 3/4 1/2² 1/2²      
20х20х15 3/4 3/4² 1/2²      
25х15х20 1/2² 3/4²      
25х20х20 3/4² 3/4²      
32х20х25 1 ² 3/4²      

 

Примеры условных обозначений

Креста с двумя переходами без покрытия с Dу 25 мм на Dу1 15 мм и Dу2 20 мм:

Крест 25 ×15 ×20 ГОСТ 8953- 75

То же, с цинковым покрытием:

Крест Ц-25 × 15 × 20 ГОСТ 8953-75





Поделиться с друзьями:


Дата добавления: 2015-06-27; Просмотров: 501; Нарушение авторских прав?; Мы поможем в написании вашей работы!


Нам важно ваше мнение! Был ли полезен опубликованный материал? Да | Нет



studopedia.su - Студопедия (2013 - 2026) год. Все материалы представленные на сайте исключительно с целью ознакомления читателями и не преследуют коммерческих целей или нарушение авторских прав! Последнее добавление




Генерация страницы за: 0.013 сек.