Студопедия

КАТЕГОРИИ:


Архитектура-(3434)Астрономия-(809)Биология-(7483)Биотехнологии-(1457)Военное дело-(14632)Высокие технологии-(1363)География-(913)Геология-(1438)Государство-(451)Демография-(1065)Дом-(47672)Журналистика и СМИ-(912)Изобретательство-(14524)Иностранные языки-(4268)Информатика-(17799)Искусство-(1338)История-(13644)Компьютеры-(11121)Косметика-(55)Кулинария-(373)Культура-(8427)Лингвистика-(374)Литература-(1642)Маркетинг-(23702)Математика-(16968)Машиностроение-(1700)Медицина-(12668)Менеджмент-(24684)Механика-(15423)Науковедение-(506)Образование-(11852)Охрана труда-(3308)Педагогика-(5571)Полиграфия-(1312)Политика-(7869)Право-(5454)Приборостроение-(1369)Программирование-(2801)Производство-(97182)Промышленность-(8706)Психология-(18388)Религия-(3217)Связь-(10668)Сельское хозяйство-(299)Социология-(6455)Спорт-(42831)Строительство-(4793)Торговля-(5050)Транспорт-(2929)Туризм-(1568)Физика-(3942)Философия-(17015)Финансы-(26596)Химия-(22929)Экология-(12095)Экономика-(9961)Электроника-(8441)Электротехника-(4623)Энергетика-(12629)Юриспруденция-(1492)Ядерная техника-(1748)

Выполнение строительных чертежей




В основном строительные чертежи выполняются по тем же правилам, что и машиностроительные (те же методы проецирования, используют­ся такие же типы линий, одинаковые условности построения разрезов и т. Д.). Однако есть у них и отличитель­ные особенности, например, применя­ются другие масштабы, иначе нано­сятся размеры, иная последователь­ность выполнения чертежей и др.

При выполнении чертежей необхо­димо пользоваться строительными нормами и правилами-СниПами. Нормы – это узаконенные и научно обоснованные меры, приходящиеся на определенную принятую единицу измерения. Учащимся необходимо хорошо знать все условности, при­меняемые в строительных чертежах, для чего следует изучить ГОСТы:

ЕСКД-Единую систему конструк­торской документации; СПДС-Сис­тему проектной документации для строительства; инструкции по составу и оформлению чертежей жилых и об­щественных зданий и сооружений.

Строительные чертежи выполня­ются:

1. На стандартных листах чер­тежной бумаги по ГОСТ 2.301-68 (СТ СЭВ 1181-76);

2. Более тонкими ли­ниями по ГОСТ 2.303-68 (СТ СЭВ 1179-78), в связи с чем контурная линия принимается толщиной не бо­лее 0,8 мм.

При обводке чертежа, выполняемо­го в масштабе 1:100, рекомендуется следующая толщина линий: линия земли-0,8 мм, линии контуров эле­жения, попавших в разрез, -0,6 мм, линии контура здания и проемов на фасаде-0,4 мм, линии элементов, не попавших в разрез, рисунок перепле­тов на фасаде, штриховые линии, выносные, размерные и пр.-0,2 мм. При обводке линий на чертеже надо знать, что элементы, которые нужно выде­лить, следует обвести более толстой линией даже при наличии других ли­ний видимого контура. На чертежах железобетонных конструк­ций арматуру выделяют более толс­той линией.

Надписи на всех технических чер­тежах принято выполнять чертежным шрифтом в соответствии с ГОСТ 2.304-81 (СТ СЭВ 851-78-СТ СЭВ 855-78). Допускается применение прямого (без наклона) шрифта с со­хранением указанных в стандарте на­чертаний и размеров букв и цифр.

При выполнении строительных чертежей промышленных сооруже­ний, общественных и жилых зданий в зависимости от их размеров приме­няются следующие масштабы: планы этажей, перекрытий, покрытий, фаса­ды, монтажные схемы каркасов и т. П.-1:100, 1:200, 1:400; фрагменты фасадов, планы секций с показом ме­бели, секции фундаментов, планы и разрезы лестничных клеток, монтаж­ные схемы (развертки) внутренних стен, схемы-1: 50, 1:100; планы фун­даментов, подпольных каналов и т. П.-1:100, 1:200; развертки фунда­ментов- 1:100, разрезы по характер­ным местам, планы стропил -1:50, 1:100, 1:200; узлы-1:5, 1:10, 1:20; для кладочных планов стен при не­обходимости допускается масштаб 1:50.

Масштаб изображения следует принимать минимальный в зависи­мости от сложности изображения, но обеспечивающий четкость копий при современных способах размножения чертежей.

Направление взглядов для изобра­жения видов и разрезов для зданий и сооружений принимается, как прави­ло, по плану снизу вверх и справа налево.

Размеры на строительных черте­жах наносят:

-в миллиметрах – на планах и раз­резах зданий (допускается наносить размеры в сантиметрах, но в этом случае это указывается на чертеже в примечании); на рабочих чертежах от­дельных узлов строительных конст­рукций;

-в метрах с тремя десятич­ными знаками – высотные отметки на разрезах;

-в метрах -на генеральных планах.

Для указания границ измерения служат тонкие сплошные линии (вы­носные). Между выносными линиями проводят размерные линии с таким расчетом, чтобы выносная линия вы­ходила за нее на 2… 3 мм. Размерные линии на строительных чертежах до­пускается заканчивать засечкой в виде основной линии длиной 2… 4 мм под углом 45°, проводимой с наклоном вправо к размерной линии, при этом размерные линии должны выступать за крайние выносные линии на 1… 3 мм. Размерные цифры ставят над размерной линией на расстоянии 1 мм.

На строительных чертежах разме­ры допускается повторять и наносить в виде замкнутой цепи (рис. 41).

 

Рис. 41 – Размеры на чертежах

Допускается проводить размер­ные линии непосредственно к линиям видимого контура, осевым, центро­вым и другим линиям, но не допус­кается использовать линии контура, осевые, центровые и выносные в ка­честве размерных. При нанесении раз­меров следует в основном руководст­воваться ГОСТ 2.307-68 (СТ СЭВ 1976-79, СТ СЭВ 2180-80).

На строительных чертежах разли­чают три вида размеров:

-номинальные(расстояние между координационными осями зданий);

-конструктивные– размеры элементов строительных изделий отличаются от номинальных на нормированный за­зор, установленный нормами (толщи­на шва и др.);

-натурные– фактический размер элементов построенного зда­ния;

При расположении ряда одинако­вых элементов на равных расстояниях друг от друга (например, стен здания, отверстий и т. П.) размеры между эле­ментами проставляются только в на­чале и конце ряда или указывается расстояние между крайними элемен­тами (рис. 42).

Рис. 42

Отметки для привязки элементов здания (сооружения) по высоте указы­ваются в метрах с тремя десятичными знаками после запятой.

За условную нулевую отметку, как правило, принимается отметка чисто­го пола 1-го этажа, обозначаемая 0,000.

Отметки ниже нулевого уровня обозначаются со знаком минус, на­пример — 0,250; отметки выше услов­ной нулевой указываются без знака, например 3,100.

 
 

Графическое обозначение отметки (рис. 43) дается в виде угольника.

 

Рис. 43 – Отметки для привязки


Отметка уровня чистого пола обо­значается Ур. Ч. П.; отметка уровня земли обозначается Ур. З. (рис. 44).

Рис. 44 – Отметка уровня чистого пола

Координационные отметки уров­ней чистых полов следует распола­гать так, чтобы они совмещались с горизонтальными модульными коор­динационными плоскостями, расстоя­ния между которыми определяют координационные высоты этажей.

Координационные отметки верха чердачных перекрытий и перекрытий, совмещенных с кровлей (за исключе­нием помещений с подвесным потол­ком), толщина которых условно при­нята равной толщине междуэтажного перекрытия, а при отсутствии таких перекрытий –координационные от­метки низа несущих конструкций по­крытий (стропильных ферм, балок) на опоре у наружных стен также следует совмещать с горизонтальными модульными координационными плоскостями. Минимальная высота букв и цифр на чертежах, выполненных карандашом, 3,5 мм. Название изображения наносится над изображением с минимальным разрывом. Название изображений и заголовки текстовых указаний допускается подчеркивать тонкой линией. Заголовки ведомостей и таблиц следует наносить над ними вне рамки и не подчеркивать. Если на листе расположено одно изображение (или группа изображении с общим названием), то его название (или общее название группы) приводится только в основной надписи.

 

Задание № 107 листа 1-8

 

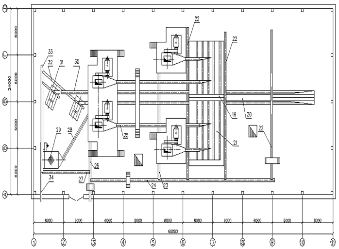
Рис. 45. План лесопильного цеха (І этаж)


Поз. Название оборудования. Тип, марка оборудования. Единица измерения Кол. Масса единицы обор-я
  Перадрамная цялежка ПРТ-2М      
  Падоўжны ланцуговы канвеер БА-3      
  Накапляльнік бярвёнаў        
  Лесапільная рама 2Р75-1      
  Ролікавы канвеер ПРД-80      
  Брусаперакладальнік БрП-80      
  Лесапільная рама 2Р75-2      
  Рольганг-раздзяліцель ПРДП-80      
  Скідальнік бярвёнаў СБР4-2      
  Тарцовачны станок ЦКБ 40-01      
  Папярочны ланцуговы канвеер ПРД-36-5      
  Ролікавы навясны канвеер        
  Перадстаночны стол        
  Стужачны канвеер КЛС      
  Абразны станок Ц2Д-5А      
  Папярочны ланцуговы канвеер ПРД-36-5      
  Рэйкааддзяляльнае ўстройства        
  Рольганг перад л/р 2 рада        
  Шібер для гарбылей        
             
         
Изм Лист № докум. Подп. Дата
Разраб.           Спецификация   Лит. Лист Листов
Проверил       у    
        ххххххххх
Н. контр.      
Утвердил      
                           

 

. Название оборудования. Тип, марка оборудования. Единица измерения Кол. Масса единицы обор-я  
  Шібер для рэек          
  Папярочны ланцуговы канвеер ПРД-36-5        
  Канвеер стужачны для пілавіны КЛС        
  Канвеер стужачны для пілавіны КЛС        
  Канвеер стужачны для пілавіны КЛС        
  Канвеер стужачны для пілавіны КЛС        
  Канвеер стужачны для пілавіны КЛС        
  Канвеер стужачны для дробнай КЛС        
  шчапы          
  Канвеер стужачны для буйнай КЛС        
  шчапы          
  Сартыроўка шчапы          
  Канвеер стужачны для загрузкі КЛС        
  Машына рубільная          
  Канвеер стужачны для атвода КЛС        
  Канвеер стужачны для несарта- КЛС        
  ванай шчапы          
             
             
             
             
             
            Лист
           
Изм Лист № докум. Подп. Дата
                       

 

Приложение 1

Министерство образования Республики Беларусь

Учреждение образования

«Гродненский государственный университет имени Янки Купалы»

ТЕХНОЛОГИЧЕСКИЙ КОЛЛЕДЖ

 

 

«Основы инженерная графика»___

(наименование дисциплины)

__________________________________________________________

 




Поделиться с друзьями:


Дата добавления: 2015-06-28; Просмотров: 1998; Нарушение авторских прав?; Мы поможем в написании вашей работы!


Нам важно ваше мнение! Был ли полезен опубликованный материал? Да | Нет



studopedia.su - Студопедия (2013 - 2026) год. Все материалы представленные на сайте исключительно с целью ознакомления читателями и не преследуют коммерческих целей или нарушение авторских прав! Последнее добавление




Генерация страницы за: 0.01 сек.