Студопедия

КАТЕГОРИИ:


Архитектура-(3434)Астрономия-(809)Биология-(7483)Биотехнологии-(1457)Военное дело-(14632)Высокие технологии-(1363)География-(913)Геология-(1438)Государство-(451)Демография-(1065)Дом-(47672)Журналистика и СМИ-(912)Изобретательство-(14524)Иностранные языки-(4268)Информатика-(17799)Искусство-(1338)История-(13644)Компьютеры-(11121)Косметика-(55)Кулинария-(373)Культура-(8427)Лингвистика-(374)Литература-(1642)Маркетинг-(23702)Математика-(16968)Машиностроение-(1700)Медицина-(12668)Менеджмент-(24684)Механика-(15423)Науковедение-(506)Образование-(11852)Охрана труда-(3308)Педагогика-(5571)Полиграфия-(1312)Политика-(7869)Право-(5454)Приборостроение-(1369)Программирование-(2801)Производство-(97182)Промышленность-(8706)Психология-(18388)Религия-(3217)Связь-(10668)Сельское хозяйство-(299)Социология-(6455)Спорт-(42831)Строительство-(4793)Торговля-(5050)Транспорт-(2929)Туризм-(1568)Физика-(3942)Философия-(17015)Финансы-(26596)Химия-(22929)Экология-(12095)Экономика-(9961)Электроника-(8441)Электротехника-(4623)Энергетика-(12629)Юриспруденция-(1492)Ядерная техника-(1748)

Устройство забивных свайных фундаментов

Технология выполнения работ при устройстве монолитных железобетонных плит под гражданские здания.

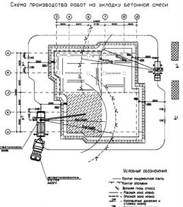
Состав работ: установка и вязка арматуры отдельными стержнями, сварка узлов соединений арматуры, подача бетонной смеси к месту укладки автобетононасосом, укладка бетонной смеси, уход за бетонной поверхностью, демонтаж опалубки.

Рис.2 Схема производства работ при устройстве монолитной плиты 17-ти этажного жилого дома.

Отказ – погружение сваи от одного удара молота в последнем залоге.

Залог – 10 ударов молота или 1 мин вибропогружателя. Отказ сваи зависит от величины погружения сваи, несущей способности основания.

В просадочных грунтах сваи погружаются не до отказа, а до проектной отметки.

Рекомендуются следующие отношения массы ударной части молота к массе сваи: при использовании штанговых дизель-молотов и молотов одиночного действия не менее1,0-1,5; при трубчатых дизель молотов – 0,5-0,7.

Различают следующие машины для свайных работ: копры (ударный способ), молоты (забивка, вибрационный, виброзабивка, вибровдавливание), машины для вспомогательных работ.

Технические характеристики дизель-молотов (штанговые, трубчатые): наибольшая энергия удара (30-88 кДж), наибольшая высота подъема ударной части (3 м), масса ударной части(1800-5000 кг). Примеры: трубчатый дизель-молот С-996, копер КГ-12М.

Технические характеристики копра КГ-12М: длина забиваемой сваи – 12 м; масса сваи – 12 м; сечение сваи 30x30-40x40 см; скорость подъема сваи и молота – 9,5 м/мин.

Технические характеристики трубчатого дизель-молота С-996: высота молота – 4,19 м; высота подъема ударной части – 3 м; масса падающей части – 2,5 т; число ударов в минуту – 47-55.

Выбор дизель-молота для забивки свай:

1.Определить необходимую минимальную расчетную энергию удара молота:

Где Ен – необходимая минимальная расчетная энергия удара, кДж; N – расчетная нагрузка на сваю, кН.

2.Подбираем дизель-молот с энергией удара большей, чем рассчитанной по формуле (1).

3. Определяем расчетное значение энергии удара принятого дизель-молота.

-для штангового

- для трубчатого

Где m4 – масса ударной части молота, кг; g – ускорение свободного падения; Н – фактическая высота падения ударной части молота (1,7-2,8 м).

4.Проверка условия

Где m1 – масса молота, т; m2 – масса сваи и наголовника, т; m3 – масса подбабка; К – коэффициент применимости молота (штанговый – 0,5, трубчатый – 0,8).

5. Отказ железобетонной сваи:

Где

Здесь, - коэффициент, зависящий от материала сваи (1500 кН/м2); А – площадь поперечного сечения сваи, м2; Еd - расчетная энергия удара молота, кДж; - коэффициент надежности (1,4); N – расчетная нагрузка на сваю, кН; m1 - масса молота, т; m2 - масса сваи и наголовника, т; m3 - масса ударной части молота, т; Е – коэффициент восстановления удара (Е2 = 0,2).

Окончательно, рассчитанный отказ должен быть более 0,002 м.

Состав работ при забивке свай: бурение лидерной скважины, уборка грунта от бурения, погружение ж/б свай в грунты, срубка голов свай, срезка стержней арматуры, уборка срубленных голов, выгрузка и раскладка свай у мест погружения, разметка свай, разбивка свайного поля.

Завоз свай на объект – из расчета 3-дневной потребности в нихю Места расположения свай на местности фиксируются штырями. Складирование свай производится в штабели (в два ряда по 5 штук). Погружение составных свай вибропогружателями не допускается. После установки сваи на точку забивки отклонение острия сваи от проектного положения в плане должно быть не более 1 см. Наращивание сваи и соединение элементов – на высоте 0,7-1 м от поверхности земли. Число забивных свай, имеющих тангенс угла наклона продольной оси и вертикали (1/100), не должен превышать 25% от общего количества свай.

Погружение составных свай: устройство скважины, установка элемента нижней составной сваи, соединение нижнее и верхней составной сваи на сварке, полное погружение сваи.

Приемка свай производится на основании: проекта свайных фундаментов, рабочих чертежей элементов составных свай, паспортов на изготовление сваи, актов геодезической забивки основания свайных фундаментов, исполнительных планов забивки свай, журнала забивки свай.

Численно-квалификационный состав бригады: машинист копра 5р -1, машинист крана 5р -1, копровщики 5р -1,3р-1, такелажник 2 р-1, бетонщик-арматурщик 3 р-1, электросварщик 5 р-1.

Допуски: отклонения свай в плане ±0,2-0,3 d; положение в плане ±8-15 см; голов свай ±3 см.

 

Рис.3 Фрагмент технологической карты на устройство забивных свай и монолитного ростверка для 10-ти эт.жилого дома.

Прогрессивные технологии: применение сваевдавливающего оборудования CBУ-B-6 для погружения свай, шпунта в глинистые и песчаные грунты в условиях, где недопустимы динамические и шумовые воздействия. Наибольшее усилие вдавливания до 1000 кН, скорость вдавливания 0,5-2,5 м/мин, длина погружаемых элементов до 14 м; сечение круглое до 45 см и квадратное до 45х45 см.

<== предыдущая лекция | следующая лекция ==>
Устройство монолитных фундаментов мелкого заложения | Устройство буронабивных свайных фундаментов
Поделиться с друзьями:


Дата добавления: 2014-01-03; Просмотров: 1299; Нарушение авторских прав?; Мы поможем в написании вашей работы!


Нам важно ваше мнение! Был ли полезен опубликованный материал? Да | Нет



studopedia.su - Студопедия (2013 - 2026) год. Все материалы представленные на сайте исключительно с целью ознакомления читателями и не преследуют коммерческих целей или нарушение авторских прав! Последнее добавление




Генерация страницы за: 0.014 сек.