Студопедия

КАТЕГОРИИ:


Архитектура-(3434)Астрономия-(809)Биология-(7483)Биотехнологии-(1457)Военное дело-(14632)Высокие технологии-(1363)География-(913)Геология-(1438)Государство-(451)Демография-(1065)Дом-(47672)Журналистика и СМИ-(912)Изобретательство-(14524)Иностранные языки-(4268)Информатика-(17799)Искусство-(1338)История-(13644)Компьютеры-(11121)Косметика-(55)Кулинария-(373)Культура-(8427)Лингвистика-(374)Литература-(1642)Маркетинг-(23702)Математика-(16968)Машиностроение-(1700)Медицина-(12668)Менеджмент-(24684)Механика-(15423)Науковедение-(506)Образование-(11852)Охрана труда-(3308)Педагогика-(5571)Полиграфия-(1312)Политика-(7869)Право-(5454)Приборостроение-(1369)Программирование-(2801)Производство-(97182)Промышленность-(8706)Психология-(18388)Религия-(3217)Связь-(10668)Сельское хозяйство-(299)Социология-(6455)Спорт-(42831)Строительство-(4793)Торговля-(5050)Транспорт-(2929)Туризм-(1568)Физика-(3942)Философия-(17015)Финансы-(26596)Химия-(22929)Экология-(12095)Экономика-(9961)Электроника-(8441)Электротехника-(4623)Энергетика-(12629)Юриспруденция-(1492)Ядерная техника-(1748)

Дыхательные клапана КДС 1500, устройство, принцип работы




Правила безопасности при отборе проб нефти.

Какие параметры необходимо контролировать при работе насосного агрегата.

1) Вибрации из-за неправильной центровки.

2) Перегрев подшипников 75°С.

3) Поломка рабочего колеса.

4) Перегрев сальников.

5) Прекращение подачи.

6) Заземление на насосе.

7) Следить за давлением нагнетания.

8) Следить за запорной арматурой.

9) За двигателем насоса.

10) Уровнем жидкости.

11) За чистотой в насосной.

 

1) Соблюдать требования охраны труда;

2) соблюдаться требования по обеспечению пожарной безопасности;

3) Отбирать пробу с наветренной стороны;

4) Сливать пробу 5 минут;

5) Идти вдвоем.

 

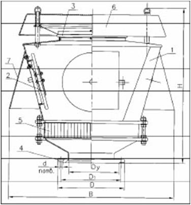
Клапаны дыхательные КДС предназначены для герметизации газового пространства резервуаров с нефтью и нефтепродуктами, и регулирования давления в этом пространстве в заданных пределах, не более 200 мм. вод. ст. избыточного давления и не более 25 мм. вод. ст. вакуума.

Расшифровка аббревиатуры: КДС-1500х250 – клапан дыхательный, 1500 пропускная способность по газу м3/час, 250 – условный диаметр фланца при помощи которого клапан крепится к резервуару.

Дыхательный клапан состоит из одного клапана избыточного давления и четырех вакуумных клапанов.

1-корпус; 2-тарелка (клапан) вакуума; 3-тарелка (клапан) давления; 4-переходник(фланец); 5-огневой предохранитель; 6-крышка; 7-козырек

При повышении давлении свыше 160 мм. вод. ст. клапан приподнимается и высвобождает скопившийся в резервуаре газ, при снижении избыточного давления ниже 160 мм. вод. ст.клапан вновь закрывается.

При образовании вакуума в резервуаре вакуумные клапаны втягиваются во внутрь тем самым происходит засасывание атмосферного воздуха в резервуар.

Проникновение атмосферного воздуха (кислорода) внутрь резервуара процесс нежелательный, т.к. при контакте сероводорода с металлом резервуара образуются пирофорные отложения, которые способны самовоспламеняться в присутствии кислорода воздуха. Поэтому во-избежание попадания воздуха в резервуар и предотвращения попадания сероводорода в атмосферу все резервуарные парки снабжены системой улавливания легких фракций УУЛФ. УУЛФ обеспечивает откачку скопившихся газов либо в случае возникновения вакуума подает в резервуары углеводородный газ. Дыхательные клапаны в этом случае играют роль аварийных клапанов, на случай остановки УУЛФ.

Важно: в зимние месяцы ежесменно необходимо проверять исправность дыхательных клапанов, проверять работоспособность клапанов(не примерзли ли) – клапан избыточного давления необходимо приподнять, а вакуумные клапана необходимо надавить во внутрь, при осмотре необходимо убирать образовавшийся иней, снег, лед с поверхности клапанов, также необходимо контролировать целостность полимерной пленки, которой покрыты клапана, если пленка будет порвана либо деформирована то клапан не будет герметичен.

 




Поделиться с друзьями:


Дата добавления: 2015-08-31; Просмотров: 2985; Нарушение авторских прав?; Мы поможем в написании вашей работы!


Нам важно ваше мнение! Был ли полезен опубликованный материал? Да | Нет



studopedia.su - Студопедия (2013 - 2026) год. Все материалы представленные на сайте исключительно с целью ознакомления читателями и не преследуют коммерческих целей или нарушение авторских прав! Последнее добавление




Генерация страницы за: 0.007 сек.