Студопедия

КАТЕГОРИИ:


Архитектура-(3434)Астрономия-(809)Биология-(7483)Биотехнологии-(1457)Военное дело-(14632)Высокие технологии-(1363)География-(913)Геология-(1438)Государство-(451)Демография-(1065)Дом-(47672)Журналистика и СМИ-(912)Изобретательство-(14524)Иностранные языки-(4268)Информатика-(17799)Искусство-(1338)История-(13644)Компьютеры-(11121)Косметика-(55)Кулинария-(373)Культура-(8427)Лингвистика-(374)Литература-(1642)Маркетинг-(23702)Математика-(16968)Машиностроение-(1700)Медицина-(12668)Менеджмент-(24684)Механика-(15423)Науковедение-(506)Образование-(11852)Охрана труда-(3308)Педагогика-(5571)Полиграфия-(1312)Политика-(7869)Право-(5454)Приборостроение-(1369)Программирование-(2801)Производство-(97182)Промышленность-(8706)Психология-(18388)Религия-(3217)Связь-(10668)Сельское хозяйство-(299)Социология-(6455)Спорт-(42831)Строительство-(4793)Торговля-(5050)Транспорт-(2929)Туризм-(1568)Физика-(3942)Философия-(17015)Финансы-(26596)Химия-(22929)Экология-(12095)Экономика-(9961)Электроника-(8441)Электротехника-(4623)Энергетика-(12629)Юриспруденция-(1492)Ядерная техника-(1748)

Контейнерные пункты и терминалы

Вопросы:

1. Что называют контейнерным пунктом и контейнерным терминалом

2. Классификация контейнерных пунктов

3. Что называют сектором на контейнерной площадке? Что понимают под контейнероместом?

4. Как размещают на площадке крупнотоннажные и среднетоннажные контейнеры

Литература:

1. Перепон В.П. «Организация перевозок грузов». Маршрут 2003 г. (стр. 297)

Переработка контейнеров на станциях железных дорог организуется на контейнерных пунктах, где осуществляется погрузка, выгрузка, сор­тировка, хранение, завоз, вывоз, комплектование, технический и ком­мерческие осмотры, а также текущий ремонт контейнеров, оформление перевозочных документов, информиро­вание грузополучателей и другие операции, обеспечивающие сохранность грузов и контейнеров.

Комплекс устройств, входящих в контейнерный пункт: площадка для краткосрочного хранения контейнеров, автопроезды, железнодорожные погрузочно-выгрузочные пути, грузоподъемные механизмы, стоянки для полуприцепов, служебные и бытовые помещения.

Контейнерные пункты размещаются либо непосредственно на желез­нодорожных станциях, либо на подъездных путях предприятий.

В зави­симости от характера выполняемых операций они бывают:

- грузовые, предназначенные для погрузки и выгрузки контейнеров, принятых к отправлению или подлежащих выдаче на данной станции;

-грузосортировочные, где, кроме операций, выполняемых на грузо­вых пунктах, сортируют транзитный поток контейнеров;

- сортировочные, выполняющие только сортировку транзитных контейнеров.

На перегрузочном комплексе станций- терминалов в большом объе­ме производятся операции с крупнотоннажными и среднетоннажными контейнерами как по приему контейнеров от грузоотправителей и выдаче их грузополучателям, так и по передаче потока контейнеров с одного вида транспорта на другой.

При наличии на контейнерном пункте нескольких площадок производится их специализация по прибытию и отправлению. Размещение контейнеров на площадках должно соответ­ствовать технологическим схемам, приведенным в Типовом технологи­ческом процессе работы грузовой станции.

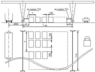
Каждая площадка делится на секторы, состоящие из двух попереч­ных рядов контейнеромест для среднетоннажных контейнеров и из двух-трех поперечных рядов контейнеромест для крупнотоннажных контей­неров.

Секторам присваивают порядковые номера и объединяют их в специализированные участки (по отправлению, прибытию, для маршрута и т.п.).

Под контейнероместом понимается площадь, занимаемая одним кон­тейнером массой брутто 3 или 24 т.

Контейнеры массой брутто 5 или 30,5 т занимают два контейнероместа.

Между секторами должны быть проходы шириной не менее 0,6 м, а между контейнерами в секторах—зазоры 0,1 м.

Через каждые 100 м на площадке устраиваются поперечные противопожарные проезды шири­ной 5-10 м. Проезды для автотранспорта принимаются шириной 3,5—4 м для каждой полосы движения.

Крупнотоннажные контейнеры размещаются на площадке длинной стороной вдоль площадки. Все груженые контейнеры устанавливаются две­рями друг к другу. Установка контейнеров дверями наружу допускается только при условии, что каждый контейнер в секторе устанавливается сво­ей дверью к ограждающему брусу.

Площадки складирования контейнеров должны быть размечены контрастной краской для установки контейнеров.

На площадке круп­нотоннажные контейнеры могут устанавливаться в два яруса по вы­соте, а при достаточной прочности покрытия площадок и наличия соответствующих погрузочно-разгрузочных машин до шести ярусов.

При установке во второй и третий ярус должны учитываться условия удобства обозрения контейнеров и исключения случаев перестановки контейнеров для отправки нижнего контейнера до того, как будет от­правлен верхний.

Среднетоннажные контейнеры устанавливаются на площадках, как правило, в один ярус. В случае необходимости при наличии кранов с достаточной высотой подъема и площадок с достаточно твердым по­крытием среднетоннажные однотипные контейнеры могут устанавливаться не более чем в два яруса. Контейнеры расставляются дверями внутрь секторов.

Расстояние от наиболее выступающих частей опор крана до контейне­ров, установленных на площадке, должно быть не менее 700 мм, а от оси железнодорожного пути до контейнеров—3150 мм.

Рисунок 1 – Площадка для среднетоннажных контейнеров

При специализации контейнерных площадок, выделенных для пе­реработки местных контейнеров, их делят на участки по отправлению и прибытию. Участок контейнероместа, расположенный ближе к же­лезнодорожному пути, предназначается для контейнеров, подлежащих отправлению по железной дороге, а находящийся со стороны подъезда автомобилей — для контейнеров, подлежащих вывозу ав­тотранспортом.

Участок по отправлению делят на секции по назначе­ниям плана формирования. При недостаточной вместимости площад­ки применяют скользящую по дням недели специализацию секций в соответствии с календарным планом завоза контейнеров, либо зак­репляют за одной секцией несколько назначений, предусмотренных планом формирования.

Для погрузки и выгрузки контейнеров используют краны козловые, мостовые, автопогрузчики вилочные, погрузчики, оборудованные грузозахватным приспособлением – спредер. Для переработки контейнеров используется навесное оборудование, которое прикрепляется к кранам и называется – спредер (для переработки крупнотоннажных контейнеров), автостроп (для переработки среднетоннажных контейнеров).

<== предыдущая лекция | следующая лекция ==>
Погрузка и размещение грузов в контейнерах | Технология работы контейнерного пункта
Поделиться с друзьями:


Дата добавления: 2014-01-04; Просмотров: 7185; Нарушение авторских прав?; Мы поможем в написании вашей работы!


Нам важно ваше мнение! Был ли полезен опубликованный материал? Да | Нет



studopedia.su - Студопедия (2013 - 2026) год. Все материалы представленные на сайте исключительно с целью ознакомления читателями и не преследуют коммерческих целей или нарушение авторских прав! Последнее добавление




Генерация страницы за: 0.013 сек.