Студопедия

КАТЕГОРИИ:


Архитектура-(3434)Астрономия-(809)Биология-(7483)Биотехнологии-(1457)Военное дело-(14632)Высокие технологии-(1363)География-(913)Геология-(1438)Государство-(451)Демография-(1065)Дом-(47672)Журналистика и СМИ-(912)Изобретательство-(14524)Иностранные языки-(4268)Информатика-(17799)Искусство-(1338)История-(13644)Компьютеры-(11121)Косметика-(55)Кулинария-(373)Культура-(8427)Лингвистика-(374)Литература-(1642)Маркетинг-(23702)Математика-(16968)Машиностроение-(1700)Медицина-(12668)Менеджмент-(24684)Механика-(15423)Науковедение-(506)Образование-(11852)Охрана труда-(3308)Педагогика-(5571)Полиграфия-(1312)Политика-(7869)Право-(5454)Приборостроение-(1369)Программирование-(2801)Производство-(97182)Промышленность-(8706)Психология-(18388)Религия-(3217)Связь-(10668)Сельское хозяйство-(299)Социология-(6455)Спорт-(42831)Строительство-(4793)Торговля-(5050)Транспорт-(2929)Туризм-(1568)Физика-(3942)Философия-(17015)Финансы-(26596)Химия-(22929)Экология-(12095)Экономика-(9961)Электроника-(8441)Электротехника-(4623)Энергетика-(12629)Юриспруденция-(1492)Ядерная техника-(1748)

Устройство и планировки холодильников

Современные холодильники сооружаются в виде одноэтажных, либо многоэтажных зданий с подвалами, либо без них. Как правило – это панельные сооружения с толщиной наружных стен 0,35...0,5 м и соотношением внешних сторон 2:1. Повышенная прочность здания холодильника обеспечивается наличием сетки опорных колонн с нормированным расстоянием между ними (шагом): 6´6 м, либо 6´12 м.

Основным типом помещений в холодильнике является камера хранения охлажденного, либо замороженного груза. Последний хранится в них чаще всего в штабелях, однако может находиться и в специальных коробах, на полках вдоль стен камеры, либо на подвесных путях (туши животных).

Длины стен, как правило, выполняют кратными шести метрам, а высоты камер – одному метру (обычно 4, 5, 6 м) – для одноэтажных холодильников и шестидесяти сантиметрам (3,6; 4,2; 4,8 м) – для многоэтажных холодильников.

Само здание холодильника резко отличается от других зданий тем, что в нем нет окон и оно всегда имеет светлую окраску (для уменьшения внешних теплопритоков в камеры холодильника). Само здание приподнято на высоту 1,2 м для облегчения погрузочно-разгрузочных работ на транспорте, обслуживающем холодильник. Обычно вдоль большей стороны здания предусматривают железнодорожную платформу, а вдоль какой-нибудь другой стороны – автомобильную. Ширина платформ колеблется от 8 до 12 метров. Часто для защиты от дождя и снега над платформой устанавливают специальные навесы.

Большая часть холодильника, где хранится груз, имеет мощную теплоизоляцию (изолированный контур), что позволяет сократить расход электроэнергии на производство холода.

Компрессорный цех холодильника проектируют вне изолированного контура, по возможности, где-нибудь в укромном месте, поскольку аммиачные холодильные машины всегда потенциально опасны для человека.

Наконец, нельзя не отметить, что многоэтажные холодильники имеют, помимо лестниц, несколько многотонных лифтов, с помощью которых осуществляется грузооборот на холодильнике.

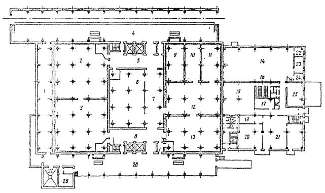
Вариант планировки первого этажа многоэтажного распределительного холодильника емкостью 10000 т приведен на рис. 9.1.

 

 

Рис. 9.1. План первого этажа типового распределительного холодильника емкостью
10 000 т:

1 – соединительный коридор; 2,3 – камеры универсальные; 4 – железнодорожная платформа (дебаркадер); 5, 8 – вестибюли; 6 – экспедиция; 7 – коридор; 9, 10, 11 – морозильные камеры; 12 – загрузочно-разгрузочное помещение; 13 – камера хранения охлажденного мяса; 14 – машинное отделение; 15 – материальный склад; 16 – мужской гардероб; 17 – тепловой пункт; 18 – кладовая; 19 – электролитная; 20 – зарядная; 21 – профилакторий и стоянка электропогрузчиков; 22 – лаборатория; 23 – центральный пункт управления и контроля; 24 – комната механика; 25 – механическая мастерская; 26 – автомобильная платформа; 27 – мойка; 28 – комната кладовщиков.

 

Здесь вдоль длинных сторон здания холодильника предусмотрены железнодорожная 4 и автомобильная 26 платформы, объединенные соединительным коридором 1. Груз, принятый с транспорта, взвешивают на весах, расположенных на платформах, и через вестибюли 5, 8 и коридор 7 направляют в экспедицию 6, где его проверяют и доставляют в камеры хранения на верхние этажи или морозильные камеры 9, 10, 11. Для подъема грузов на верхние этажи предусмотрено четыре лифта по два со стороны каждой платформы.

Машинное отделение 14 и вспомогательные помещения расположены в одноэтажной пристройке к зданию, вынесенной за пределы изолированного контура.

На рис. 9.2 приведены план и разрез одноэтажного холодильника для фруктов и винограда емкостью 1200 т. Главной его особенностью является отсутствие аммиачного компрессорного цеха – каждая из камер снабжена двумя фреоновыми холодильно-нагревательными машинами 14, смонтированными снаружи вдоль длинных сторон здания. Широкий коридор 11 удобно соединяет железнодорожную 12 и автомобильную 13 платформы холодильника, максимально упрощая грузооборот.

 

Рис. 9.2. Холодильник для фруктов и винограда емкостью 1200 т с децентрализованной системой охлаждения: 1...4 – камеры хранения фруктов; 5...8 – камеры хранения винограда; 9 – экспедиция; 10 – блок подсобных, бытовых и конторских помещений; 11 – грузовой коридор; 12 – железнодорожная платформа; 13 – автомобильная платформа; 14 – холодильно-нагревательная машина ХМФ-16; 15 – навес; 16 – инспекционный транспортер ТСИ

 

С некоторыми типичными планировками холодильников можно познакомиться в [2, с. 325-330] и [3, с. 207-217].

<== предыдущая лекция | следующая лекция ==>
Абсорбционные холодильные машины (АХМ) | Телоизоляционные материалы
Поделиться с друзьями:


Дата добавления: 2014-01-04; Просмотров: 2614; Нарушение авторских прав?; Мы поможем в написании вашей работы!


Нам важно ваше мнение! Был ли полезен опубликованный материал? Да | Нет



studopedia.su - Студопедия (2013 - 2026) год. Все материалы представленные на сайте исключительно с целью ознакомления читателями и не преследуют коммерческих целей или нарушение авторских прав! Последнее добавление




Генерация страницы за: 0.011 сек.