Студопедия

КАТЕГОРИИ:


Архитектура-(3434)Астрономия-(809)Биология-(7483)Биотехнологии-(1457)Военное дело-(14632)Высокие технологии-(1363)География-(913)Геология-(1438)Государство-(451)Демография-(1065)Дом-(47672)Журналистика и СМИ-(912)Изобретательство-(14524)Иностранные языки-(4268)Информатика-(17799)Искусство-(1338)История-(13644)Компьютеры-(11121)Косметика-(55)Кулинария-(373)Культура-(8427)Лингвистика-(374)Литература-(1642)Маркетинг-(23702)Математика-(16968)Машиностроение-(1700)Медицина-(12668)Менеджмент-(24684)Механика-(15423)Науковедение-(506)Образование-(11852)Охрана труда-(3308)Педагогика-(5571)Полиграфия-(1312)Политика-(7869)Право-(5454)Приборостроение-(1369)Программирование-(2801)Производство-(97182)Промышленность-(8706)Психология-(18388)Религия-(3217)Связь-(10668)Сельское хозяйство-(299)Социология-(6455)Спорт-(42831)Строительство-(4793)Торговля-(5050)Транспорт-(2929)Туризм-(1568)Физика-(3942)Философия-(17015)Финансы-(26596)Химия-(22929)Экология-(12095)Экономика-(9961)Электроника-(8441)Электротехника-(4623)Энергетика-(12629)Юриспруденция-(1492)Ядерная техника-(1748)

Коридорные и коридорно-секционные жилые дома




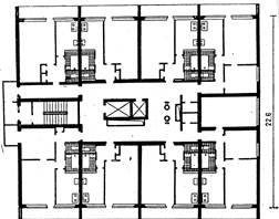
В коридорных домах квартиры расположены вдоль коридора. Многоэтажные коридорные дома очень экономичные, с простой конструктивной схемой на основе каркаса, нашли широкое применение в частном арендном (доходном) строительстве, в основном в жилищном строительстве США. У нас в стране основная область применения коридорных домов - специализированное жилище (гостиницы, общежития, интернаты). Экономичность коридорного дома следует из сокращения расходов на лифты и лестницы, так как их надо устраивать лишь через 80 м (рис. 62).

Современный многоэтажный жилой дом имеет сложную планировочную структуру, связанную с использованием ярусных квартир. Коридорный жилой дом с многоярусными квартирами, наиболее разнообразный по типам квартир и по градостроительной маневренно-сти, обеспечивает возможность проектирования встроенных общественных помещений. Применению коридорных структур в природно-климатических и социальных условиях России может способствовать проектирование двухярусных квартир в коридорных домах. Двухярусные квартиры проектируют для средних и больших семей, что исключается для коридорных зданий с квартирами в одном уровне. Такие квартиры позволяют повысить изоляцию квартир, тем самым, устранив серьёзный недостаток коридорного дома. Вместе с тем, квартиры в двух уровнях пока непопулярны у населения и у архитекторов в нашей стране.

Современный многоэтажный коридорный жилой дом имеет сложное пространственное построение. Расположение коридора в разрезе жилого дома определяет пространственную организацию квартир (рис. 63).Она может быть в двух или трёх уровнях, с перепадом уров-

 

 

 

а

 

в

 

б

 

г

 

Рис. 61. Многоэтажные односекционные жилые дома.

1 - схемы односекционных домов; 2 - примеры многоэтажных односекционных домов: а - 25-этажный жилой дом с 11 квартирами на этаже (Германия); б - 32-этажный дом с 16 квартирами на этаже (США); в – общий вид 16-этажного дома (Россия); г - 16-этажный дом с 8 квартирами на этаже (СССР).

 

 

 

Рис. 62. Многоэтажные коридорные дома.

 

 

 

 

Рис. 63. Жилые дома с квартирами в разных уровнях.

1 - квартиры в доме с коридором через этаж; 2 - квартиры в домах с коридором через два этажа.

ней внутри квартиры на этаж или на половину этажа. Построение фасада коридорного жилого дома определяется положением коридора и пространственной организацией квартир, что проявляется в наиболее сильно выраженных горизонтальных членениях.

Классификация многоэтажных коридорных домов основана на следующих признаках:

1) место расположения коридоров: с одной или с двух сторон корпуса, в центре, либо по обе стороны от оси здания;

2) высота перепадов и число уровней квартиры: квартиры в двух уровнях, в одном уровне, со смещением на пол-этажа в один, два и три уровня (рис. 51).

Существуют несколько приёмов организации входа в квартиру:

1) устройство на уровне коридора тамбура и лестницы, ведущей в квартиру на этаж выше или ниже коридора. В таком случае квартиры проектируют в одном уровне;

2) расположение на уровне коридора прихожей и общесемейной части квартиры, внутренняя лестница ведёт в личные помещения квартиры. Квартиры имеют двухярусное построение;

3) размещение входа на площадке лестничной клетки выше или ниже коридорного этажа с квартирами в одном уровне.

Последняя планировка называется коридорно-секционной. Лифты выделяют в отдельный блок, коридоры располагают через два-четыре этажа. Таким образом, коридорно-секционный жилой дом образован соединением большого числа секций, у которых в лестничной клетке нет лифта, с общим для всех квартир ЛЛУ, проход к которому из квартир осуществляется по коридорам, расположенным через несколько этажей. Коридорно-секционные многоэтажные жилые дома используют как шумозащитные здания, широко применяют такие дома в зарубежной практике. Жилые помещения хорошо защищены от шума, но очень сложна ориентация человека в таком доме. В жилых комплексах общие коридоры решают как общественные пространства - улицы с учреждениями общественного обслуживания функций быта и отдыха (рис. 64).

 

 




Поделиться с друзьями:


Дата добавления: 2014-01-07; Просмотров: 6338; Нарушение авторских прав?; Мы поможем в написании вашей работы!


Нам важно ваше мнение! Был ли полезен опубликованный материал? Да | Нет



studopedia.su - Студопедия (2013 - 2025) год. Все материалы представленные на сайте исключительно с целью ознакомления читателями и не преследуют коммерческих целей или нарушение авторских прав! Последнее добавление




Генерация страницы за: 0.008 сек.