Студопедия

КАТЕГОРИИ:


Архитектура-(3434)Астрономия-(809)Биология-(7483)Биотехнологии-(1457)Военное дело-(14632)Высокие технологии-(1363)География-(913)Геология-(1438)Государство-(451)Демография-(1065)Дом-(47672)Журналистика и СМИ-(912)Изобретательство-(14524)Иностранные языки-(4268)Информатика-(17799)Искусство-(1338)История-(13644)Компьютеры-(11121)Косметика-(55)Кулинария-(373)Культура-(8427)Лингвистика-(374)Литература-(1642)Маркетинг-(23702)Математика-(16968)Машиностроение-(1700)Медицина-(12668)Менеджмент-(24684)Механика-(15423)Науковедение-(506)Образование-(11852)Охрана труда-(3308)Педагогика-(5571)Полиграфия-(1312)Политика-(7869)Право-(5454)Приборостроение-(1369)Программирование-(2801)Производство-(97182)Промышленность-(8706)Психология-(18388)Религия-(3217)Связь-(10668)Сельское хозяйство-(299)Социология-(6455)Спорт-(42831)Строительство-(4793)Торговля-(5050)Транспорт-(2929)Туризм-(1568)Физика-(3942)Философия-(17015)Финансы-(26596)Химия-(22929)Экология-(12095)Экономика-(9961)Электроника-(8441)Электротехника-(4623)Энергетика-(12629)Юриспруденция-(1492)Ядерная техника-(1748)

После нарезания после




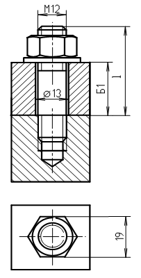
Шпилечное соединение

 

На рис. 98 выполнен чертеж шпилечного соединения. Длина шпильки определяется аналогично длине болта, но при этом длина шпильки меньше длины болта на толщину пластины, в которую ввинчивается шпилька. В длину шпильки l = Б1+S+H+t входит толщина только пластины Б1, которая присоединяется шпилькой, например к корпусу.

Длина ввинчиваемого конца резь-бы l 1 зависит от материала детали, в которую ввинчивается шпилька (рис. табл. 27):

l 1 = d - сталь, бронза, латунь;

l 1=1,25d - ковкий и серый чугун;

l 1=1,6d - ковкий и серый чугун;

l 1 = 2d - легкие сплавы.

Расчетное значение l 1 округляется до целого числа.

 

Размеры сверленого гнезда под шпильку (рис. 99):

резьбы сверления

 

Рис. 98 Рис. 99

 

- сверлится отверстие диаметром 9 мм (внутренний диаметр резьбы М12) на глубину l = l1 + d;

- выполняется фаска сх45°, где с следует взять из табл. 21;

- нарезается резьба М12 на длину l2 = l1 + 0,5d.

В такое отверстие можно ввернуть не только шпильку, но и болт или винт.

На чертеже проставляются длина цилиндрического отверстия l, длина резьбы l 2, размер фаски и обозначение резьбы.

Поверхность, на которую опирается головка болта, винта или шайба должна быть перпендикулярна оси крепежной детали и иметь достаточную чистоту.

На литых деталях для распределения усилия сжатия на большую поверхность выполняются бобышки (приливы).

Размеры опорных поверхностей под винты, болты и шайбы приведены в табл. 28 и 29.


Опорные поверхности под винты Таблица 28

Примечание: D2 – диаметр отверстия под крепежный винт, болт или шпильку.

 

 
 

Опорные поверхности под болты Таблица 29

D1 - диаметр бобышки, D2 - диаметр углубления опорной поверхности под торцовый ключ.




Поделиться с друзьями:


Дата добавления: 2014-12-16; Просмотров: 1058; Нарушение авторских прав?; Мы поможем в написании вашей работы!


Нам важно ваше мнение! Был ли полезен опубликованный материал? Да | Нет



studopedia.su - Студопедия (2013 - 2026) год. Все материалы представленные на сайте исключительно с целью ознакомления читателями и не преследуют коммерческих целей или нарушение авторских прав! Последнее добавление




Генерация страницы за: 0.011 сек.