Студопедия

КАТЕГОРИИ:


Архитектура-(3434)Астрономия-(809)Биология-(7483)Биотехнологии-(1457)Военное дело-(14632)Высокие технологии-(1363)География-(913)Геология-(1438)Государство-(451)Демография-(1065)Дом-(47672)Журналистика и СМИ-(912)Изобретательство-(14524)Иностранные языки-(4268)Информатика-(17799)Искусство-(1338)История-(13644)Компьютеры-(11121)Косметика-(55)Кулинария-(373)Культура-(8427)Лингвистика-(374)Литература-(1642)Маркетинг-(23702)Математика-(16968)Машиностроение-(1700)Медицина-(12668)Менеджмент-(24684)Механика-(15423)Науковедение-(506)Образование-(11852)Охрана труда-(3308)Педагогика-(5571)Полиграфия-(1312)Политика-(7869)Право-(5454)Приборостроение-(1369)Программирование-(2801)Производство-(97182)Промышленность-(8706)Психология-(18388)Религия-(3217)Связь-(10668)Сельское хозяйство-(299)Социология-(6455)Спорт-(42831)Строительство-(4793)Торговля-(5050)Транспорт-(2929)Туризм-(1568)Физика-(3942)Философия-(17015)Финансы-(26596)Химия-(22929)Экология-(12095)Экономика-(9961)Электроника-(8441)Электротехника-(4623)Энергетика-(12629)Юриспруденция-(1492)Ядерная техника-(1748)

Загальні прийоми роботи з виглядами




До загальних прийомів роботи з видами в системі Компас-3D можна віднести:

– перемикання між виглядами;

– зміна стану вигляду;

– зміна параметрів вигляду;

– виділення вигляду;

– копіювання і перенесення виглядів через буфер;

– вилучення вигляду;

– налаштування креслення фонових і вимкнених виглядів;

– компонування виглядів на аркуші.

Перемикання між виглядами

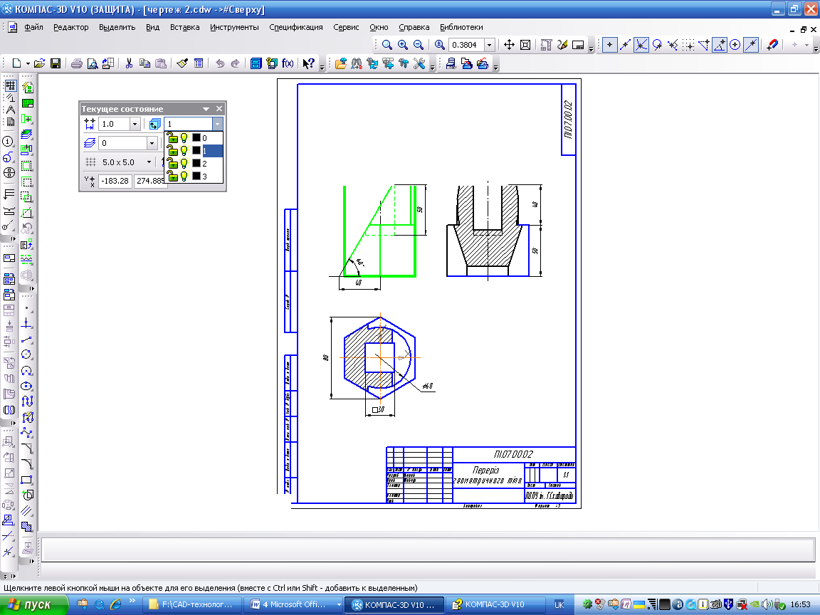
– Потрібно вибрати або ввести з клавіатури номер або назву (це залежить від налаштувань) потрібного вигляду в полі Поточний вигляд на панелі Поточний стан (рис.7.5), і він стане поточним. Вигляд, виділений в списку, підсвічується у вікні документа. Значки перед номером або назвою вигляду показують його поточний стан.

 

Рис. 7.5

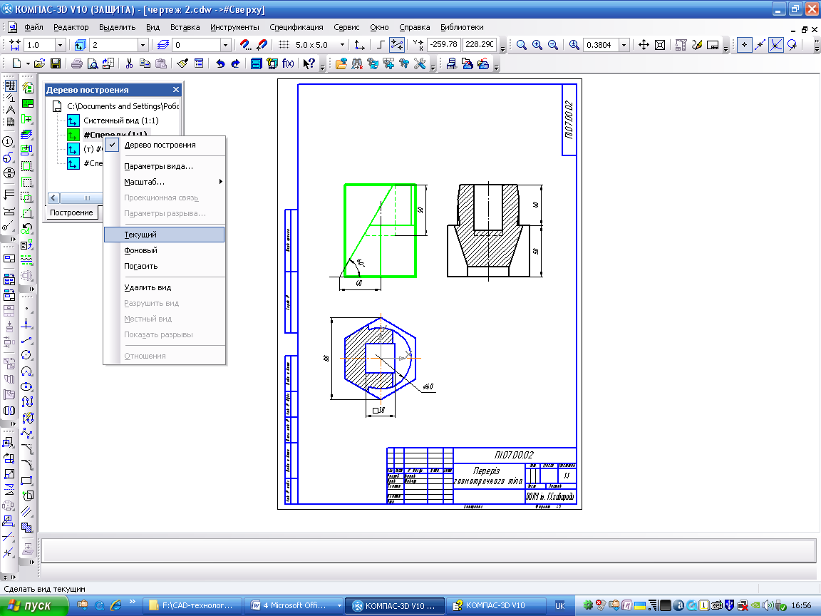
– Виділити потрібний вигляд в Дереві побудови креслення і вибрати з контекстного меню послугу Поточний (рис.7.6).

 

Рис. 7.6

– Якщо потрібний вигляд включений, тобто є робочим і видимим, потрібно встановити курсор мишки на будь-якому об'єкті цього вигляду і двічі натиснути ліву кнопку мишки. Запуститься процес редагування об'єкту, а вигляд, в якому об'єкт знаходиться, стане поточним.Вигляд, який був поточним раніше, повернеться в свій попередній стан.

 

Зміна стану вигляду

Щоб змінити стан вигляду, потрібно виконати наступні дії.

1. Викликати Менеджер документа.

2. Виділили в Дереві аркушів, видів і шарів Менеджера кореневий елемент поточного креслення. В Списку листів, видів і шарів будуть показані всі наявні в кресленні види та їх властивості.

3. Виділити в Списку вигляд, стан якого потрібно змінити.

4. Задати властивості вигляду за допомогою кнопок панелі інструментів Менеджера документа:


Зробити поточним;

Поточний;

Фоновий;

Видимий;




Поделиться с друзьями:


Дата добавления: 2014-11-29; Просмотров: 554; Нарушение авторских прав?; Мы поможем в написании вашей работы!


Нам важно ваше мнение! Был ли полезен опубликованный материал? Да | Нет



studopedia.su - Студопедия (2013 - 2026) год. Все материалы представленные на сайте исключительно с целью ознакомления читателями и не преследуют коммерческих целей или нарушение авторских прав! Последнее добавление




Генерация страницы за: 0.007 сек.