Студопедия

КАТЕГОРИИ:


Архитектура-(3434)Астрономия-(809)Биология-(7483)Биотехнологии-(1457)Военное дело-(14632)Высокие технологии-(1363)География-(913)Геология-(1438)Государство-(451)Демография-(1065)Дом-(47672)Журналистика и СМИ-(912)Изобретательство-(14524)Иностранные языки-(4268)Информатика-(17799)Искусство-(1338)История-(13644)Компьютеры-(11121)Косметика-(55)Кулинария-(373)Культура-(8427)Лингвистика-(374)Литература-(1642)Маркетинг-(23702)Математика-(16968)Машиностроение-(1700)Медицина-(12668)Менеджмент-(24684)Механика-(15423)Науковедение-(506)Образование-(11852)Охрана труда-(3308)Педагогика-(5571)Полиграфия-(1312)Политика-(7869)Право-(5454)Приборостроение-(1369)Программирование-(2801)Производство-(97182)Промышленность-(8706)Психология-(18388)Религия-(3217)Связь-(10668)Сельское хозяйство-(299)Социология-(6455)Спорт-(42831)Строительство-(4793)Торговля-(5050)Транспорт-(2929)Туризм-(1568)Физика-(3942)Философия-(17015)Финансы-(26596)Химия-(22929)Экология-(12095)Экономика-(9961)Электроника-(8441)Электротехника-(4623)Энергетика-(12629)Юриспруденция-(1492)Ядерная техника-(1748)

Основные части зданий




ГЛАВА ЧЕРТЕЖИ ПЛАНОВ, РАЗРЕЗОВ, ФАСАДОВ

Общий чертеж здания представляет собой сборочный чертеж, так как каждое здание в целом состоит из отдельных частей-узлов, а каждый узел из отдельных элементов. Для понимания строительного чертежа следует вначале ознакомиться с терминологией, применяемой в строительном деле. Для этого рассмотрим основные части, из которых состоит здание.

Здание - наземное сооружение, включающее различные изолированные помещения.

Основными конструктивными элементами здания являются фундаменты, стены, перегородки, перекрытия, окна, двери, крыша и лестницы (рис. 2.1).

Основание и фундаменты. Подземная часть здания, предназначенная для передачи на грунт нагрузки, называется фундаментом. Грунт, на который опирается фундамент, называется основанием.

Цоколь является продолжением фундамента и поднимается над поверхностью земли до уровня первого этажа, называемого уровнем чистого пола (Ур. ч. п.). На разрезах цоколь обязательно показывается в виде выступа на 100... 120 мм или углубления на 40 мм.

Стены могут быть выполнены из бетона (в виде панелей заводского изготовления или крупных блоков), камней (естественных или искусственных) и дерева.

Если стены выполнены из стандартного кирпича, размер которого 250х120х65 мм, то стены кладут с соблюдением перевязки швов (т.е. ряд кирпичной кладки стен перекрывает швы предыдущего ряда).

Для усиления стены в плоскости фасада устраивают вертикальные выступы небольшой ширины (пилястры), полуколонны и горизонтальные пояса и карнизы.

На рис. 2.2 дан пример разреза по стене кирпичного здания облегченной конструкции.

Карниз - венчающая часть наружных стен может быть выполнен из кирпича. В этом случае он выступает от плоскости стены не более чем на 250 мм. Бетонный карниз в виде плиты может выступать или, как говорят, иметь вынос до 680 мм (рис. 2.3), у деревянных стен карниз может выступать на 500...800 мм.

Перекрытия и полы. Горизонтальные элементы зданий, делящие их по высоте на отдельные участки (этажи), называются перекрытиями.

Перекрытия различают надподвальные, междуэтажные и чердачные. Они представляют собой многослойную конструкцию, состоящую из несущих элементов (балки из дерева, металлические балки, железобетонные балки, плиты и др.) и различных полов с заполнениями, обеспечивающими утепление и звукоизоляцию помещений. Заполнителями могут служить минераловатные плиты, крупнозернистые насыпки, шлаки, различные плиты, укладываемые по накату.

В жилых помещениях толщина междуэтажного перекрытия может быть 320...400 мм.

Многослойная конструкция на чертеже сопровождается выносными надписями, которые располагают одну над другой с общей линией-выноской. В надписях указывают толщину слоя или марку детали (рис. 2.4). Размеры, входящие в состав выносных надписей, следует давать в миллиметрах. Неполное изображение на чертеже ограничивается линией обрыва, которая должна, как правило, проходить через все изображение.

Покрытие состоит из крыши и чердачного перекрытия. Крыша состоит из несущей конструкции и кровли. Покрытие служит защитой здания от атмосферных осадков и ветра, от нагревания солнцем (перегрева).

Покрытия с чердаком называют чердачными; если кровля примыкает вплотную или объединяется с чердачным перекрытием, то его называют совмещенным или бесчердачным покрытием (рис. 2.5).


 


 

 


 

 



Для отвода атмосферных осадков чердачные и бесчердачные покрытия делают с уклонами, а уклон покрытия зависит от материала и конструкции его верхнего водоизоляционного слоя. Чем плотнее материал кровли и чем герметичнее стыки ее элементов, тем меньше может быть уклон покрытия.

Лестница. Помещение, в котором размещают лестницу, называют лет-ничной клеткой. Лестницы представляют собой несущие конструкции, состоящие из наклонных ступенчатых элементов - маршей и горизонтальных плоскостных элементов-лестничных площадок и перил. На рис. 2.6 даны варианты сборных лестниц: а-содержит отдельные ступени, косоуры, балки и плиты; б- марши и площадки; в-марши с полуплощадками; г-объемный блок лестничной клетки. На чертеже даны следующие элементы: /-ступени; 2-косоуры; J-балки; 4- плиты; 5-марши; б-площадки; 7-марш с полуплощадкой; 8 -дополнительная площадка; 9-ригель.

Окна. Заполнение оконных проемов состоит из оконной коробки и остекленных переплетов, подоконной доски и наружного слива.

Оконные переплеты имеют открывающиеся или глухие створки, вставляемые в коробку. Коробку приставляют к четвертям оконного проема и крепят костылями к деревянным пробкам, заложенным в кладку стены. Коробка состоит из горизонтального вершника, боковых косяков и нижней обвязки.

На рис. 2.7 показан общий вид окна, конструктивные элементы и детали заполнения оконного проема: 7-подоконная доска; 2-откос оконного проема; 3- четверть; 4- перемычка; 5-оконная коробка; 6-глухая фрамуга; 7-толь.

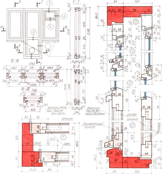
Окна могут быть одностворчатыми, двухстворчатыми, трехстворчатыми или с балконной дверью. На рис. 2.8 дан чертеж балконного блока, состоящего из дверной и оконной коробок, для двух окон и балконной двери. На чертеже показаны размеры окон и двери и их форма, даны детали и поперечные сечения элементов, а также ссылки на конструктивные детали, которые выполнены в виде сечений.

Двери по назначению делятся на внутренние и наружные, по способу открывания - на распашные, раздвижные, складчатые, вращающиеся и двери-шторы. Распашные двери разделяют по числу дверных полотен на однопольные, двупольные и полуторные.

При определении ширины двери учитывают габариты оборудования, размещаемого в помещении, и пропускную способность в момент срочной эвакуации людей. Ширину двери при этом выбирают из расчета 0,6 м на каждые 100 человек.


 

 


 




Поделиться с друзьями:


Дата добавления: 2014-12-07; Просмотров: 1545; Нарушение авторских прав?; Мы поможем в написании вашей работы!


Нам важно ваше мнение! Был ли полезен опубликованный материал? Да | Нет



studopedia.su - Студопедия (2013 - 2026) год. Все материалы представленные на сайте исключительно с целью ознакомления читателями и не преследуют коммерческих целей или нарушение авторских прав! Последнее добавление




Генерация страницы за: 0.008 сек.