Студопедия

КАТЕГОРИИ:


Архитектура-(3434)Астрономия-(809)Биология-(7483)Биотехнологии-(1457)Военное дело-(14632)Высокие технологии-(1363)География-(913)Геология-(1438)Государство-(451)Демография-(1065)Дом-(47672)Журналистика и СМИ-(912)Изобретательство-(14524)Иностранные языки-(4268)Информатика-(17799)Искусство-(1338)История-(13644)Компьютеры-(11121)Косметика-(55)Кулинария-(373)Культура-(8427)Лингвистика-(374)Литература-(1642)Маркетинг-(23702)Математика-(16968)Машиностроение-(1700)Медицина-(12668)Менеджмент-(24684)Механика-(15423)Науковедение-(506)Образование-(11852)Охрана труда-(3308)Педагогика-(5571)Полиграфия-(1312)Политика-(7869)Право-(5454)Приборостроение-(1369)Программирование-(2801)Производство-(97182)Промышленность-(8706)Психология-(18388)Религия-(3217)Связь-(10668)Сельское хозяйство-(299)Социология-(6455)Спорт-(42831)Строительство-(4793)Торговля-(5050)Транспорт-(2929)Туризм-(1568)Физика-(3942)Философия-(17015)Финансы-(26596)Химия-(22929)Экология-(12095)Экономика-(9961)Электроника-(8441)Электротехника-(4623)Энергетика-(12629)Юриспруденция-(1492)Ядерная техника-(1748)

Сопловой аппарат IV ступени




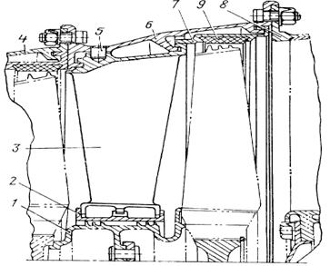
Сопловой аппарат IV ступени (II ступени свободной турбины) состоит из корпуса 6 (рис. 4.19), уплотнительного кольца 2, 29 лопаток 3 и обоймы 7 с металло-керамическими вставками.

Передним фланцем корпуса 6 сопловой аппарат крепится к корпусу 4 соплового аппарата III

ступени, а задним фланцем корпуса к корпусу 8 четвертой опоры роторов двигателя.

Лопатки 3 соплового аппарата верхними полками, имеющими специальные канавки, устанавливают в кольцевые проточки корпуса 6 и фиксируют радиальными штифтами 5. На нижних полках лопаток имеются торцовые штыри, на которых, как на прямоугольных шлицах, центрируется уплотнительное кольцо 2. В паре с уплотнительным кольцом работает вращающийся лабиринт 1, установленный на роторе свободной турбины.

В корпусе 6 соплового аппарата установлена и зафиксирована тремя штифтами обойма 7 с металло- керамическими вставками 9 в виде кольца, расположенного над гребешками газового лабиринта рабочего колеса IV ступени (II ступени свободной турбины).

Крепление металло-керамичееких вставок в обойме аналогично креплению вставок сопловых аппаратов турбины компрессора. Корпус соплового аппарата, лопатки и обойма образуют полости, по которым циркулирует воздух, охлаждающий детали соплового аппарата. Внешний вид сопловых аппаратов свободной турбины показан на рис. 4.20.

Корпус и обод соплового аппарата IV ступени изготовлены из стали, сопловые лопатки литые — из литейной стали.

Рис. 4.19. Сопловой аппарат IV ступени (разрез верхней части):

1 — лабиринт; 2 — кольцо уплотнительное; 3 — лопатка; 4 — корпус соплового аппарата III

ступени; 5 — штифт; 6 — корпус соплового аппарата IV ступени; 7 — обойма; 8 — корпус четвертой опоры; 9 — вставка металло-керамическая

Рис. 4.20. Сопловые аппараты свободной турбины (внешний вид):

1 — аппарат III ступени; 2 — аппарат IV ступени




Поделиться с друзьями:


Дата добавления: 2014-12-23; Просмотров: 1159; Нарушение авторских прав?; Мы поможем в написании вашей работы!


Нам важно ваше мнение! Был ли полезен опубликованный материал? Да | Нет



studopedia.su - Студопедия (2013 - 2026) год. Все материалы представленные на сайте исключительно с целью ознакомления читателями и не преследуют коммерческих целей или нарушение авторских прав! Последнее добавление




Генерация страницы за: 0.008 сек.