Студопедия

КАТЕГОРИИ:


Архитектура-(3434)Астрономия-(809)Биология-(7483)Биотехнологии-(1457)Военное дело-(14632)Высокие технологии-(1363)География-(913)Геология-(1438)Государство-(451)Демография-(1065)Дом-(47672)Журналистика и СМИ-(912)Изобретательство-(14524)Иностранные языки-(4268)Информатика-(17799)Искусство-(1338)История-(13644)Компьютеры-(11121)Косметика-(55)Кулинария-(373)Культура-(8427)Лингвистика-(374)Литература-(1642)Маркетинг-(23702)Математика-(16968)Машиностроение-(1700)Медицина-(12668)Менеджмент-(24684)Механика-(15423)Науковедение-(506)Образование-(11852)Охрана труда-(3308)Педагогика-(5571)Полиграфия-(1312)Политика-(7869)Право-(5454)Приборостроение-(1369)Программирование-(2801)Производство-(97182)Промышленность-(8706)Психология-(18388)Религия-(3217)Связь-(10668)Сельское хозяйство-(299)Социология-(6455)Спорт-(42831)Строительство-(4793)Торговля-(5050)Транспорт-(2929)Туризм-(1568)Физика-(3942)Философия-(17015)Финансы-(26596)Химия-(22929)Экология-(12095)Экономика-(9961)Электроника-(8441)Электротехника-(4623)Энергетика-(12629)Юриспруденция-(1492)Ядерная техника-(1748)

Производственных зданий




Чертежи систем внутреннего водоснабжения

Разрезы систем внутреннего водоснабжения

 

Как правило, стандартные разрезы для систем водоснабжения не выполняют. Внутренний водопровод в разрезе показывают в форме развёртки стен, а наружный водопровод – в форме профиля сети. Но в курсовой работе в учебных целях будут выполняться обычные разрезы здания с показом на них внутренней системы водоснабжения.

На разрезах систем должны быть показаны:

– строительные конструкции и технологическое оборудование;

– все видимые на разрезе водопроводные стояки и стояки противопожарной системы;

– все видимые на разрезе горизонтальные ответвления трубопроводов и подводы к водоразборным приборам;

– все видимые на разрезе санитарно-технические приборы и водоразборные приборы.

На разрезах систем должны быть указаны:

1) координационные оси здания и расстояния между ними;

2) отметки чистых полов этажей и основных конструкций и площадок здания;

3) отметки поэтажных горизонтальных ответвлений сети;

4) отметки точек водоразбора;

5) обозначения стояков систем.

 

 

Рис. 33. Разрез системы ВК по техническому подполью (подвалу)

 

В необходимых случаях выполняют разрезы по техническому подполью (подвалу). Пример такого чертежа приведён на рис. 33

 

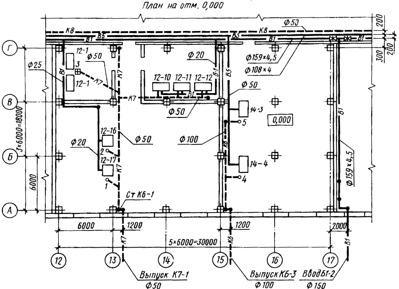
Чертежи водоснабжения и канализации производственных зданий выполняются практически так же, как и аналогичные чертежи общественных зданий.

Поскольку в производственных зданиях может монтироваться несколько рядов трубопроводов один над другим, условлено, что на плане такие трубопроводы изображаются рядом. Производственные здания с плоской кровлей (впрочем, жилые и общественные тоже) оборудуются внутренними водостоками. Приёмными элементами дождевой и ливневой канализации на кровле являются водосточные во-

ронки. Трубопроводы, подвешиваемые под кровлей, показывают на плане штриховыми линиями такой же толщины, как видимые участки трубопроводов. Пример выполнения чертежа марки ВК производственного здания приведён на рис. 34

 

Рис. 34. План системы водоснабжения и канализации промышленного здания

 

На планах систем водоснабжения, выполняемых в достаточно мелком масштабе, невозможно детально показать все элементы систем. Поэтому при необходимости детализировать изображение, вычерчивают его фрагменты в укрупнённом масштабе, установленном стандартом. Пример выполнения подобного фрагмента приведён на рис. 35

Рис. 35. Фрагмент плана системы водоснабжения и канализации. Уборные




Поделиться с друзьями:


Дата добавления: 2015-03-29; Просмотров: 2980; Нарушение авторских прав?; Мы поможем в написании вашей работы!


Нам важно ваше мнение! Был ли полезен опубликованный материал? Да | Нет



studopedia.su - Студопедия (2013 - 2026) год. Все материалы представленные на сайте исключительно с целью ознакомления читателями и не преследуют коммерческих целей или нарушение авторских прав! Последнее добавление




Генерация страницы за: 0.01 сек.