Студопедия

КАТЕГОРИИ:


Архитектура-(3434)Астрономия-(809)Биология-(7483)Биотехнологии-(1457)Военное дело-(14632)Высокие технологии-(1363)География-(913)Геология-(1438)Государство-(451)Демография-(1065)Дом-(47672)Журналистика и СМИ-(912)Изобретательство-(14524)Иностранные языки-(4268)Информатика-(17799)Искусство-(1338)История-(13644)Компьютеры-(11121)Косметика-(55)Кулинария-(373)Культура-(8427)Лингвистика-(374)Литература-(1642)Маркетинг-(23702)Математика-(16968)Машиностроение-(1700)Медицина-(12668)Менеджмент-(24684)Механика-(15423)Науковедение-(506)Образование-(11852)Охрана труда-(3308)Педагогика-(5571)Полиграфия-(1312)Политика-(7869)Право-(5454)Приборостроение-(1369)Программирование-(2801)Производство-(97182)Промышленность-(8706)Психология-(18388)Религия-(3217)Связь-(10668)Сельское хозяйство-(299)Социология-(6455)Спорт-(42831)Строительство-(4793)Торговля-(5050)Транспорт-(2929)Туризм-(1568)Физика-(3942)Философия-(17015)Финансы-(26596)Химия-(22929)Экология-(12095)Экономика-(9961)Электроника-(8441)Электротехника-(4623)Энергетика-(12629)Юриспруденция-(1492)Ядерная техника-(1748)

Диаметр




Сектор 20

 

В игре «Сектор 20» участник выполняет 30 бросков (10 серий по 3 дротика), стараясь набрать как можно большую сумму только за счет попаданий в «сектор 20» мишени. Попадания в «удвоение» засчитываются за 40 очков, в «утроение» – за 60 очков. Дротики, не попавшие в зону «20», к результату общей суммы не прибавляются.

Побеждает тот участник, который за 30 бросков наберет большее количество очков.

 

 

Игроки самостоятельно выбирают 2 противоположных сектора, образующих собой линию диаметра мишени. Затем они стараются поразить их «удвоения» и «утроения» по выбранной прямой. При этом они поразят, строя диаметр, «удвоение» сектора, «утроение», «зеленое кольцо», а затем «утроение» и «удвоение» противоположного сектора.

Победителем окажется тот, кто первым «нарисует» воображаемый диаметр.

 

Легенда гласит, что потомок первых американцев, прибывших в Америку на корабле «Mayflower», играл в дартс во время плавания. Для игры использовались дно от бочки из‑под вина и короткие стрелы.

 

Игра в дартс – это прежде всего состязание в умении точно метать короткие стрелы (дротики). При желании научиться играть в дартс можно довольно быстро. Играть в дартс можно на улице и в закрытом помещении (в спортивном зале, кафе, обычной квартире).

Для этой игры не требуется специальная одежда, а принадлежности очень просты (рис. 10).

Рис. 10. Расположение мишени и позиции игрока

 

Играть в дартс могут и взрослые, и дети. Дартс доступен для инвалидов, он гуманен и демократичен. В эту игру можно играть как индивидуально, так и командно. Дартс – увлекательная и зрелищная игра. Это прекрасное средство для проведения досуга и поднятия настроения.

Для исполнения бросков в дартсе необходима определенная техника. Главными компонентами в технике дартса являются стойка и броски. Участник должен иметь устойчивое положение при броске. Желательно находиться полубоком к мишени, так чтобы центр тяжести переносился на правую ногу при броске правой рукой и на левую при броске левой. Туловище немного наклонено вперед.

При броске спортсмен делает небольшой замах. Здесь должен участвовать только локтевой сустав руки, проводящей бросок. Движения локтевого сустава должны быть плавными, а сам бросок выполняющим без всякого напряжения мышц. Необходимо нацелить дротик в нужную точку мишени. Некоторые производят замах с участием плечевого сустава и изменяя центр тяжести тела – это большая ошибка. Рука и дротик должны быть едиными при броске, т. е. игроку необходимо почувствовать дротик как продолжение руки.

При броске в верхние части мишени спортсмен должен незначительно приподнять предплечье по отношению к стандартному положению и немного выпрямить корпус, а при броске в нижние части, напротив, опустить ниже предплечье и увеличить наклон корпуса. При бросках в боковые сектора мишени нужно перемещаться вдоль линии намеченных целей, а не выполнять броски по диагонали.

 

В годы Второй мировой войны набор дартс дротики входил в набор солдата Великобритании. Солдаты других стран привозили дротики домой в качестве сувениров и тем самым способствовали развитию и распространению игры.

 

Игрок должен бросать дротики в мишень из положения «стоя», кроме тех случаев, когда физическая неполноценность или увечье не позволяет игроку выполнить это требование. Игрок должен выполнять броски дротиками последовательно, строго по одному. Серия бросков состоит из трех дротиков, если только лэг (три броска подряд), сет (серия лэгов) или матч (несколько сетов) не могут быть закончены меньшим количеством дротиков. Если игрок дотронется до любого дротика, находящегося в мишени, во время исполнения серии бросков, то эта серия считается завершенной. Любой дротик, отскочивший от мишени или выпавший из нее, не засчитывается и не перебрасывается.

У каждого из игроков свои дротики. При этом их длина не должна превышать 30,5 см (12 дюймов). Вес каждого должен быть не более 50 г.

Стандартный дротик состоит из таких частей, как:

1) вставленная тупым концом в тело дротика острая игла;

2) металлическое тело дротика;

3) стабилизатор полета.

Все игроки и команды должны соблюдать правила игры и, где необходимо, любые дополнительные правила, изложенные в программе или положении о конкретном состязании. Все игроки и команды должны подчиняться требованиям организаторов игр. А любой игрок, нарушивший правила игр во время какого‑либо состязания, должен быть немедленно дисквалифицирован.

Что касается ведения счета, то и здесь тоже имеются свои варианты. Приведем несколько основных пунктов, которым нужно следовать при подсчете очков.

1. Счет ведется по цифрам, расположенным за каждым сектором, в который дротик вошел или касается.

2. Если дротики уже вытащены из доски, то возражения по поводу счета недействительны.

3. Попадание дротика засчитывается в том случае, если его игла находится в мишени (или касается ее) в площади, ограниченной внешней проволокой кольца «удвоения».

4. Правильность ведения счета и вычитания должны проверяться рефери, маркером, а также игроком и, если это технически возможно, перед броском соперника.

5. Дротики вытаскиваются из мишени бросавшим игроком только после того, как счет объявлен рефери и зафиксирован маркером.

6. Текущий счет должен отражаться на отдельном листе, который рефери и игроки должны четко видеть.

 

Считается, что первой мишенью для игры в дартс было дно от бочки, по центру его находилась пробка, попадание в которую было показателем точности.

 

7. Все просьбы игрока о проверке зафиксированного счета или вычитаний должны подаваться до начала следующего броска этого игрока.

8. Первый из игроков, который в игре «Триста один» или «Пятьсот один» свел свой счет до нуля попаданием в «удвоение», считается победителем данного лэга, сета или матча.

Рис. 11. Детский дартс с мячиками

 

9. Выигравший жребий или предварительный бросок начинает броски первым в четырех лэгах.

Особенно строго правила соблюдаются на соревнованиях по дартсу. Игрок или капитан команды имеют право потребовать заменить мишень или исправить ее положение в ходе матча, но всегда с согласия соперника. Эта замена или исправление могут быть произведены только либо до начала, либо после окончания лэга.

Каждая мишень должна иметь равномерное освещение лампой не менее 100 Вт. Все источники света должны иметь экраны, защищающие глаза игрока, когда он на рубеже броска. Во время проведения финальных встреч общий уровень освещенности может быть увеличен путем применения прожекторов неофитов, но должны быть приняты все меры против появления нежелательных теней на мишени во время игры.

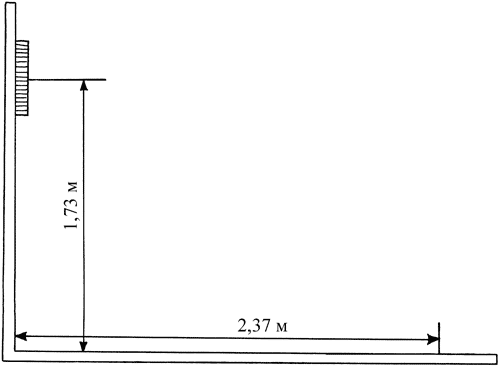
Рубеж броска обозначается прямоугольным бруском высотой 38 мм и длиной не менее 610 мм (высота – 1,5 дюйма и длина – 24дюйма). Этот брусок должен находиться от мишени на минимальном расстоянии, с которого разрешено производить броски. Это расстояние, исчисляемое по прямой линии, проходящей от задней грани бруска вдоль пола до перпендикуляра, опущенного на пол из центра «яблочка» мишени, составляет 2 м 37 см. Расстояние по диагонали от центра «яблочка» до задней грани бруска (в месте соприкосновения бруска с полом) должно быть 2 м 93 см. В тех случаях, когда брусок устанавливается на игровом месте, имеющем возвышение от уровня пола (сцене, специальном подиуме), тогда это место должно удовлетворять следующим условиям:

1) оно должно быть, по крайней мере, вытянуто вдоль перпендикуляра, идущего от плоскости мишени;

2) ширина такого возвышения у бруска должна быть не менее 1525 мм;

3) минимальная глубина места для игрока, считая от задней грани бруска до края возвышенности, должна быть не менее 1220 мм.

Во время игры игроку не разрешается заступать за брусок или наступать на него во время исполнения броска. Игрок, собирающийся выполнить бросок, стоя не у центра бруска, а сбоку от него, также не должен заступать за воображаемую черту, являющуюся продолжением задней грани бруска.

 

В командном турнире по дартс замены запрещаются после окончания игр первого круга, если положение о данном турнире не позволяет запасным игрокам команды принять участие в турнире или если сложившиеся обстоятельства не позволят продолжать матч без произведения замены.

 

Игрок или капитан команды имеют право (всегда с согласия соперника) потребовать проверки правильности установки и размеров бруска. Эта просьба должна быть подана либо до начала лэга, либо после его окончания. Член судейской бригады должен передать это требование рефери матча или техническому персоналу, для того чтобы была произведена необходимая проверка и, если необходимо, правильная установка бруска. Такая проверка, так же как и установка, должна проводиться до начала лэга либо после его окончания.

Все проверки и установка бруска в соответствии с принятыми размерами и расстояниями должны проводиться специальным персоналом.

В России уже давно существует своя модификация игры в дартс – метание ножей в мишень. По данному виду спорта даже проводятся соревнования. Пока они распространены в основном только в Российской Федерации, но, возможно, вскоре вытеснят собой классический дартс. От классического дартса русский дартс отличается в первую очередь наличием ножей вместо дротиков. Метание ножей может использоваться также и как защита от нападающих, поэтому навыки пригодятся как для игры, так и для жизни, если вдруг возникнет нестандартная ситуация.

Для метания берутся ножи с хорошей балансировкой, не слишком тяжелые, с достаточно толстым, хорошо заточенным лезвием. Мишень часто выполнена из дерева – лезвие ножа намного толще, чем наконечник дротика, и мишень требуется более прочная. Ножей для игры в русский дартс необходимо иметь не менее 20. Такое количество профессиональных ножей, используемых специально для метания, а не обычных хозяйственных, позволит участнику свободно играть в данную игру. В целом игра происходит похожим способом, как и дартс, – ножом необходимо попасть в соответствующий сегмент мишени. Побеждает тот, кто отличился своей точностью и меткостью. Выпавший нож не засчитывается (рис. 12).

Рис. 12. Русский дартс (метание ножей)

 

Игра в дартс доступна даже детям. Однако следует помнить, что на концах дротиков находятся острые иглы, поэтому детям лучше играть под присмотром взрослых.

Пластиковые иглы используются в детском дартсе, для того чтобы уберечь детей от ранений или травм. Игры с острыми металлическими наконечниками дротиков не доведут до добра, если сразу же предложить их детям. Поэтому для начала подарите им детский дартс с пластиковыми наконечниками дротиков. Также пластиковые иглы используются при игре в электронный дартс. Там нет необходимости в острых металлических дротиках, так как в электронном дартсе используется цифровая электронная мишень, которая реагирует на удар дротика. Для того чтобы вам засчитали очки, необходимо просто попасть в мишень пластиковой иглой дротика.

 




Поделиться с друзьями:


Дата добавления: 2015-05-06; Просмотров: 668; Нарушение авторских прав?; Мы поможем в написании вашей работы!


Нам важно ваше мнение! Был ли полезен опубликованный материал? Да | Нет



studopedia.su - Студопедия (2013 - 2026) год. Все материалы представленные на сайте исключительно с целью ознакомления читателями и не преследуют коммерческих целей или нарушение авторских прав! Последнее добавление




Генерация страницы за: 0.011 сек.