Студопедия

КАТЕГОРИИ:


Архитектура-(3434)Астрономия-(809)Биология-(7483)Биотехнологии-(1457)Военное дело-(14632)Высокие технологии-(1363)География-(913)Геология-(1438)Государство-(451)Демография-(1065)Дом-(47672)Журналистика и СМИ-(912)Изобретательство-(14524)Иностранные языки-(4268)Информатика-(17799)Искусство-(1338)История-(13644)Компьютеры-(11121)Косметика-(55)Кулинария-(373)Культура-(8427)Лингвистика-(374)Литература-(1642)Маркетинг-(23702)Математика-(16968)Машиностроение-(1700)Медицина-(12668)Менеджмент-(24684)Механика-(15423)Науковедение-(506)Образование-(11852)Охрана труда-(3308)Педагогика-(5571)Полиграфия-(1312)Политика-(7869)Право-(5454)Приборостроение-(1369)Программирование-(2801)Производство-(97182)Промышленность-(8706)Психология-(18388)Религия-(3217)Связь-(10668)Сельское хозяйство-(299)Социология-(6455)Спорт-(42831)Строительство-(4793)Торговля-(5050)Транспорт-(2929)Туризм-(1568)Физика-(3942)Философия-(17015)Финансы-(26596)Химия-(22929)Экология-(12095)Экономика-(9961)Электроника-(8441)Электротехника-(4623)Энергетика-(12629)Юриспруденция-(1492)Ядерная техника-(1748)

Переключающие устройства предохранительных клапанов




Переключающее устройство устанавливается в тех случаях, когда по условиям работы может возникнуть необходимость отключения одного предохранительного клапана и одновременно подключения другого, для из­менения направления потока среды, для смешивания сред. Герметичность затвора по ГОСТ 9544-93 класс А.

Каждый предохранительный клапан должен быть рассчитан на полную пропускную способность.

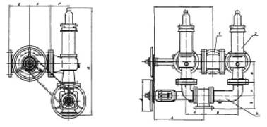
Рис. 65. Переключающее устройство предохранительного клапана:

1 – корпус; 2, 2а – угольник; 3, 3а – седло с наплавкой; 4 – шпилька; 5 – гайка;

6 – золотник с наплавкой; 7 – шпиндель; 8 – втулка; 9 – стойка; 10 – маховик;

11 – втулка; 12 – звездочка; 13 – обойма; 14 – фланец;

15 – набивка сальника; 16 – прокладка

В переключающем устройстве при вращении маховика происходит перемещение запорного органа с одного седла к другому, тем самым с за­щищаемым объектом будут соединены или один предохранительный клапан, или оба.

Ползун, установленный на шпинделе, указывает расположение запор­ного органа.

При установке блока, состоящего из переключающего устройства и предохранительных клапанов, необходимо предусмотреть дополнительное крепление системы, обеспечивающее жесткость и прочность конструкции.



 


Переключающее устройство может поставляться в комплекте с предо­хранительными клапанами, а также с фланцами, прокладками и крепежными деталями для присоединения к трубопроводу.

Переключающее устройство, при необходимости может изготавливать­ся на выходе клапана. В этом случае переключающие устройства комплекту­ются звездочками для цепной передачи. Необходимость такого исполнения указывается в заказе.

Пример обозначения при заказе переключающего устройства: DN 50 мм РN 16 кгс/см2 из стали 12Х18Н9ТЛ, строительная длина 270 мм.



 


Рис. 66. Переключающее устройство DN 50 мм РN 16 кгс/см2 ПУ-50-16-02 нж




Поделиться с друзьями:


Дата добавления: 2015-06-04; Просмотров: 968; Нарушение авторских прав?; Мы поможем в написании вашей работы!


Нам важно ваше мнение! Был ли полезен опубликованный материал? Да | Нет



studopedia.su - Студопедия (2013 - 2026) год. Все материалы представленные на сайте исключительно с целью ознакомления читателями и не преследуют коммерческих целей или нарушение авторских прав! Последнее добавление




Генерация страницы за: 0.008 сек.