Студопедия

КАТЕГОРИИ:


Архитектура-(3434)Астрономия-(809)Биология-(7483)Биотехнологии-(1457)Военное дело-(14632)Высокие технологии-(1363)География-(913)Геология-(1438)Государство-(451)Демография-(1065)Дом-(47672)Журналистика и СМИ-(912)Изобретательство-(14524)Иностранные языки-(4268)Информатика-(17799)Искусство-(1338)История-(13644)Компьютеры-(11121)Косметика-(55)Кулинария-(373)Культура-(8427)Лингвистика-(374)Литература-(1642)Маркетинг-(23702)Математика-(16968)Машиностроение-(1700)Медицина-(12668)Менеджмент-(24684)Механика-(15423)Науковедение-(506)Образование-(11852)Охрана труда-(3308)Педагогика-(5571)Полиграфия-(1312)Политика-(7869)Право-(5454)Приборостроение-(1369)Программирование-(2801)Производство-(97182)Промышленность-(8706)Психология-(18388)Религия-(3217)Связь-(10668)Сельское хозяйство-(299)Социология-(6455)Спорт-(42831)Строительство-(4793)Торговля-(5050)Транспорт-(2929)Туризм-(1568)Физика-(3942)Философия-(17015)Финансы-(26596)Химия-(22929)Экология-(12095)Экономика-(9961)Электроника-(8441)Электротехника-(4623)Энергетика-(12629)Юриспруденция-(1492)Ядерная техника-(1748)

Начертательная геометрия

Образцы и варианты заданий

Приложение 1

Контрольные вопросы

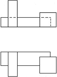
Тени от призмы

 

От любого геометрического тела можно построить в той или иной аксонометрической проекции падающую тень, а на самом теле найти его собственную тень (рис. 230).

Во всех видах аксонометрических проекций техника построения теней одинакова. Вычерчиваем предмет, задаемся направлением луча S и его вторичной проекцией S1.

Так как контур падающей тени строится от контура собственной тени, то в первую очередь следует определить контур собственной тени. Контур собственной тени призмы при заданном направлении световых лучей представляет собой ломаную линию DA – AB – BC – CE, участками которой являются ребра призмы. От контура собственной

Рис. 230 тени строится контур падающей тени спо-

собом лучевого сечения – DAП1BП1CП1E.

Для этого через точки А,В,С проводим лучи S, а через проекции точек – проекции лучей S1. Находим точки пересечения, соединяем их между собой и основанием, так как предмет стоит на плоскости.

 

1. Каково назначение теней на чертежах?

2. Какая тень называется собственной, а какая падающей?

3. Что называется контуром собственной тени? Как строится контур падающей тени?

4. Какие геометрические задачи решаются при построении падающей тени точки, прямой и плоской фигуры?

5. Каково направление светового луча в пространстве и как располагаются его проекции относительно оси ОХ?

6. В каких случаях тень от линии имеет точку излома?

7. Как построить тень от отрезка на две плоскости?

8. Как выглядят тени, падающие на плоскости проекций от линии уровня, от проецирующих прямых?

9. Последовательность построения теней многогранника.

10. Что нужно помнить при выборе направления светового луча при построении теней в аксонометрии?

11. Как выбирается вторичная проекция луча при построении аксонометрии тени?

12. Какие правила построения теней в ортогональных проекциях справедливы для построения теней в аксонометрических проекциях?

 

 


 

выполняемых студентами специальностей 3305, 2404 и 2907

 

 

Эпюр 1 (формат А3):

Задача 1. Определить кратчайшее расстояние от точки Е до плоскости АВС. Построить

точку Е1 симметричную точке Е относительно плоскости АВС.

Задача 2. Через прямую DF провести плоскость, перпендикулярную плоскости АВС,

построить линию пересечения двух плоскостей, определить видимость

взаимного пересечения.

 

Эпюр 2 (формат А3):

Задача 1. Определить кратчайшее расстояние между двумя скрещивающими прямыми АВ и CD, используя способ замены плоскостей проекций.

Задача 2. Определить величину двугранного угла при ребре ВС (грани при ребре

ВС: АВС и ВСD). Использовать способ замены плоскостей проекций.

 

Эпюр 3 (формат А4). Построить линию пересечения двух заданных поверхностей вращения.

Данные для выполнения эпюров 1 и 2 взяты из таблицы 1 (спец. 3305, 2404 и 2907).

Данные для выполнения эпюра 3 взять из таблицы 2, рис. 1 (спец. 3305, 2404 и 2907).

Задания выполнять по варианту, который соответствует сумме двух последних цифр

студенческого билета.

 

Эпюр 4 (формат А3). Построить собственные и падающие тени от схематизированного здания в

ортогональных проекциях.

Эпюр 5 (формат А3). Построить собственные и падающие тени от схематизированного здания в

а ксонометрии.

Данные для выполнения эпюров 4 и 5 взяты из таблицы 3 (только для спец. 29.07).

 

При построении ортогонального чертежа и аксонометрии все размеры по отношении к заданию увеличить в 4-5 раз. Между ортогональными проекциями необходимо оставить поле чертежа больше максимальной высоты для построения теней.

 

Пример оформления эпюра 4 приведен на рис. 2, эпюра 5 на рис. 3.

 

Таблица 1

 

1.A (5; 30; 60) B (25; 10; 20) C (60; 65; 30) D (70; 20; 45) E (37; 47; 24) F (0; 38; 52) 5.A (90; 10; 20) B (35; 10; 60) C (10; 60; 0) D (60; 45; 50) E (30; 14; 28) F (80; 4; 3) 9. A (75; 30; 15) B (35; 5; 65) C (5; 50; 40) D (60; 60; 60) E (25; 5; 3) F (10; 26; 55) 13.A (40; 5; 55) B (0; 50; 10) C (65; 25; 0) D (75; 65; 50) E (30; 12; 3) F (4; 25; 37) 17.A (10; 65; 35) B (40; 10; 60) C (75; 25; 15) D (55; 10; 10) E (33; 3; 16) F (13; 38; 52)
2.A (40; 15; 60) B (80; 5; 20) C (20; 60; 25) D (5; 15; 24) E (20; 5; 40) F (25; 40; 30) 6.A (45; 60; 20) B (5; 20; 10) C (60; 25; 65) D (70; 20; 20) E (30; 55; 60) F (15; 10; 5) 10.A (10; 20; 10) B (55; 50; 10) C (80; 0; 60) D (40; 50; 45) E (35; 50; 55) F (35; 5; 5) 14.A (45; 5; 55) B (5; 65; 10) C (70; 20; 0) D (65; 65; 50) E (30; 5;20) F (60; 10; 5) 18.A (35; 55; 5) B (75; 20; 50) C (10; 0; 25) D (15; 60; 65) E (70; 15; 20) F (20; 0; 10)
Продолжение табл. 1
3.A (40; 5; 55) B (80; 50; 10) C (15; 25; 0) D (5; 65; 20) E (40; 60; 40) F (60; 10; 0) 7.A (75; 55; 35) B (45; 10; 60) C (10; 25; 15) D (30; 45; 55) E (65; 15; 20) F (30; 0; 5) 11.A (75; 30; 60) B (55; 10; 20) C (20; 65; 40) D (32; 20; 34) E (80; 55; 25) F (73; 40; 27) 15.A (10;10;20) B (55; 10; 50) C (80; 50; 0) D (20; 45; 40) E (100; 27; 0) F (65; 60; 60) 19.A (10; 30; 15) B (50; 5; 65) C (80; 50; 40) D (15; 50; 60) E (80; 40; 55) F (85; 20; 25)
4.A (55; 5; 55) B (95; 45; 10) C (30; 20;0) D (20; 65; 50) E (50; 70; 50) F(105; 10; 10) 8.A (40; 55; 5) B (0; 20; 50) C (65; 0; 25) D (75; 60; 65) E (25; 0; 45) F (5; 40; 10) 12.A (40; 10; 60) B (0; 5; 20) C (60; 60; 25) D (75; 15; 10) E (15; 35; 45) F (25; 30; 50) 16.A (40; 60; 15) B (80; 20; 10) C (25; 30; 65) D (55; 10; 60) E (60; 50; 55) F (70; 55; 30) 20.A (80; 40; 10) B (35; 70; 10) C (10; 20; 60) D (70; 35; 45) E (5; 75; 20) F (25; 30; 10)

 

 
 

 

Рис. 1

 

Таблица 2

 

  № варианта
                                   
D                                    
d                                    
h                                    
l                                    
l1                                    

 


Таблица 3

1 2 3
4 5 6
7 8 9

 


Продолжение табл.3

10 11 12
13 14 15
16 17 18

 

 


 

Белгородский государственный технологический университет им. В.Г.Шухова

Северо-кавказский филиал (г. Мин. Воды)

Кафедра Общепрофессиональных дисциплин

Дисциплина Начертательная геометрия

 

Экзаменационный билет № 1

1. Определить кратчайшее расстояние от точки А до отрезка ВС (общим способом).

2. Определить натуральную величину плоскости АВС (использовать способы преобразования чертежа).

3. Найти точки пересечения прямой l с многогранником, видимость пересечения.

4. Построить линию пересечения поверхностей вращения: конуса и цилиндра.

       
 
 
 
 

 

 


 

 

 
 
 


 

 

 


Одобрено на заседании кафедры «___»______________200 г.

Зав. Кафедрой________________________________________

 

Белгородский государственный технологический университет им. В.Г.Шухова

Северо-кавказский филиал (г. Мин. Воды)

Кафедра Общепрофессиональных дисциплин

Дисциплина Начертательная геометрия

 

Экзаменационный билет № 2

1. Построить плоскость, параллельную заданной, и удаленную от нее на расстояние – 25 мм (общим способом).

2. Определить кратчайшее расстояние от точки К до плоскости S (a;b), (использовать способ замены плоскостей проекций).

3. Построить развертку боковой поверхности четырехгранной пирамиды SABCD.

4. Построить сечение прямого кругового конуса плоскостью частного положения S.

           
   
 
   
 
 
 
 
 


 

 
 
 


 
4

 

Одобрено на заседании кафедры «___»______________200 г.

Зав. Кафедрой________________________________________

 

 

Белгородский государственный технологический университет им. В.Г.Шухова

Северо-кавказский филиал (г. Мин. Воды)

Кафедра Общепрофессиональных дисциплин

Дисциплина Начертательная геометрия

 

Экзаменационный билет № 3

1. Построить линию пересечения двух плоскостей: S (АВС) и (a;b) общим способом.

2. Достроить недостающую проекцию прямой АВ1В1), если расстояние между двумя параллельными прямыми АВ и СD равно 20 мм (использовать способ преобразования проекционного чертежа.

3. Определить точки пересечения прямой l с поверхностью сферы.

4. Построить развертку боковой поверхности трехгранной призмы.

       
   
 
 
 
 


 

           
   
 
 
   
 
 
 
 

 


 

Одобрено на заседании кафедры «___»______________200 г.

Зав. Кафедрой________________________________________

Белгородский государственный технологический университет им. В.Г.Шухова

Северо-кавказский филиал (г. Мин. Воды)

Кафедра Общепрофессиональных дисциплин

Дисциплина Начертательная геометрия

 

Экзаменационный билет №4

1. Построить точку пересечения (К) прямой l с плоскостью S (общим способом).

2. На прямой АВ найти точку (К), равноудаленную от сторон угла CEF (использовать способы преобразования проекционного чертежа).

3. Построить сечение прямого цилиндра плоскостью общего положения Q.

4. Построить линию пересечения заданных поверхностей: трехгранной призмы и полусферы.

                       
   
 
   
 
   
 
 
 
 
 
 
 
   
 
 
 

 

 


       
 
 
 
 

 


Одобрено на заседании кафедры «___»______________200 г.

Зав. Кафедрой________________________________________

 

Белгородский государственный технологический университет им. В.Г.Шухова

Северо-кавказский филиал (г. Мин. Воды)

Кафедра Общепрофессиональных дисциплин

Дисциплина Начертательная геометри

Экзаменационный билет №5

1. Через точку К построить плоскость Q, перпендикулярную заданной прямой l и определить угол наклона построенной плоскости к плоскости проекций П1 (общим способом).

2. Определить расстояние между двумя параллельными прямыми m и п (использовать способы преобразования проекционного чертежа).

3. Построить линию пересечения поверхностей вращения: конуса и цилиндра.

4. Определить точки пересечения прямой l с поверхностью многогранника.

               
   
 
 
 
 
   
 
 
 
 

 

 
 


Одобрено на заседании кафедры «___»______________200 г.

Зав. Кафедрой________________________________________

 

Белгородский государственный технологический университет им. В.Г.Шухова

Северо-кавказский филиал (г. Мин. Воды)

Кафедра Общепрофессиональных дисциплин

Дисциплина Начертательная геометрия

Экзаменационный билет №6

1. Построить проекции трехгранной призмы, если высота, проведенная из вершины основания А равна 50 мм (общим способом).

2. Определить кратчайшее расстояние от точки А до прямой ВС (использовать способ плоскостей проекций).

3. Построить недостающие проекции точек и линии MN, принадлежащих поверхности сферы.

4. Построить полную развертку поверхности пирамиды.

       
   
 
 
 
 

 


       
   
 
 
 
 

 


Одобрено на заседании кафедры «___»______________200 г.

Зав. Кафедрой________________________________________

 

Белгородский государственный технологический университет им. В.Г.Шухова

Северо-кавказский филиал (г. Мин. Воды)

Кафедра Общепрофессиональных дисциплин

Дисциплина Начертательная геометрия

Экзаменационный билет № 7

1. Через точку А построить прямую, пересекающую две заданные скрещивающиеся прямые ВС и EF (общим способом).

2. Определить величину угла между плоскостями Q и S (использовать способы преобразования чертежа).

3. Построить линию пересечения поверхностей вращения.

4. Построить горизонтальную проекцию призматического отверстия, вырезанного в пирамиде SABC.

 
 

 
 

Одобрено на заседании кафедры «___»______________200 г.

Зав. Кафедрой________________________________________

Белгородский государственный технологический университет им. В.Г.Шухова

Северо-кавказский филиал (г. Мин. Воды)

Кафедра Общепрофессиональных дисциплин

Дисциплина Начертательная геометрия

 

Экзаменационный билет № 8

1. Построить точку В, симметричную точке А относительно прямой l (общим способом).

2. Построить недостающую проекцию точки А (А2), удаленной от плоскости S на расстояние 20 мм (использовать способы преобразования чертежа).

3. Построить развертку наклонного конуса.

4. Построить линию пересечения конусов, описанных около общей сферы.

 
 
 

 

 

 
 
 

 

 

Одобрено на заседании кафедры «___»______________200 г.

Зав. Кафедрой________________________________________

 

Белгородский государственный технологический университет им. В.Г.Шухова

Северо-кавказский филиал (г. Мин. Воды)

Кафедра Общепрофессиональных дисциплин

Дисциплина Начертательная геометрия

Экзаменационный билет №9

  1. Через прямую MN провести плоскость, перпендикулярную заданной, построить линию пересечения плоскостей.
  2. Определить расстояние от точки K до плоскости ABC (способом преобразования).
  3. Построить проекции и натуральную величину сечения конуса плоскостью ∑.
  4. Построить собственные и падающие тени в ортогональных проекциях.
  5. Построить собственные и падающие тени в аксонометрии.

 

 


Белгородский государственный технологический университет им. В.Г.Шухова

Северо-кавказский филиал (г. Мин. Воды)

Кафедра Общепрофессиональных дисциплин

Дисциплина Начертательная геометрия

Экзаменационный билет № 10

1. Построить плоскость, параллельную ∆ ABC так, чтобы отрезок прямой m, заключённый между плоскостями был равен 30мм.

2. Определить расстояние от точки до прямой (способом преобразования).

3. Определить точки пересечения прямой с поверхностью призмы.

4. Построить собственные и падающие тени в ортогональных проекциях.

5. Построить собственные и падающие тени в аксонометрии.

 

Белгородский государственный технологический университет им. В.Г.Шухова

Северо-кавказский филиал (г. Мин. Воды)

Кафедра Общепрофессиональных дисциплин

Дисциплина Начертательная геометрия

Экзаменационный билет №11

1. Построить плоскость, параллельную ∆ ABC на расстоянии 30мм от него.

2. Определить расстояние между прямыми AB и CD (способом преобразования).

3. Определить точки пересечения прямой с поверхностью пирамиды.

4. Построить собственные и падающие тени в ортогональных проекциях.

5. Построить собственные и падающие тени в аксонометрии.


Белгородский государственный технологический университет им. В.Г.Шухова

Северо-кавказский филиал (г. Мин. Воды)

Кафедра Общепрофессиональных дисциплин

Дисциплина Начертательная геометрия

Экзаменационный билет № 12

1. Определить расстояние от точки до плоскости.

2. Определить натуральную величину ∆ ABC (способом преобразования).

3. Построить линию пересечения поверхностей методом секущих плоскостей.

4. Построить собственные и падающие тени в ортогональных проекциях.

5. Построить собственные и падающие тени в аксонометрии

 

 

Белгородский государственный технологический университет им. В.Г.Шухова

Северо-кавказский филиал (г. Мин. Воды)

Кафедра Общепрофессиональных дисциплин

Дисциплина Начертательная геометрия

 

Экзаменационный билет № 13

1. Из точки K, прилежащей плоскости ∆ ABC, провести перпендикуляр к плоскости длинной 1=50 мм.

2. Определить угол наклона ∆ ABC к плоскости проекций П2 (способом преобразования).

3. Построить линию пересечения методом сфер.

4. Построить собственные и падающие тени в ортогональных проекциях.

5. Построить собственные и падающие тени в аксонометрии.

 

 

 

 

 
 
 

 


Одобрено на заседании кафедры «___»______________200 г.

Зав. Кафедрой________________________________________

 

 

Список литературы

 

 

1. Крылов Н.Н. Начертательная геометрия. –М.: Высшая школа, 1990. -240 с.

2. Гордон В.О. Курс начертательной геометрии. –М.: Наука, 2002. -272 с.

3. Гордон В.О. Сборник задач по курсу начертательной геометрии. –М.: Высшая школа, 2002.

4. Фролов С.А. Начертательная геометрия. –М.: Машиностроение, 1983. -240 с.

5. Фролов С.А. Сборник задач по начертательной геометрии. –М.: Машиностроение, 1986.

6. Локшев О.В. Краткий курс начертательной геометрии. –М.: Высшая школа, 2001.

7. Тарасов Б.Ф. и др. Начертательная геометрия. –С.Пб.: Лань, 2002. -256 с.

8. Нартова Л.Г. и др. Начертательная геометрия. –М.: Дрофа, 2003. -208 с.

9. Тевлин А.М., Иванов Г.С., Нартова Л.Г. и др. Краткий курс начертательной геометрии на базе ЭВМ. –М.: 2001.

10. Русскевич Н.Л. Начертательная геометрия. –К.: Выща школа, 1978. -310 с.

11. Тарасов Б.Ф. Методы изображения в транспортном строительстве. –Л.: Стройиздат, 1987.

-248 с.

 


С О Д Е Р Ж А Н И Е

 

Введение...................................................................................................................................... 5

ГЛАВА 1...................................................................................................................................... 5

1.1. Метод проекций.............................................................................................................. 5

1.1.1. Центральное проецирование................................................................................ 5

1.1.2. Параллельное проецирование.............................................................................. 6

1.1.3. Свойства параллельного проецирования........................................................... 6

1.2. Точка................................................................................................................................ 8

1.2.1. Комплексный чертеж (эпюр Монжа)................................................................... 8

1.2.2. Биссекторные плоскости....................................................................................... 10

1.3. Прямая.............................................................................................................................. 13

1.3.1. Положение прямой относительно плоскостей проекций.................................. 13

1.3.2. Деление отрезка прямой в заданном отношении................................................ 15

1.3.3. Взаимное положение прямых............................................................................... 15

1.3.4. Проекции плоских углов....................................................................................... 16

1.3.5. Следы прямой линии............................................................................................. 17

1.3.6. Определение длины отрезка и углов наклона его к плоскостям проекций..... 17

1.4. Плоскость........................................................................................................................ 20

1.4.1. Способы задания плоскости.................................................................................. 20

1..4.2. Положение плоскости относительно плоскостей проекций............................ 21

1.4.3. Прямая и точка в плоскости.................................................................................. 23

1.4.4. Главные линии плоскости..................................................................................... 23

1.4.5. Взаимное положение прямой и плоскости.......................................................... 25

1.4.6. Взаимное положение плоскостей......................................................................... 26

1.4.7. Пересечение плоскостей........................................................................................ 27

1.4.8. Пересечение прямой с плоскостью....................................................................... 29

1.5. Позиционные и метрические задачи............................................................................ 33

ГЛАВА 2...................................................................................................................................... 37

2.1. Способы преобразования ортогональных проекций.................................................. 37

2.2. Способ замены плоскостей проекций.......................................................................... 37

2.3. Основные задачи, решаемые способом замены плоскостей проекций.................... 38

2.4. Способ вращения............................................................................................................ 40

2.4.1. Вращение вокруг проецирующих прямых линий.............................................. 40

2.4.2. Плоскопараллельное перемещение...................................................................... 41

2.4.3. Вращение вокруг осей, параллельных плоскостям проекций........................... 42

2.5. Многогранники.............................................................................................................. 44

2.5.1. Основные понятия и определения........................................................................ 44

2.5.2. Изображение многогранников на чертеже.......................................................... 45

2.5.3. Пересечение многогранников проецирующей плоскостью.............................. 46

2.5.4. Пересечение многогранников прямой линией................................................... 47

2.6. Кривые линии................................................................................................................. 50

2.6.1. Общие сведения...................................................................................................... 50

2.6.2. Плоские кривые линии. Касательная, нормаль, кривизна................................. 51

2.6.3. Эволюта и эвольвента кривой.............................................................................. 53

2.6.4. Монотонные и составные кривые линии. Точки кривых линий...................... 54

2.6.5. Проекционные свойства кривых линий.............................................................. 56

2.6.6. Пространственные кривые линии........................................................................ 56

2.6.7. Винтовые линии..................................................................................................... 58

2.7. Поверхности.................................................................................................................... 59

2.7.1. Определение, образование, задание..................................................................... 59

2.7.2. Классификация поверхностей............................................................................... 61

2.7.3. Точки на поверхностях.......................................................................................... 68

2.8. Пересечение поверхностей вращения плоскостью и прямой линией...................... 72

2.8.1. Пересечение поверхностей вращения плоскостью частного положения........ 72

2.8.2. Пересечение поверхностей вращения плоскостью общего положения........... 75

2.8.3. Пересечение поверхностей прямой линией........................................................ 76

2.9. Взаимное пересечение поверхностей........................................................................... 79

2.9.1. Способ вспомогательных секущих плоскостей.................................................. 79

2.9.2. Пересечение соосных поверхностей вращения.................................................. 80

2.9.3. Способ вспомогательных секущих сфер.............................................................. 81

2.9.4. Особые случаи пересечения поверхностей вращения........................................ 82

2.9.5. Взаимное пересечение многогранников.............................................................. 82

ГЛАВА 3...................................................................................................................................... 84

3.1. Развертки поверхностей................................................................................................ 84

3.1.1. Общие сведения...................................................................................................... 84

3.1.2. Развертки многогранников................................................................................... 84

3.1.3. Построение приближенных разверток развертывающихся поверхностей...... 88

3.2. Плоскости, касательные к поверхности....................................................................... 90

3.2.1. Плоскости, касательные к поверхностям вращения........................................... 91

3.3. Аксонометрические поверхности................................................................................ 95

3.4. Основная теорема аксонометрии.................................................................................. 95

3.4.1. Прямоугольная изометрическая проекция........................................................... 96

3.4.2. Прямоугольная диметрическая проекция............................................................ 97

3.4.3. Косоугольные аксонометрические проекции..................................................... 97

ГЛАВА 4...................................................................................................................................... 101

4.1. Общие понятия............................................................................................................... 101

4.2. Тень точки....................................................................................................................... 103

4.3. Тень прямой линии......................................................................................................... 103

4.4. Тень плоской фигуры..................................................................................................... 105

4.5. Метод обратных лучей................................................................................................... 106

4.6. Тени поверхностей......................................................................................................... 107

4.7. Тени в аксонометрии...................................................................................................... 108

4.7.1. Тень от точки.......................................................................................................... 108

4.7.2. Тень от отрезка прямой линии............................................................................. 109

4.7.3. Тени от призмы...................................................................................................... 110

Приложение 1. Образцы и варианты заданий......................................................................... 111

Приложение 2

........... Примеры экзаменационных билетов для спец. 3305, 2404........................................ 117

........... Примеры экзаменационных билетов для спец. 2907.................................................. 125

Список литературы.................................................................................................................... 130

 

 


 

 


Учебное издание

 

 

Дузенко Константин Константинович

Уральская Любовь Сергеевна

Белоус Тамара Альбертовна

 

 

 

 

Учебное пособие

 

Изд. лиц. ИД № 00434 от 10.11.99.

Подписано в печать 25.06.04. Формат 60x84/8. Усл. печ. л. 7,7. Уч.-изд. л. 8,3.

Тираж 420 экз. Заказ Цена.

Отпечатано в Белгородском государственном технологическом университете

им. В.Г. Шухова

308012, г. Белгород, ул. Костюкова, 46.

<== предыдущая лекция | следующая лекция ==>
Тень от отрезка прямой линии | Основные задачи, функции и права Департамента
Поделиться с друзьями:


Дата добавления: 2013-12-13; Просмотров: 6426; Нарушение авторских прав?; Мы поможем в написании вашей работы!


Нам важно ваше мнение! Был ли полезен опубликованный материал? Да | Нет



studopedia.su - Студопедия (2013 - 2026) год. Все материалы представленные на сайте исключительно с целью ознакомления читателями и не преследуют коммерческих целей или нарушение авторских прав! Последнее добавление




Генерация страницы за: 0.015 сек.