Студопедия

КАТЕГОРИИ:


Архитектура-(3434)Астрономия-(809)Биология-(7483)Биотехнологии-(1457)Военное дело-(14632)Высокие технологии-(1363)География-(913)Геология-(1438)Государство-(451)Демография-(1065)Дом-(47672)Журналистика и СМИ-(912)Изобретательство-(14524)Иностранные языки-(4268)Информатика-(17799)Искусство-(1338)История-(13644)Компьютеры-(11121)Косметика-(55)Кулинария-(373)Культура-(8427)Лингвистика-(374)Литература-(1642)Маркетинг-(23702)Математика-(16968)Машиностроение-(1700)Медицина-(12668)Менеджмент-(24684)Механика-(15423)Науковедение-(506)Образование-(11852)Охрана труда-(3308)Педагогика-(5571)Полиграфия-(1312)Политика-(7869)Право-(5454)Приборостроение-(1369)Программирование-(2801)Производство-(97182)Промышленность-(8706)Психология-(18388)Религия-(3217)Связь-(10668)Сельское хозяйство-(299)Социология-(6455)Спорт-(42831)Строительство-(4793)Торговля-(5050)Транспорт-(2929)Туризм-(1568)Физика-(3942)Философия-(17015)Финансы-(26596)Химия-(22929)Экология-(12095)Экономика-(9961)Электроника-(8441)Электротехника-(4623)Энергетика-(12629)Юриспруденция-(1492)Ядерная техника-(1748)

Конвейерные морозильные аппараты

В зависимости от способа размещения замораживаемого продукта в грузовом отсеке различают аппараты этого типа с цепным конвейером, гравитационные и ленточные.

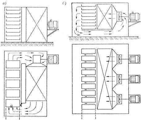
В аппаратах с цепным конвейером продукт замораживается в металлических блок-формах, прикреплённых к непрерывно движущимся цепям специальными шарнирами. Чаще всего используется две параллельные зигзагообразные цепи с закреплёнными между ними блок-формами. Встречаются аппараты с продольным и поперечным движением воздуха относительно блок-форм. Принципиальные схемы таких аппаратов приведены на рис. 13.3.

 

 

Рис. 13.3. Конвейерные скороморозильные аппараты непрерывного действия:

а – с продольным движением воздуха; б – с поперечным движением воздуха

 

Рассмотрим работу такого аппарата с продольным движением воздуха на примере серийно выпускаемых судовых морозильных аппаратов АСМА.

Их отличительной особенностью является замораживание продукции в блок-формах с крышками, что снижает усушку при замораживании блоков рыбы. Блок-формы являются неотъемлемой частью конвейера (рис. 13.4).

Грузовой конвейер состоит из двух параллельных конвейерных цепей, направление движения которых меняется с помощью звездочек. Конвейер образует 16 горизонтальных ветвей. Из изолированного контура в теплое помещение через проемы в передней торцовой стенке аппарата выходят верхняя и нижняя ветви конвейера. В этом же помещении блок-формы аппарата загружают продуктом и разгружают их.

 

 

Рис. 13.4. Автоматизированный судовой морозильный аппарат типа АСМА:

1 – вентилятор; 2 – электродвигатель вентилятора; 3 – изолированные двери; 4 – воздухоохладитель; 5 – дверь; 6 – разгрузочный транспортер; 7 – опрокидыватель; 8 – блок форма; 9 – грузовой конвейер; 10 – элеватор; 11 – конвейерные цепи; 12 – привод конвейера; 13 – звездочки; 14 – направляющие; 15 – изолированный контур; 16 – электродвигатель конвейера; 17 – транспортер-питатель; 18 – бункер

 

С помощью пальцев цепи конвейера шарнирно соединены с блок-формами. Каждая блок-форма имеет четыре ролика, на которых она перемещается по направляющим. Перемещение блок-форм с одного яруса на другой происходит сверху вниз. Переход блок-форм с верхних направляющих на нижние происходит гравитационным способом.

Привод конвейера осуществляется от электродвигателя через двухступенчатый червячный редуктор и цепную передачу.

Движение воздуха создается центробежным вентилятором с двусторонним всасыванием. Электродвигатель вентилятора вынесен за охлаждаемый контур аппарата.

Из моечной машины рыба поступает на бункерные весы, а затем в загрузочный бункер, из которого высыпается в блок-формы грузового конвейера. Заполненные блок-формы поступают в грузовой отсек, Скорость движения конвейера можно регулировать в пределах, которые соответствуют времени пребывания блок-формы в грузовом отсеке.

По выходе из аппарата блок-формы, шарнирно связанные с цепями конвейера только одной стороной, переворачиваются с помощью специального устройства. Перевернутая блок-форма подводится под нагреватель для оттаивания, после чего оттягивается крышка и подтаявший блок выпадает на разгрузочный транспортер.

Достоинством аппарата является высокая степень его механизации, что уменьшает трудовые затраты на единицу продукции. К недостаткам следует отнести нестандартные размеры и недостаточную жесткость блок-форм.

Технические характеристики аппарата АСМА приведены в табл. 13.3.

 

Таблица 13.3 – Технические характеристики СА конвейерного типа

 

Параметры АСМА ГКА-2
Производительность, т/сутки    
Емкость, кг    
Количество блок-форм    
Площадь поверхности воздухоохладителя, м2    
Температура воздуха в аппарате, °С минус 37 минус 35
Скорость воздуха, м/с 5...6  
Количество вентиляторов    
Производительность вентилятора, м/с 12,5  
Продолжительность замораживания, ч 2,5...3 2...6
Размеры блок-формы, мм 800´250´60
Габаритные размеры аппарата, мм 8900´5150´2800 8100´3150´3250
Масса аппарата, т    

 

Частным случаем конвейерных аппаратов являются гравитационно-конвейерные (ГКА). Их отличительная особенность – отсутствие конвейерных цепей: противни с замораживаемым продуктом располагают на каретках, которые передвигаются по горизонтальным полкам, проталкивая друг друга. А переход крайней каретки с верхней полки на нижнюю осуществляется под воздействием сил тяжести.

В СССР большое распространение получили гравитационно-конвейерные аппараты ГКА-2 (рис. 13.5) и, особенно, его модернизированный вариант
ГКА-4.

Аппарат представляет собой изолированный контур, выполненный из сборных щитов с тепловой изоляцией из пенополистирола. В верхней части аппарата расположены грузовой отсек и вентиляторная установка, а в нижней – отсек воздухоохладителя. Для входа в грузовой отсек и осмотра внутренних узлов аппарата предусмотрены двери и люки. Загрузка аппарата продуктом, перемещение блок-форм, удаление замороженных блоков полностью автоматизированы.

По направляющим полкам перемещаются каретки с блок-формами. Количество полок по высоте изменяется от 8 до 14.

 

Рис. 13.5. Гравитационный морозильный аппарат ГКА-2:

1 – вентиляторная установка; 2 – грузовой отсек; 3 – гребенка; 4 – нулевая полка; 5 – стол; 6 – рычаг ввода каретки; 7 – пюпитр; 8 – приемное устройство; 9 – заслонка нижнего окна; 10 – каретка; 11 – блок-форма; 12 – отсек воздухоохладителя.

 

Каретка представляет собой сварную рамку из углового железа с четырьмя роликами для ее движения по направляющим полкам каркаса. Каретка вмещает две сдвоенные блок-формы стандартного размера.

Блок-формы с продуктом поступают к аппарату на ленточном транспортере. Подача блок-форм в аппарат и удаление их из аппарата производится укрепленным на шарнирах столом, который непрерывно движется вверх и вниз по двум вертикальным винтам с правой и левой резьбами, обеспечивающими автоматическое изменение направления движения при постоянно работающем электродвигателе.

Когда стол движется снизу вверх, рабочий вводит две блок-формы в каретку. В верхнем положении стола каретка с блок-формами подается рычагами через приоткрытую заслонку верхнего окна на нулевую полку морозильного аппарата, сдвигая предыдущую каретку на верхние толкатели передних гребенок. После этого стол начинает опускаться, а заслонка верхнего окна закрывается. Затем каретка с блок-формами проходит последовательно по всем направляющим полкам зигзагообразный путь сверху вниз, опускаясь в конце каждой из них на следующую полку, пока снова не попадёт на стол.

При дальнейшем опускании стола наклонный неподвижный пюпитр входит в рамку каретки. Блок-формы с замороженным продуктом задерживаются на пюпитре и соскальзывают на приемную площадку. Пустая каретка остается на платформе опускающегося стола для повторной загрузки блок-формами.

Недостатки аппарата ГКА: большие размеры аппарата не позволяют транспортировать его полностью собранным и отлаженным на заводе; механизм конвейера работает в сложных температурно-влажностных условиях; при оттаивании воздухоохладителя температура воздуха в аппарате повышается и детали механизма покрываются водой; при включении аппарата температура воздуха в нем понижается и вода замерзает, что затрудняет работу конвейера.

По сравнению с аппаратом ГКА-2 в ГКА-4 предусмотрен прочный собираемый на болтах каркас, все элементы которого выполнены на заводе. Вместо четырех роликов скольжения каждая каретка снабжена двумя подшипниками. Привод гребенок усилен и обеспечена его установка на каркас полностью собранным и отлаженным на заводе. Конструкция гребенок и их направляющих улучшена. Ввод каретки в аппарат стал плавным и надежным.

Важнейшие характеристики ГКА-2 приведены в табл. 13.3.

Мелкоштучную продукцию удобно замораживать на ленте бесконечного конвейера.

Для быстрого и эффективного замораживания различных продуктов в непрерывном режиме НПО "РОСС" (Харьков) предлагает такую разработку – КТМ-120. Габаритные размеры – 4800´2200´2200 мм; рабочая температура – минус 35 … минус 32 °С; номинальная мощность – 6 кВт; масса аппарата – 1100 кг.

Конструктивно она представляет собой туннель с транспортером, по всей длине которого расположены мощные воздухоохладители, понижающие температуру воздуха во внутреннем объеме до минус 35 °С.

С помощью удобного электронного пульта управления задается температурный режим, скорость движения транспортера, а также периодичность оттаивания испарителя. Кроме того, пульт выполняет функцию защиты холодильного агрегата от аварийных режимов работы.

Загрузочный и разгрузочный люки в торцах камеры, а также специальные кассеты максимально упрощают процесс загрузки и выгрузки. Сигнальная лампа и система блокировки транспортера указывают оператору на необходимость извлечения кассеты с замороженным продуктом. Высокоэффективные теплоизоляционные плиты дают возможность успешно эксплуатировать камеру в южных районах.

Наибольшее распространение из аппаратов ленточного типа получили спиральные СА – разновидность конвейерных морозильных аппаратов, в которых длинная конвейерная лента располагается по спирали ярусами (до 50 ярусов в высоту). Сетчатая лента с продуктом, скользя по направляющим, движется по спирали вдоль медленно вращающегося барабана, который приводит её в действие за счёт трения. На отечественных предприятиях можно встретить такие аппараты шведского производства типа Гирофриз (рис. 13.6).

Он состоит из изолированного контура, воздухоохладителя, вентиляторов, устройства для мытья и сушки ленты, натяжного устройства и узла разгрузки.

Спиральный ленточный конвейер может перемещаться вокруг одного или двух барабанов. Лента конвейера по краям снабжена специальными звеньями, которые соединены между собой крестообразно круглыми стержнями. Отверстия в звеньях выполнены так, что лента может сжиматься и растягиваться. Ленту можно навивать на барабан диаметром около 2 м. Характерной особенностью такой ленты является и то, что продукт остается зафиксированным на ней при движении в аппарате. Это позволяет на одной ленте одновременно замораживать различные продукты, продолжительность холодильной обработки которых одинакова.

 

Рис. 13.6. Морозильные аппараты Гирофриз:

а) с одним барабаном: 1 – барабан; 2 – устройство для мытья ленты; 3 – преобразователь частоты; 4 – распределительный щит; 5 – вентилятор; 6 – воздухоохладитель;

б) с двумя барабанами: 1 – устройство для переворачивания ленты; 2 – второй барабан; 3 – первый барабан; 4 – воздухоохладитель; 5 – вентилятор; 6 – узел разгрузки; 7 – моечное устройство; 8 – вентилятор сушки ленты; 9 – натяжное устройство.

 

Барабан приводится в движение электрическим или гидравлическим приводом. Такой привод исключает необходимость применения промежуточных валов, подшипников и передач. Скорость движения ленточного конвейера задается такой, чтобы продукт за время перемещения его в аппарате был заморожен. Отсек с оребренными воздухоохладителями и осевыми вентиляторами находится рядом с грузовым отсеком. Охлаждение воздухоохладителей может производиться аммиаком (с применением насосно-циркуляционной схемы) или R22.

Холодный воздух в аппарате обдувает замораживаемые продукты сверху вниз. Вентилятором 5 (рис. 13.6 а) подогретый и увлажнённый воздух нагнетается в пространство на втором этаже аппарата (на полу второго этажа установлен воздухоохладитель 6), охлаждаясь и осушаясь при этом в воздухоохладителе 6. Отсюда под избыточным давлением он последовательно проходит через ярусы и постепенно насыщается влагой. Это способствует уменьшению усушки замораживаемых продуктов. В аппаратах Гирофриз усушка на 40...50 % меньше, чем усушка в воздушных морозильных аппаратах.

Аппарат оборудуется автоматическим устройством для мытья и сушки ленты. Лента сначала орошается теплой водой и дезинфицирующим раствором, а затем ополаскивается теплой водой. Вентилятор, установленный по ходу движения ленты за моечным устройством, подсушивает ленту.

После мытья и сушки ленты она проходит натяжное устройство, которое компенсирует изменение длины. Лента меняет линейные размеры при изменении температуры и вследствие износа. Узел разгрузки, оборудованный нейлоновым ножом, снимает продукт с ленты.

Простота эксплуатации, максимальная гигиеничность, интенсивность холодильной обработки, малая усушка являются основными достоинствами аппаратов типа Гирофриз.

Техническая характеристика однобарабанного аппарата такого типа:

– производительность 550 кг/ч

– количество рабочих ярусов 17,5

– поверхность охлаждающих батарей 750 м2

– температура воздуха в аппарате минус 35 °С

– скорость движения воздуха 5 м/с

– производительность вентиляторов 10 м3

– продолжительность замораживания 5...20 мин

– габаритные размеры аппарата 5,4´3,0´2,75 м

Аналогичный модульный ряд САС (скороморозильных аппаратов спиральных) недавно разработала и начала их серийное производство российская фирма “Простор Л”. Однобарабанные конструкции изготавливаются с конвейерными лентами шириной от 300 до 660 мм, способны замораживать самую разнообразную мелкоштучную продукцию толщиной не более 20...25 мм.

 

Модель Производительность, кг/ч Электрическая мощность, кВт
САС 500   13,8
САС 700   13,8
САС 900   18,2
САС 1100   18,2
САС 1300   22,6
САС 1500   22,6

 

Несомненным преимуществом аппаратов данного типа является компактность: занимаемая ими площадь составляет менее 60 % площади конвейерных аппаратов той же производительности.

<== предыдущая лекция | следующая лекция ==>
Морозильные аппараты тележечного типа | Флюидизационные морозильные аппараты
Поделиться с друзьями:


Дата добавления: 2014-01-04; Просмотров: 4054; Нарушение авторских прав?; Мы поможем в написании вашей работы!


Нам важно ваше мнение! Был ли полезен опубликованный материал? Да | Нет



studopedia.su - Студопедия (2013 - 2026) год. Все материалы представленные на сайте исключительно с целью ознакомления читателями и не преследуют коммерческих целей или нарушение авторских прав! Последнее добавление




Генерация страницы за: 0.011 сек.