Студопедия

КАТЕГОРИИ:


Архитектура-(3434)Астрономия-(809)Биология-(7483)Биотехнологии-(1457)Военное дело-(14632)Высокие технологии-(1363)География-(913)Геология-(1438)Государство-(451)Демография-(1065)Дом-(47672)Журналистика и СМИ-(912)Изобретательство-(14524)Иностранные языки-(4268)Информатика-(17799)Искусство-(1338)История-(13644)Компьютеры-(11121)Косметика-(55)Кулинария-(373)Культура-(8427)Лингвистика-(374)Литература-(1642)Маркетинг-(23702)Математика-(16968)Машиностроение-(1700)Медицина-(12668)Менеджмент-(24684)Механика-(15423)Науковедение-(506)Образование-(11852)Охрана труда-(3308)Педагогика-(5571)Полиграфия-(1312)Политика-(7869)Право-(5454)Приборостроение-(1369)Программирование-(2801)Производство-(97182)Промышленность-(8706)Психология-(18388)Религия-(3217)Связь-(10668)Сельское хозяйство-(299)Социология-(6455)Спорт-(42831)Строительство-(4793)Торговля-(5050)Транспорт-(2929)Туризм-(1568)Физика-(3942)Философия-(17015)Финансы-(26596)Химия-(22929)Экология-(12095)Экономика-(9961)Электроника-(8441)Электротехника-(4623)Энергетика-(12629)Юриспруденция-(1492)Ядерная техника-(1748)

Основні відхилення. Позначення основних відхилень отворів і валів




Графічне зображення посадок із зазором, натягом та перехідні в системі отвору і вала.

 
 

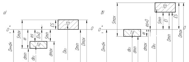
Схема полів допусків посадки з зазором у системі отвору (а) та вала (б) представлена на рис.11.

Рис.11

 
 

Схема полів допусків посадки з натягом у системі (а) та вала (б) представлена на рис.12

Рис.12

 
 

Схема полів допусків перехідної посадки в системі у системі отвору (а) та вала (б) представлена на рис.13

 
 

Рис.13

Важливою особливістю ЄСДП і ІСО є наявність у них так звано­го основного відхилення, відсутнього у системі ГОСТ.

Основним відхиленням називається одне з двох граничних від­хилень (верхнє або нижнє), яке використовується для визначення по­ложення поля допуску відносно нульової лінії. Одночасно основне відхилення є найближчим до нульової лінії.

Як правило, основним є найближче до нульової лінії граничне відхилення. Для всіх полів допусків, розташованих нижче нульової лінії основним є верхнє граничне відхилення (es або ES), для полів допусків, розташованих вище нульової лінії, основним є нижнє граничне відхилення (ei або EI).

Кожне розташування основного відхилення позначається латинською буквою – малою для валів і великою для отворів.

Для валів у діапазоні 0-500 мм у ГОСТ 25346-89, ДСТУ 2500-94 передбачено 28 основних відхилень, що позначаються малими літе­рами латинського алфавіту: а, b, с, сd, d,e, еf, f, fg, g, h, js, j ,k, m, п, р,r, s, t, и, v, х, у, z, za, zb, zc, які визначають для певного номінального розміру положення кожного з полів допусків відносно нульової лінії (рис. 14, б). Числові значення основних відхилень валів для вказа­ного інтервалу наведені у ГОСТ 25346-89, ДСТУ 2500-94.

Для 11 полів допусків валів від а до hщо розміщені під нульовою лінією, основними відхиленнями є верхні відхилення es, відємні за знаком. Другі відхилення - нижні еі, які можна назвати неосновними, - не задані у цьому стандарті. Для кожного з полів і певного номінального розміру вони залежать від обраного квалітету і визначаються за формулою:

Таким чином, кожне з полів допусків валів від а до hмає по 20 продовжень - найменших за абсолютною величиною для квалітету 01 і найбільших - для 18-го квалітету.

Поле допуску симетричне відносно нульової лінії, і для нього верхнє та нижнє відхилення однакові за абсолютною величиною і протилежні за знаком, тобто

Дня 16 полів допусків валів від jдо zc, що розміщені над нульовою лінією, основними відхиленнями є нижні відхилення еі, додатні за знаком. Неосновні, верхні, відхилення для певного номінального розміру залежать від обраного квалітету і визначаються за формулою:

Т аким чином, кожне з полів допусків валів від j до zcмає також по 20 продовжень вгору.

Для отворів у діапазоні 0-500 мм у ГОСТ 25346-89 передбачено також 28 основних відхилень, що позначаються великими літерами латинсьеого алфавіту: А, В, С, СD, D, DЕ, Е, EF, F, FG, G,Н, Js, J, К, М, N, P,R, S, T, U, V, X, Y, Z, ZA, ZB, ZC, які визначають для певного номінального розміру положення кожного з полів допусків відносно нульової лінії (рис. 14,а). Числові значення основних відхилень отворів для вказаного інтервалу наведені у ГОСТ 25346-89, ДСТУ 2500-94.

Дія 11 полів допусків отворів від А до Н, що розміщені над нульовою лінією, основними відхиленнями є нижні відхилення ЕІ, додатні за знаком. Неосновні відхилення ЕS не задані у даному стандарті, також додатні для кожного з полів для певного номінального розміру, залежать, від обраного квалітету і підраховуються за формулою:

Поле допуску , як і для валів, також симетричне і для нього:

Дня 16 полів допусків отвору від Jдо ZC, що розміщені під нульовою лінією, основними відхиленнями є верхні відхилення ES, відємні за знаком. Неосновні відхилення ЕІ також відємні, не задані у стандарті, залежать від обраного квалітету для кожного з полів певного номінального розміру і визначаються за формулою:

Отже і для отворів кожне поле допуску має також по 20 продовжень вгору або вниз.

Основні відхилення для для всіх полів допусків валів (крім j та k ) і для полів допусків отворів від А до Н не залежать від обраного квалітету і, таким чином, симетричні для полів отворів від А до Н і валів від а до h..

Для визначення основного відхилення полів отворів від J до ZC необхідно знати обраний квалітет.

Розглянемо особливості полів допусків у діапазоні номінальних розмірів 500-3150 мм. У цьому інтервалі в ЄСДП встановлено тільки 17 оснеовних відхилень і полів допусків для валів і отворів. Для отворів це основні відхилення і поля С, СD, D, E, F, G, Н,Js, К, М, N, Р, R, S, Т,U, а для валів - с, сd, d,e, f, g, h, js, k, m, п, р,r, s, t, и, v. Для цих полів допусків величина основного відхилення не залежить від квалітету і всі вони симетричні для певного номінального розміру відносно нульової лінії, тобто ЕІ для поля отвору С за абсолютною величиною дорівнює еі для поля вала с тощо. Решта правил, що викладені для діапазону 0-500 мм, справедливі і для цього діапазону.

Буквою h позначається верхнє відхилення вала рівне нулеві (основний вал), буквою H – нижнє відхилення отвору, рівне нулеві (основний отвір). Не основні відхилення відкладаються в матеріал деталі від основного відхилення. Таку систему допусків називають однобічною ассиметричной.




Поделиться с друзьями:


Дата добавления: 2014-10-15; Просмотров: 3980; Нарушение авторских прав?; Мы поможем в написании вашей работы!


Нам важно ваше мнение! Был ли полезен опубликованный материал? Да | Нет



studopedia.su - Студопедия (2013 - 2026) год. Все материалы представленные на сайте исключительно с целью ознакомления читателями и не преследуют коммерческих целей или нарушение авторских прав! Последнее добавление




Генерация страницы за: 0.012 сек.