Студопедия

КАТЕГОРИИ:


Архитектура-(3434)Астрономия-(809)Биология-(7483)Биотехнологии-(1457)Военное дело-(14632)Высокие технологии-(1363)География-(913)Геология-(1438)Государство-(451)Демография-(1065)Дом-(47672)Журналистика и СМИ-(912)Изобретательство-(14524)Иностранные языки-(4268)Информатика-(17799)Искусство-(1338)История-(13644)Компьютеры-(11121)Косметика-(55)Кулинария-(373)Культура-(8427)Лингвистика-(374)Литература-(1642)Маркетинг-(23702)Математика-(16968)Машиностроение-(1700)Медицина-(12668)Менеджмент-(24684)Механика-(15423)Науковедение-(506)Образование-(11852)Охрана труда-(3308)Педагогика-(5571)Полиграфия-(1312)Политика-(7869)Право-(5454)Приборостроение-(1369)Программирование-(2801)Производство-(97182)Промышленность-(8706)Психология-(18388)Религия-(3217)Связь-(10668)Сельское хозяйство-(299)Социология-(6455)Спорт-(42831)Строительство-(4793)Торговля-(5050)Транспорт-(2929)Туризм-(1568)Физика-(3942)Философия-(17015)Финансы-(26596)Химия-(22929)Экология-(12095)Экономика-(9961)Электроника-(8441)Электротехника-(4623)Энергетика-(12629)Юриспруденция-(1492)Ядерная техника-(1748)

Заняття № 4 - 5




Змістовий модуль 2 Єдина система допусків і посадок

ПЛАН:

1 Єдина система допусків і посадок (ЕСДП), її роль у розвитку інтеграції між державами.

2 Поняття про розміри, граничні відхилення і допуски. Номінальні, дійсні та граничні розміри. Ряди нормальних діаметрів і довжин у машинобудуванні і їх вибір згідно з ГОСТ.

3 Відхилення. Допуски. Схематичне зображення полів допусків. Поняття про з’єднання і посадки. Класифікація з’єднання.

4 Граничні і середні зазори і натяги. Три групи посадок. Допуск посадки. Система допусків і посадок(система отвору і система вала). Одиниця допуску.

5 Квалітети точності. Принцип вибору допусків. Нанесення розмірів і граничних відхилень на кресленні.

6 Розрахунок і вибір посадок, приклади їх застосування

 

Мета заняття: При вивченні даної теми особливу увагу слід звернути на визначення системи отвору і системи вала, квалітетів точності, на формули для розрахунку допусків на всі квалітети, позначення і розташування основних відхилень щодо номінального розміру, позначення допусків на кресленнях, правильне користування таблицями ГОСТ 25347-89.

Мета виховна: Впровадження ЕСДП створює передумови для забезпечення і підвищення надійності міжнародної спеціалізації при виробництві машин і вузлів.

 

 

Самостійна робота №3

Тема: Єдина система допусків і посадок

План: 1 Допуски розмірів, як різниця граничних розмірів та відхилень.

2 Позначення відхилень.

3 Нульова лінія.

4 Основні відхилення.

5 Поле допуску

6 Квалітети точності

 

Література: 1,с.58-64; 2,с.79-87; заняття №3, с. 30 - 46

 

1 Єдина система допусків і посадок (ЕСДП), її роль у

розвитку інтеграції між державами

Взаємозамінність:

- забезпечує високу якість виробу;

- знижує собівартість виробу;

- сприяє при цьому використанню прогресивної технології та вимірювальної техніки.

Взаємозамінність базується на стандартизації, нормативно-технічним документом якого є стандарт.

Нормування допусків та посадок здійснюється двома систе­мами стандартів:

1. ЄСДП - "Єдиною системою допусків та посадок", яка по­ширюється на:

- допуски розмірів гладких елементів деталей;

- посадки, що утворюються при з'єднані цих деталей;

2. ОНВ - "Основними нормами взаємозамінності", що вста­новлюють допуски та посадки на:

- шпонкові;

- шліцьові;

- різьбові з'єднання;

- зубчасті передачі, колеса тощо.

Доцільно відмітити, що допуски та посадки повинні бути вказані в технічній документації (креслення, що містить зобра­ження виробу та необхідні для його контролю й виготовлення відомості).

ЄСДП для гладких деталей і з'єднань була розроблена для країн - членів Ради Економічної Взаємодопомоги (С9В). Вона є частиною комплексу нормативно-технічних документів, який має назву "Основні норми взаємозамінності". Комплекс охоплює загальнотехнічні норми, які визначають взаємозамін­ність типових з'єднань в машинобудуванні: гладких (циліндри­чних та плоских), конічних, різьбових, шпонкових, зубчастих передач, включає допуски форми, розташування та шорсткос­ті поверхонь.

Комплекс розроблений в тісному узгодженні зі стандартами та рекомендаціями Міжнародної організації зі стандартизації

(ISO), Міжнародної електротехнічної комісії (МЕК), з іншими міжнародними нормами. Тому державні стандарти України (ДСТУ), які розроблені і розробляються нині, використовують вимоги стандартів ЄСДП безпосередньо в своїх визначеннях і текстах.

Це складає передумови для України забезпечувати у міжна­родному масштабі:

- взаємозамінність деталей, вузлів і машин;

- єдине оформлення технічної документації;

- єдиний парк інструментів, калібрів та іншого технологіч­ного оснащення.

ЄСДП встановлена у стандартах, поданих в кінці даного по­сібника в переліку нормативно-технічної документації.

Ці стандарти розповсюджені на гладкі циліндричні та пло­скі з'єднання, а також на гладкі елементи деталей, що не спрягаються, з номінальними розмірами до 10 000 мм неза­лежно від видів матеріалів деталей та способів обробки.

Основою ЄСДП є система допусків і посадок ISO (International Organization of Standardization). Національні стандар­ти розробляються на основі рекомендацій і стандартів ISO.

Основи побудови ЄСДП

Основи побудови ЄСДП викладені в ГОСТ 25346(для розмірів до 3150 мм) та ГОСТ 25348(для розмірів понад 3150 мм до 10 000 мм). Вони цілком відповідають основам по­будови системи ISO і включають: терміни і визначення, інтер­вали номінальних розмірів, формули і числові значення допу­сків і відхилень, правила утворення і умовні позначення полів допусків і посадок.

 

2 Поняття про розміри, граничні відхилення і допуски.

Номінальні, дійсні та граничні розміри.

На кресленні деталі проставляються розміри, які називають номінальними, та граничні відхилення розмірів чи умовні по­значення допусків.

При цьому:

- термін "отвір" використовують для позначення внутрі­шніх (охоплюючих) циліндричних та плоских поверхонь;

- номінальний розмір отвору позначають D (ø);

- термін "вал" означає зовнішні (охоплювані) циліндричні
та плоскі паралельні поверхні;

- номінальний розмір вала позначають d (ø);

- у випадку, коли вал та отвір утворюють одне з'єднання
(спряження), за номінальний розмір приймають розмір для
вала і отвору, що позначають D (d).

Номінальні розміри вибирають з рядів нормальних лінійних розмірів за ГОСТ 6636, що обмежує число розмірів, які ви­користовуються.

У вказаному ГОСТ 6636 передбачені 4 основні ряди роз­мірів Rа5, R10, Rа20 і Rа40 і один ряд додаткових розмірів.

При цьому слід вживати з пріоритетом ряди з більш круп­ною градацією розмірів (з великим знаменником прогресії), тобто ряду Rа5 слід надавати перевагу перед рядом Rа10 тощо.

Ряди лінійних розмірів, побудовані на основі рядів пере­важних чисел, являють собою десяткові ряди геометричних прогресій зі знаменникам для рядів:

Rа5 - ≈ 1,6;

Rа10 - ≈ 1,25;

Rа20 - ≈ 1,12;

Rа40 - ≈ 1,06;

тобто степінь кореня входить в умовне позначення рядів.

При цьому:

- числа, що складають ряд лінійних розмірів, округлені;

- ряди номінальних розмірів не поширюються на техноло­гічні міжопераційні розміри, діаметри підшипників кочення,діаметри різьб.

Приклади рядів для номінального розміру 1,0 мм дані в таблиці 1.

 

Таблиця 1 - Приклади рядів для номінального розміру 1,0 мм

Rа5 Rа10 Rа20 Rа40
1,0     1,0     1,0   1,1 1,0 1,05 1,1 1,15
1,2   1,2   1,4 1,2 1,3 1,4 1,5
1,6 1,6 1,6 1,6

Ряди нормальних діаметрів і довжин у машинобудуванні і

їх вибір згідно з ГОСТ 6636.

Інтервали номінальних розмірів, що прийняті в ЄСДП для визначення допусків і граничних відхилень, поділяються на основні та проміжні.

Основні інтервали використовуються для визначення всіх допусків системи і тих граничних відхилень, які більш плав­но змінюються в залежності від номінального розміру.

Починаючи з 250 мм, межі основних інтервалів прийняті згідно з нормальними лінійними розмірами ряду R10. Про­міжні інтервали введені для номінальних розмірів понад 10 мм і поділяють кожен основний інтервал на два (в деяких випад­ках на три).

Починаючи з 250 мм, межі проміжних інтервалів прийняті згідно з нормальними лінійними розмірами ряду R20.

Поєднання будь-яких основних відхилень в кожному з квалітетів теоретично дозволяє утворити понад 1000 полів допусків валів і отворів. їхнє застосування у виробничих умовах є неекономічним, тому що надмірно ускладнює технологію, зни­жує технологічність виготовлення виробів, обмежує уніфіка­цію різальних та вимірювальних інструментів. Тому зроблений обмежувальний відбір полів допусків для 4-х діапазонів номі­нальних розмірів:

- < 1 мм;

- > 1...500 мм;

- > 500...3150 мм;

- > 3150...10000 мм.

Для діапазону найбільшого застосування (1...500 мм) виділе­ні поля допусків переважного та рекомендованого застосуван­ня.

3 Відхилення. Допуски. Схематичне зображення полів допусків. Поняття про з’єднання і посадки. Класифікація з’єднання.

 

Розміри поверхонь обробленої деталі відрізняються від зада­них номінальних розмірів цих поверхонь через численні по­хибки (помилки), що мають місце в процесі обробки. Тому роз­міри деталей обмежують двома граничними розмірами:

- найбільшим граничним розміром D max та d max;

- найменшим граничним розміром D min та d min.

Дійсний розмір отримують вимірюванням розміру обробле­ної деталі з допустимою похибкою D д та d д.

Деталь є придатною, якщо

D min ≤ D д ≤ D max

d min ≤ d д ≤ d max

На кресленнях замість граничних розмірів поруч з номі­нальними вказують два граничні відхилення, наприклад 8 .

Відхиленням називається алгебраїчна різниця між розміром (дійсним, граничним тощо) і відповідним номінальним розміром.

Таким чином номінальний розмір слугує початком відліку відхилень та визначає положення нульової лінії.

Дійсне відхилення - алгебраїчна різниця між дійсним та номінальним розмірами.

Граничне відхилення - алгебраїчна різниця між граничним і номінальним розмірами.

Одне з граничних відхилень називається верхнім, а інше нижнім. Ці відхилення можуть бути:

- додатними, тобто розміщуватись вище номінального роз­міру чи нульової лінії;

- від'ємними, тобто розміщуватись під нульовою лінією;

- дорівнювати нулю, тобто співпадати з номінальним розмі­ром чи нульовою лінією.

ЕS - верхнє відхилення отвору - або алгебраїчна різниця між найбільшим граничним D max і номінальним D розмірами отвору:

ЕS = Dmax - D.

ЕІ — нижнє відхилення отвору - це алгебраїчна різниця між найменшим граничним D min і номінальним D розмірами отвору:

ЕІ = Dmin - D.

еs (еі) — верхнє (нижнє) відхилення вала - це алгебраїчна різниця між найбільшим граничним d max (найменшим гранич­ним d min) та номінальним d розмірами вала:

еs = d max – d;

еі = d min – d.

ТD (Тd)допуск розміру отвору (вала) - це різниця між найбільшим Dmax (d max) та найменшим Dmin (d min) граничними розмірами отвору (вала):

ТD = Dmax – Dmin;

Тd = d max -d min,

або допуск — це абсолютна величина алгебраїчної різниці між верхнім ЕS (еs) та нижнім ЕІ (еі) відхиленнями отвору (вала):

ТD = ЕS - ЕІ;

Тd = еs - еі.

 

Допуски. Схематичне зображення полів допусків.

Допуск характеризує точність виготовлення деталі: чим менше допуск Т, тим складніше обробляти деталь, тому що збільшуються вимоги до елементів технологічної системи ВПІД (верстат-пристосування-інструмент-деталь).

Зону (поле), обмежену верхніми та нижніми відхиленнями, називають полем допуску. Поле допуску характеризується вели­чиною допуску та його положенням відносно номінального розмі­ру. При графічному зображенні поле допуску розміщене між дво­ма лініями, що відповідають верхньому та нижньому відхиленню відносно нульової лінії. Схеми розташування полів допусків для валів представлені на рисунку 1, отворів - на рисунку2.

 

Рисунок 1 - Схема розташування полів допусків вала ød

Рисунок 2 - Схема розташування полів допусків отвору øD

Поняття про з’єднання і посадки. Класифікація з’єднання

Характер з'єднання деталей, що визначається величиною отриманих в ньому зазорів чи натягів, називається посадкою.

Посадка характеризує свободу відносного переміщення дета­лей, що з'єднуються, або степінь опору їхньому взаємному зміщенню.

В залежності від взаємного розташування полів допусків отвору і вала розрізняють посадки з зазором, натягом та пере­хідні.

Зазор S - різниця розмірів отвору і вала, якщо розмір отво­ру більше розміру вала.

Натяг N - різниця розмірів вала і отвору до складання, якщо розмір вала більше розміру отвору.

Посадкою з зазором називається посадка, при якій забезпе­чується зазор у з'єднанні. В цій посадці поле допуску отвору Т D розміщене над полем допуску вала Т d (рисунок 3).

На кресленнях з'єднання вала з отвором відхилення позна­чають рядом з номінальним розміром дробом, в чисельнику якого вказують граничні відхилення отвору, а в знаменнику - граничні відхилення для вала, наприклад:

ø48();

 

 

Рисунок 3 - Схема розташування полів допусків посадок із зазором

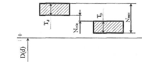
Посадкою з натягом називається посадка, при якій забезпе­чується натяг у з'єднанні. При цьому поле допуску отвору роз­міщене під полем допуску вала (рисунок 4).

 

 

Рисунок 4 - Схема розташування полів допусків посадок із натягом

Перехідна посадка - посадка, при якій можливе отримання як зазору S так і натягу N. В цьому випадку поля допусків отвору і вала перекриваються частково чи повністю (рисунок 5).

 

Рисунок 5 -Схема розташування полів допусків перехідних посадок

Контрольні запитання для самоконтролю

1 Єдина система допусків і посадок (ЕСДП)

2 Дати визначення дійсного, номінального та граничного
відхилення.

3 Дати визначення дійсного, номінального та граничного
розміру.

4 Охарактеризувати поняття "вал" і "отвір".

5 Що таке допуск розміру і допуск граничного відхилення

6 Ряди нормальних розмірів

7 Інтервали нормальних розмірів

8 Що таке поле допуску?

9 Що таке посадка7

10 Три типи з’єднання

11 Характери посадок

 

 

4 Граничні і середні зазори і натяги. Три групи посадок. Допуск посадки

Як видно з приведених схем, посадки характеризуються Smax, Smin, Nmax, N min.

Найбільший зазор Smax - це різниця між найбільшим граничним розміром отвору D max та найменшим граничним розмі­ром вала d min:

Smax = Dmax - dmin

або найбільший зазор - це алгебраїчна різниця між верхнім відхиленням отвору ЕS та нижнім відхиленням вала еі:

Smax = ЕS - еі.

Найменший зазор Smin:

Smin =Dmin - dmax;

Smin = ЕІ - еs.

Допуск зазору (допуск посадки з зазором) Тs - різниця між найбільшим Smax та найменшими Smin, зазорами:

Тs = Smax - Smin,

або сума допусків отвору ТD і вала Тd:

Тs = ТD - Тd

Середній зазор Sс = Sm - середнє арифметичне між найбіль­шим Smax та найменшим Smin зазорами:

= 0,5•(Smax + Smin).

Найбільший натяг Nmax - це різниця між найбільшим гра­ничним розміром вала d max та найменшим граничним розміром отвору Dmin:

Nmax = d max -Dmin,

або - алгебраїчна різниця між верхнім відхиленням вала еs та нижнім відхиленням отвору ЕІ:

Nmax = еs ЕІ.

Найменший натяг Nmin:

Nmin = d min - Dmax;

Nmin = еі - ЕS.

Допуск натягу (допуск посадки з натягом) ТN - різниця між найбільшим N max і найменшим N min натягами:

ТN = Nmax - Nmin,

або сума допусків отвору ТD і вала Тd:

ТN = ТD - ТD

Середній натяг = Nm - середнє арифметичне між най­більшим N max та найменшим N min натягами:

= 0,5 • (Nmax + Nmin);

для перехідних посадок

= 0,5 • (Nmax + Smax);

- Smax = Nmin.

 

 

Система допусків і посадок(система отвору і система вала)

Системою допусків і посадок називається закономірно побу­дована сукупність стандартизованих допусків і граничних від­хилень розмірів деталей, а також посадок, утворених отвора­ми та валами зі стандартними граничними відхиленнями.

Системи допусків і посадок розроблені на окремі типи з'єд­нань незалежно від конкретних видів машин, приладів, мате­ріалів деталей та інших умов.

За допомогою системи допусків і посадок кількість різних полів допусків для розмірів зведена до технічно і економічно обґрунтованого мінімуму. Це скорочує кількість типорозмірів деталей та виробів, підвищує їхню уніфікацію, дозволяє орга­нізовувати спеціалізований випуск різального та вимірюваль­ного інструменту.

Умовні позначення допусків і посадок, встановлені в стан­дартних системах, спрощують оформлення конструкторської та іншої технічної документації, полегшують маркірування ін­струментів та калібрів.

Різні системи допусків і посадок мають деякі загальні по­няття:

- поля допусків;

- градація значень допусків встановлюється у вигляді набо­ру степенів точності (квалітетів), допуски яких при заданому
номінальному розмірі утворюють геометричну прогресію. Тому
допуск сусіднього, менш точного квалітету, дорівнює відомому
допуску, помноженому на знаменник геометричної прогресії:

Т IT(q+1) = T ITq · φ тощо

- для скорочення об'єму таблиць весь діапазон розрядів роз­битий на декілька інтервалів, в кожному з них прийняте по­стійне значення допусків, що обчислюється за середнім гео­метричним та середнім арифметичним граничними розмірами інтервалу. Такий допуск називається допуском системи (стан­дартним допуском).

Для отримання посадок в системі допусків визначені (ГОСТ 25347):

- набори полів допусків валів та отворів;

- встановлена величина допуску;

- встановлене розміщення його відносно нульової лінії;

- поєднанням полів допусків вала та отвору утворюють різ­ні посадки;

- існує система отвору та система вала.

Посадки в системі отвору - посадки, в яких зазори та натя­ги отримуються з'єднанням різних за розміром валів з основ­ним отвором.

В системі отвору поле допуску основного отвору Т D розміщено незмінно відносно нульової лінії так, що нижнє відхилення ЕІ=0, а верхнє відхилення ЕS дорівнює допуску основного отвору зі знаком "+". Йому відповідає поле допуску "Н" (рисунок 6, 8).

Рисунок 6 - Схема полів допусків посадок в системі отвору

Посадки в системі вала - посадки, в яких різні зазори S і натяги N отримуються з'єднанням різних за розміром отворів з основним валом.

Основний вал - вал, у якого верхнє відхилення еs = 0, а нижнє еі - дорівнює допуску основного вала зі знаком "—". Йому відповідає поле допуску " h " (рисунок 7, 8).

 

Рисунок 7 - Схема полів допусків посадок в системі вала

 

При використанні на виробництві системі отвору надають перевагу у порівнянні з системою вала, виходячи з більш про­стої і дешевої технології обробки зовнішніх поверхонь.

 

 

 

Рисунок - Система посадок: а - в системі отвору; б - в системі вала

Контрольні запитання для самоаналізу

 

1 Три типи з’єднання

2 Характери посадок

3 Дати визначення системи "вала"

4 Зобразити схеми полів допусків різних посадок в цій системі.
5 Дати визначення системи "отвору"

6 Зобразити схеми по­лів допусків різних посадок в цій системі.

 

5 Квалітети точності. Одиниця допуску

Вироби, що відрізняються за призначенням та умовами ро­боти, виготовлені з неоднаковою точністю. Степінь точності згідно з ЄСДП називається квалітетом.

Градація допусків у системі встановлюється у вигляді набо­ру степенів або квалітетів точності.

Степінь (квалітет) точності - сукупність допусків, які відпо­відають одному рівню точності для всіх номінальних розмірів. Степені позначають числами - порядковими номерами. Для визначення допуску розміру в кожному степені точності всі розміри розбиваються на інтервали. Для кожного інтервалу встановлюють постійне значення допуску. Підрахований за рі­вняннями системи будь-який допуск називається допуском си­стеми або стандартним допуском.

Стандартні допуски використовуються в шкалі для визна­чення точності обладнання, способів обробки, засобів та мето­дів вимірювання тощо.

Квалітет (степінь точності) - степінь градації значень до­пусків системи.

Кожен квалітет містить ряд допусків, які в системі допус­ків та посадок розглядаються як такі, що відповідають при­близно однаковій точності для всіх номінальних розмірів.

В ЄСДП встановлено 19 квалітетів: 01, 0, 1, 2, 3,..., 16, 17,

де 01 - має найвищу точність, а 17 - найнижчу.

Допуск квалітету умовно позначається латинськими літе­рами ІТ (International Tolerance) та номером квалітету q, де q = 01; 0; 1;..., 17, тобто: ІТq, ІТ6, ІТ16,...

Допуски в квалітетах 5... 17 розраховують за формулою:

ІТq = аі

де q - номер квалітету, q = 5... 17;

а - безрозмірний коефіцієнт, встановлений для даного квалітету та незалежний від номінального розміру; цей коефі­цієнт називають числом одиниць допуску (таблиця 1);

і - одиниця допуску (мкм) - множник, що залежить від номінального розміру, який підраховується за формулою:

- для розмірів від 1 до 500 мм:

і = 0,45• + 0,001Dі;

- для розмірів від 500 до 10 000 мм:

і = 0,004•Dі +2,1;

де = - середнє геометричне відхилення граничних значень

інтервалу номінальних значень розмірів, мм;

Dі min, Dі max _ найменше та найбільше граничне значення інтервалів номінальних розмірів, мм.

 

Таблиця 2 - Число одиниць допуску а для квалітетів 5...17

Квалітет q                          
Число одиниць допуску                          

 

При заданому квалітеті q та інтервалі номінальних роз­мірів значення допусків валів та отворів є рівними: TD = Тd. Починаючи з q = 5 (з п'ятого квалітету) допуски при переході до сусіднього, менш точного квалітету, збільшуються на 60 % (тобто U=1,6)

Через кожні 5 квалітетів допуски збільшуються в 10 разів.

З двох меж інтервалу тільки верхня межа (Dі max) включена до даного інтервалу, нижня (Dі min) відноситься до попередньо­го, наприклад, 10 мм відноситься до інтервалу розмірів від 6 до 10 мм.

Принцип вибору допусків

Основне відхилення - це одне з двох відхилень (верхнє або нижнє), що використовується для визначення положення поля допуску відносно нульової лінії (основне відхилення в будь-якому разі розташоване ближче до нульової лінії).

На рисунку 8 дана схема полів допусків валів і визначені положення основних відхилень для кожного з них.

 

 

Рисунок 8 - Поля допусків валів

Згідно з ГОСТ 25346для валів встановлено 28 основних відхилень та стільки ж для отворів, які позначаються:

- для вала маленькими літерами від а до zc;

- для отвору великими літерами від А до ZC.

На рисунку 9 дана схема розташування полів допусків отво­рів та визначені основні відхилення для кожного з них.

Тут та вище літерами j, js, J, Js позначено симетричне роз­ташування поля допуску відносно нульової лінії. В цьому ви­падку числові значення верхнього та нижнього відхилень рівні, але протилежні за знаком (верхнє із знаком "+", а нижнє "—").

 

 

 

Рисунок 9 – Поля допусків отворів

Приклад: D = ø25F7; D = 25 мм - номінальний розмір; основні відхилення - ЕІ = +20 мкм; ЕS = 41 мкм; допуск Т D =21 мкм (для q = 7 квалітету та інтервалу розмірів вище 18 до ЗО).

Схема розташування поля допуску ø25F7 дана на рисунку 10

 


.

 

Рисунок 10 – Схема поля допуску ø25F7

Нанесення розмірів і граничних відхилень на кресленні

Допуски (граничні відхилення) розмірів на кресленнях вка­зують безпосередньо після номінального розміру за наступни­ми варіантами (ГОСТ 2.307):

- умовним (літерним) позначенням основного відхилення з
додаванням номера квалітету:

ø 50Н7;

ø 150р6;

ø15е8;

ø І00Р7 тощо;

- числовими значеннями верхнього і нижнього відхилення
(мм) з їхніми знаками, при цьому верхнє відхилення запису­ють над нижнім:

 

ø15 ; ø150

 

- якщо верхнє чи нижнє відхилення дорівнює нулю, воно
не вказується:

ø60 ; ø80 -0,18

- літерним позначенням поля допуску з вказанням в дуж­ках числових значень граничних відхилень:

 

ø15е8(); ø150р6();

- при симетричному розташуванні відхилень, тобто коли відхилення рівні, але мають різні знаки, їхнє значення нано­сять зі знаком ±:

ø15Js(±0,015).

Варіанти позначення полів допусків і посадок на креслен­нях на рисунку 11:

 

 

Рисунок 11 - Позначення полів допусків посадок на кресленнях

Незазначені граничні відхилення розмірів

Якщо верхнє і нижнє відхилення не зазначені безпосеред­ньо після номінального розміру, а обговорені загальним запи­сом у технічних вимогах креслення, то вони називаються не­зазначеними граничними відхиленнями.

Для лінійних розмірів, крім радіусів заокруглень і фасок, незазначені граничні відхилення призначаються:

- або в квалітетах q=11,12,13 для розмірів < 1 мм;

- або в квалітетах q=11,...,17 для розмірів 1...10 000 мм;

- або за спеціальними класами точності, умовно названими:

"точний" - t 1 -> ІТ12

"середній" - t 2 -> ІТ14

"грубий" - t 3 -> ІТ16

"дуже грубий" - t 4 -> ІТ17

Незазначені граничні відхилення призначають у "тіло" де­талі, тобто однобічними (від номінального розміру в мінус для вала й у плюс для отвору).

Наприклад

-ІТ14 - відповідає граничним відхиленням основного вала 14-го квалітету -h14;

+ІТ14 - відповідає граничним відхиленням основного отво­ру 14-го квалітету +Н14;

Для розмірів елементів, що не відносяться до валів і отво­рів, таких, як:

- уступи;

- глибини;

- відстані між осями;

- відстані від торців деталі до осей отворів тощопризнача­ють тільки симетричні незазначені граничні відхилення, наприклад, ±1Т14

Викладене вище відноситься і до розмірів валів і отворів, незазначені граничні відхилення розмірів яких задані за кла­сами точності. Тоді, наприклад, для "середнього" класу точно­сті умовні позначки записують: для вала, для отвору, для роз­мірів елементів, що не відносяться до отворів і валів.

ГОСТ 25670передбачає 4 варіанти призначення незазначених граничних відхилень лінійних розмірів для класу точно­сті "середній".

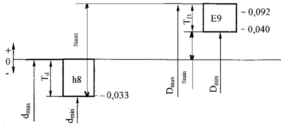
6 Розрахунок і вибір посадок, приклади їх застосування

ПРИКЛАД РІШЕННЯ ЗАДАЧ

Дані з'єднання: ø ;

Розв’язання: ø

1 Посадка в системі вала (вал - основний), отвір в квалітеті 9, вал в квалітеті 8.

 

2 Граничні відхилення:

- отвір ø 25Е9: - вал ø 25h8:

ЕS = + 0,092 мм; еs = 0;

ЕІ = + 0,040 мм (ГОСТ 25347); еі = - 0,033 мм (ГОСТ 25347).

 

3 Граничні розміри:

 

для отвору D max = D + ЕS = 25,000 + 0,092 = 25,092 мм;

D min = D + ЕІ = 25,000 + 0,040 = 25,040 мм;

 

для вала d max = d + еs = 25,000 + 0,000 = 25,000 мм;

d min = d + еі = 25,000 - 0,033 = 24,967 мм.

 

4 Допуск: отвору Т D = ЕS - ЕІ = 0,092 - 0,040 = 0,052 мм =52мкм;

вала Т d = еs - еі = 0,000 – (-0,0330) = 0,033 мм=33мкм

 

5 Одиницю допуску визначаємо за додатком 3.Д.17 [1,с.694],:

і = 1,31 мкм.

Кількість одиниць допуску:

Получений результат перевіряємо за додатком 3.Д.18 [1,с.694],

6 Знаходимо граничні зазори:

 

S max = ЕS - еі = 0,092 – (- 0,033) = 0,125 мм;

S min = ЕІ - еs = 0,040 - 0 = 0,040 мм.

 

7 Допуск зазору Тs = S max -S min = 0,125 - 0,040 = 0,085 мм

 

Оскільки в з'єднанні мають місце лише зазори, то дана посадка відноситься до групи посадок з гарантованим зазором.

 

Зображаємо поля допусків отвору і вала (рисунок 1).

Рисунок 12 - Схема полів допусків з'єднання ø

 

 

Контрольні запитання для самоаналізу

1 Дати визначення дійсного, номінального та граничного
розміру.

2 Охарактеризувати поняття "вал" і "отвір".

3 Дати визначення системи "вала", зобразити схеми полів
допусків різних посадок в цій системі.

4 Дати визначення системи "отвору", зобразити схеми по­лів допусків різних посадок в цій системі.

5 Нанесення розмірів і граничних відхилень на кресленні

6 Незазначені граничні відхилення розмірів

 




Поделиться с друзьями:


Дата добавления: 2014-11-09; Просмотров: 2941; Нарушение авторских прав?; Мы поможем в написании вашей работы!


Нам важно ваше мнение! Был ли полезен опубликованный материал? Да | Нет



studopedia.su - Студопедия (2013 - 2026) год. Все материалы представленные на сайте исключительно с целью ознакомления читателями и не преследуют коммерческих целей или нарушение авторских прав! Последнее добавление




Генерация страницы за: 0.011 сек.