Студопедия

КАТЕГОРИИ:


Архитектура-(3434)Астрономия-(809)Биология-(7483)Биотехнологии-(1457)Военное дело-(14632)Высокие технологии-(1363)География-(913)Геология-(1438)Государство-(451)Демография-(1065)Дом-(47672)Журналистика и СМИ-(912)Изобретательство-(14524)Иностранные языки-(4268)Информатика-(17799)Искусство-(1338)История-(13644)Компьютеры-(11121)Косметика-(55)Кулинария-(373)Культура-(8427)Лингвистика-(374)Литература-(1642)Маркетинг-(23702)Математика-(16968)Машиностроение-(1700)Медицина-(12668)Менеджмент-(24684)Механика-(15423)Науковедение-(506)Образование-(11852)Охрана труда-(3308)Педагогика-(5571)Полиграфия-(1312)Политика-(7869)Право-(5454)Приборостроение-(1369)Программирование-(2801)Производство-(97182)Промышленность-(8706)Психология-(18388)Религия-(3217)Связь-(10668)Сельское хозяйство-(299)Социология-(6455)Спорт-(42831)Строительство-(4793)Торговля-(5050)Транспорт-(2929)Туризм-(1568)Физика-(3942)Философия-(17015)Финансы-(26596)Химия-(22929)Экология-(12095)Экономика-(9961)Электроника-(8441)Электротехника-(4623)Энергетика-(12629)Юриспруденция-(1492)Ядерная техника-(1748)

На листах графической части




Основной надписи и дополнительных граф

Размеры, правила расположения и заполнения

На листах пояснительной записки

Основной надписи и дополнительных граф

Размеры, правила расположения и заполнения

 

Размеры основной надписи первого листа (лист структурного элемента ПЗ «Реферат»), приведены на рисунке Г1.

 

Рисунок Г1 – Основная надпись для ПЗ (первый лист)

 

В основной надписи первого листа приводят следующие данные:

в графе 1 – тему курсового проектам (работы);

в графе 2 – обозначение (шифр) ПЗ, по следующей схеме: УКиММЭ.000000.XXX.ПЗ, где ХХХ – три последние цифры зачетной книжки студента;

в графе 4 – литеру документа: КП – курсовой проект, КР – курсовая работа;

в графе 7 – номер листа ПЗ;

в графе 8 – количество листов ПЗ;

в графе 9 – «СибГТУ, группа 8_-8 ЭФ».

В основной надписи, заполняемой на последующих шести листах ПЗ (рисунок Г2), приводят только обозначение (графа 2) и порядковый номер листа ПЗ (графа 7).

 

Рисунок Г2 – Основная надпись для ПЗ (последующие листы)

 

 


Приложение Д

(обязательное)

1- основная надпись; 2 - дополнительные графы

 

Рисунок Д1 – Расположение основной надписи и дополнительных граф на листах формата больше А4

 

На листах формата А4 по ГОСТ 2.301-2006 основную надпись располагают вдоль короткой стороны листа (рисунок Д2).

1 - основная надпись; 2 - дополнительные графы

 

Рисунок Д2 – Расположение основной надписи и дополнительных граф на листах графической части формата А4

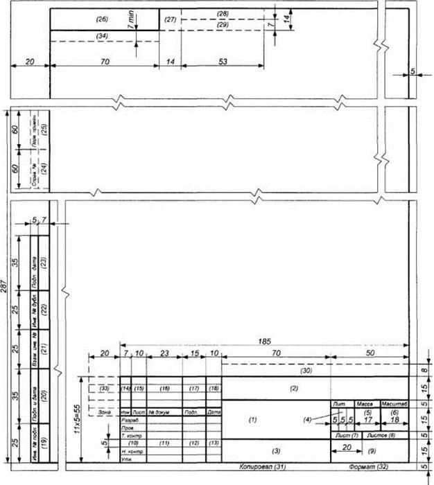
Размеры основной надписи и дополнительных граф представлены на рисунке Д3, правила заполнения основной надписи на листах графической части представлены на рисунке Д4.

 

Рисунок Д3 – Размеры основной надписи и дополнительных граф на листах графической части

 

 

          УКиММЭ.000000.ХХХ.ГЧ (2)
         
         
          Заголовок листа графической части(1) Лит Масса Масштаб
Изм Лист № докум Подп. Дата   (4)   (5) (6)
Разраб. ФИО студ.    
Руковод. ФИО руковод.    
        Лист (7) (5) Листов (8)
        Тема курсового проекта (работы)(3) СибГТУ, группа 8_-__ ЭФ(9)
Н.контр. ФИО н.контр    
Утв. ФИО зав.каф.    
                       

 

Рисунок Д4 – Правила заполнения основной надписи на листах ТГМ

В основной надписи листа графической части приводят:

· в графе 1 – заголовок листа графической части;

· в графе 2 – обозначение (шифр) графической части, по следующей схеме: УКиММЭ.000000.XXX.ГЧ, где ХХХ – три последние цифры зачетной книжки студента;

· в графе 3 – тему курсового проекта (работы);

· в графе 4 – литеру документа КР – курсовая работа; КП – курсовой проект;

· в графе 5 – номер листа графической части;

· в графе 8 – количество листов графической части;

· в графе 9 – СибГТУ, группа 8_-_ ЭФ.





Поделиться с друзьями:


Дата добавления: 2015-06-29; Просмотров: 522; Нарушение авторских прав?; Мы поможем в написании вашей работы!


Нам важно ваше мнение! Был ли полезен опубликованный материал? Да | Нет



studopedia.su - Студопедия (2013 - 2025) год. Все материалы представленные на сайте исключительно с целью ознакомления читателями и не преследуют коммерческих целей или нарушение авторских прав! Последнее добавление




Генерация страницы за: 0.009 сек.