Студопедия

КАТЕГОРИИ:


Архитектура-(3434)Астрономия-(809)Биология-(7483)Биотехнологии-(1457)Военное дело-(14632)Высокие технологии-(1363)География-(913)Геология-(1438)Государство-(451)Демография-(1065)Дом-(47672)Журналистика и СМИ-(912)Изобретательство-(14524)Иностранные языки-(4268)Информатика-(17799)Искусство-(1338)История-(13644)Компьютеры-(11121)Косметика-(55)Кулинария-(373)Культура-(8427)Лингвистика-(374)Литература-(1642)Маркетинг-(23702)Математика-(16968)Машиностроение-(1700)Медицина-(12668)Менеджмент-(24684)Механика-(15423)Науковедение-(506)Образование-(11852)Охрана труда-(3308)Педагогика-(5571)Полиграфия-(1312)Политика-(7869)Право-(5454)Приборостроение-(1369)Программирование-(2801)Производство-(97182)Промышленность-(8706)Психология-(18388)Религия-(3217)Связь-(10668)Сельское хозяйство-(299)Социология-(6455)Спорт-(42831)Строительство-(4793)Торговля-(5050)Транспорт-(2929)Туризм-(1568)Физика-(3942)Философия-(17015)Финансы-(26596)Химия-(22929)Экология-(12095)Экономика-(9961)Электроника-(8441)Электротехника-(4623)Энергетика-(12629)Юриспруденция-(1492)Ядерная техника-(1748)

Конструкция усреднителей




Вопросы:

1. Понятие и назначение усреднителя.

2. Конструктивная схема и принцип действия усреднителя.

3. Схемы подключения и область применения усреднителя.

 

Усреднители предназначены для регулирования количества сточной воды, поступающей на очистные сооружения.

Поступление на очистные сооружения производственных сточных вод с постоянным расходом и усреднённой концентрацией загрязнений повышает эффект механической, биологической и химической очистки.

Включение в состав очистных сооружений резервуаров – усреднителей сточных вод позволяет продлить срок службы сооружений.

 

Регулирование расхода можно обеспечить несколькими путями:

1) Когда резервуары располагают на основном канале перед отстойниками и все сточные воды проходят через усреднитель.

2) Усреднители устанавливают на боковых линиях, параллельно основному технологическому каналу, и в них отводят лишь избыточный (сверхрасчётный) расход сточных вод (рис. 1)

Но в обоих случаях снижение расчётных расходов достигается до среднесуточного уровня.

Применение усреднителей, выравнивающие сверхрасчётные расходы и концентрацию сточных вод, позволяет разрабатывать более экономичные проекты очистных сооружений, принимая для расчёта усреднённые данные.

По методы Н. Н. Лаптева рассматривается сначала работа сооружения, формирующего подачу воды, характер притока сточных вод может быть задан в графической или табличной форме как функция времени Q(t). За интервал времени dt в усреднитель поступает объём воды Q(t) dt, считая расход на выходе Q 0 - постоянна (const), за этот же период времени имеет выход сточной воды в объёме Q 0 dt.

Разность между притоком и выходом выражается в приращении объёма воды в усреднителе dW

Из выше сказанного следует уравнение баланса объёмов:

Q(t) * dt – Q 0 *dt – dW = 0 (1)

Приращение объёма воды в усреднителе происходит только за счёт приращения глубины т.е.

dW = ΩdH (2)

(3)

Из уравнения (3) видно, что регулирование расхода воды происходит в объёме ограниченном площадью зеркала воды и диапазоном колебания уровня воды.

Для усреднения сточных вод по концентрации загрязнений в усреднителях любой конструкции вода должна перемешиваться с помощью мешалок, насосов и т.д.

Но наиболее удобными в эксплуатации являются перфорированные трубчатые барьеры.

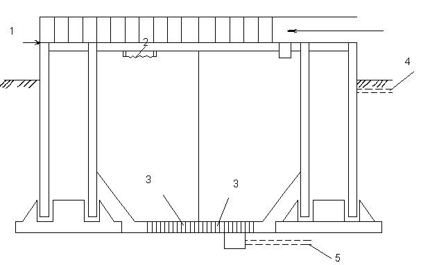
Рисунок 2

1. Подводящий лоток

2. Воздухоотвод

3. Барботеры

4. Отводящий лоток

5. Трубопровод для опорожнения

 

Строительный материал для усреднителей выбирают с учётом химического состава сточных вод. При наличии в производственной сточной воде взвешенных веществ барботеры должны препятствовать их осаждению.

При перемешивании помощью сжатого воздуха интенсивность аэрации зависит от концентрации взвешенных веществ и их гидравлической крупности и изменится в пределах 5 - 12 м3/ч на 1м барботера.

Для усреднения можно применять радиальный отстойник-усреднитель с непрерывным удалением осадка.

В этом отстойнике совмещены процессы отстаивания и усреднения производственной сточной воды по концентрации загрязнений. Диаметр отстойника-усреднителя 40 м. Пропускная способность 1125 м3/час, продолжительность усреднения 4 часа, частота вращения фермы с распределительным жёлобом 2- 4 часа.

усреднение и распределение сточной жидкости осуществляется с помощью подвижного распределительного лотка, вращающегося вокруг центра отстойника, спиральный скребок, передвигаясь по днищу отстойника, сгребает осадок и перемещает его к центру в жёлоб (донный).

Например, красильно-отделочные фабрики:

Усреднители сточных вод от них ёмкостью соответствующей 4 – 8-ми часовому притоку производственных сточных вод.

 

Контрольные вопросы:

1. Понятие и назначение усреднителя.

2. Конструктивная схема и принцип действия усреднителя.

3. Схемы подключения и область применения усреднителя.

 

УРОК №3




Поделиться с друзьями:


Дата добавления: 2014-01-06; Просмотров: 3580; Нарушение авторских прав?; Мы поможем в написании вашей работы!


Нам важно ваше мнение! Был ли полезен опубликованный материал? Да | Нет



studopedia.su - Студопедия (2013 - 2026) год. Все материалы представленные на сайте исключительно с целью ознакомления читателями и не преследуют коммерческих целей или нарушение авторских прав! Последнее добавление




Генерация страницы за: 0.008 сек.