Студопедия

КАТЕГОРИИ:


Архитектура-(3434)Астрономия-(809)Биология-(7483)Биотехнологии-(1457)Военное дело-(14632)Высокие технологии-(1363)География-(913)Геология-(1438)Государство-(451)Демография-(1065)Дом-(47672)Журналистика и СМИ-(912)Изобретательство-(14524)Иностранные языки-(4268)Информатика-(17799)Искусство-(1338)История-(13644)Компьютеры-(11121)Косметика-(55)Кулинария-(373)Культура-(8427)Лингвистика-(374)Литература-(1642)Маркетинг-(23702)Математика-(16968)Машиностроение-(1700)Медицина-(12668)Менеджмент-(24684)Механика-(15423)Науковедение-(506)Образование-(11852)Охрана труда-(3308)Педагогика-(5571)Полиграфия-(1312)Политика-(7869)Право-(5454)Приборостроение-(1369)Программирование-(2801)Производство-(97182)Промышленность-(8706)Психология-(18388)Религия-(3217)Связь-(10668)Сельское хозяйство-(299)Социология-(6455)Спорт-(42831)Строительство-(4793)Торговля-(5050)Транспорт-(2929)Туризм-(1568)Физика-(3942)Философия-(17015)Финансы-(26596)Химия-(22929)Экология-(12095)Экономика-(9961)Электроника-(8441)Электротехника-(4623)Энергетика-(12629)Юриспруденция-(1492)Ядерная техника-(1748)

Камерно-столбовые системы




Особенностью этих систем разработки является систематическое чередование параллельных выемочных камер и постоянных, как правило, поддерживающих целиков.

Камерно-столбовые системы связаны с оставлением в целиках более 15 - 20 % запасов полезного ископаемого. При разработке неценных полезных ископаемых, таких, например, как соль, в целиках оставляют до 50—60 % всех запасов.

Условия применения системы

Группа Мощность(m), м Угол падения, (a),град. Ценность Устойчивость
руда вмещающие породы
Камерно-столбовые системы разработки 2-30 Горизонт. пологого падения Малоценные, ср. ценные Устойчивые Устойчивые

Варианты камерно-столбовой системы различают по способам отбойки руды и форме забоя, транспортировки руды и форме целиков. Выработки основного горизонта располагают либо по руде на уровне почвы пласта, либо в подстилающих, породах на глубине 4-10 м от почвы пласта.

Нормативные показатели параметров выемочных блоков

Система разработки Мощность рудного тела, м Угол падения рудного тела, град Длина блока по простиранию (ширина панели) м Высота блока (этажа) длина (панели), м Примечание
Камерно-столбовая 1,5-6 6- 18 1,5-6 6-18 0-12 0- 12 12-35 12-35 100- 150 100-150 150-200 150-200 50-60 60-90 Глубина разработки до 200 - 250 м Ширину камер, размеры поддерживающих и барьерных целиков принимать на основе исследований и данных практики. В случае отсутствия исследований и аналогов расчет целиков производить на полный вес налегающих пород
Панельно-столбовая 1,5-6 6- 18 0- 12 0- 12 100- 120 100-150 150-300 200 - 400

Камерно-столбовая система разработки с применением самоходного оборудования. Представленный на рис. 14 вариант применяется при разработке месторождения с мощностью рудной залежи 3-8 м. Руда отрабатывается сплошным по вертикали забоем.

Подготовка. Между главным откаточным штреком 1 и вентиляционным штреком 2 на расстоянии 150 м располагаются панельные штреки 3. Из них через каждые 40 м проводят заезды 4, которые по мере выемки панели сбивают разрезными штреками 5.

Очистная выемка начинается с образования отрезной щели путем отбойки руды в кровле и с боков разрезного штрека.

Для улучшения проветривания линии забоев придается уступная форма. При бурении шпуров применяют самоходные бурильные установки марки СБУ-2М в забоях высотой до 5 м и СБУ-2К в забоях высотой до 8 м. Диаметр шпуров 42 мм, глубина 2,3— 3,8 м. Шпуры заряжаются с помощью пневматической машины ПМЗШ-2.

Погрузка отбитой руды в самоходные вагоны 7 марки МОАЗ осуществляется погрузочными машинами 8 марки ПНБ-4, а при высоте камеры 6,5-8 м - подземным экскаватором ЭП-1 или ковшовыми погрузчиками ПДМ-8. Производительность погрузки 300-500 т/смену. Для зачистки почвы применяется бульдозер БПД-2Д.

Поддержание кровли осуществляется оставлением ленточных целиков 9 и внутрипанельных цилиндрических целиков 10 диаметром 6-8 м. Кровля камер крепится железобетонными анкерами с бурильной установки СП-8А, а в необходимых случаях кровлю покрывают торкрет-бетоном толщиной 35—40 мм.

Рис. 14 Камерно-столбовая система разработки с применением самоходного оборудования

Разбивка блока на элементы

Система разработки Элементы блока
  Камера (панель) Целики
Камерно-столбовая Камера или панель Панельные целики, междукамерные отдельные или ленточные регулярно оставляемые целики

Методы отработки элементов блока

Система разработки Элементы блока
Камера (панель) Междукамерный целик Междуэтажный целик
Сплошная Открыта Не отрабатывается
Камерно столбовая Открыта Не отрабатывается  
Камера заполнена тверд. закладкой Открытая камера

Примерные схемы механизации основных и вспомогательных производственных процессов при отработке элементов блока

Система разработки Элемент блока Основные производственные процессы Вспомогательные процессы
Буров работы Выпуск и погрузка Доставка Поддержание очистного пространства Заряжение Оборка кровли или подкрепление кровли и блоков Зачистка
Камерно-столбовая Камера или панель СБК ПР КП ПМ Э ПДМ СК СВ АС ПДМ СК МЗШ СТК ТП Б
Панельные целики, отдельные регулярно оставляемые целики Не отрабатываются -
Ленточные регулярно оставлявмые целики СБК ПР КП ПМ СВ Камера заполнена твердеющей закладкой МЗШ СТК ПТ
ПДМ ПДМ
СК СК
                             

 

ТЭП системы разработки

Система разработки Технологические особенности систем Разработки Показатели
Производи тельность труда рабочего по системе т/см Себестоимость добычи, руб/т Потери % Разубоживание,%
Камерно -столбовая С почвоуступной выемкой   0.6 15 - 25 3 - 5
С потолкоуступной выемкой   0.72 15 - 25 3 - 5
Доставкой силой взрыва   1.14 20 - 25  
Отбойкой глубокими скважинами   0.73 15 - 20  
С применением самоходного оборудования 40 - 60 0.62 – 0.48 15 - 20 3 - 5
При отработке калийных солей 100 - 200 0.36 – 0.23 40 - 60 2 - 4

Варианты.

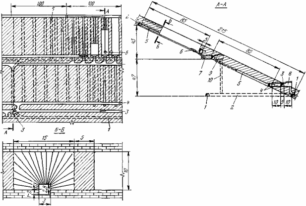
Камерно-столбовая система с самоходным оборудованием для наклонно-залегающих рудных тел при мощности рудного тела 10 м и угле падения 10-20° (рис.15).

Этаж высотой 90 м разбивается на два подэтажа. На откаточном горизонте проводят рудный и полевой штреки 1 и орты 2. В основании каждого подэтажа проводят транспортные штреки 3 и штреки подсечки 4. По центру каждой камеры проходят буровой восстающий 5, из которого бурильной установкой СБУ-2М бурят веерные комплекты скважин. После взрывания и проветривания через буровой восстающий на тросе в камеру спускают бульдозер 6 марки БПДУ-2 с дистанционным управлением. Он зачищает почву пласта, перемещая руду к погрузочным ортам. Производительность бульдозера 250-300 т/смену.

Транспортно-погрузочной машиной 7 руда транспортируется по транспортным штрекам к разгрузочным камерам 5 и 9 и через восстающий 10 и рудоспуск (на нижнем подэтаже) поступает в транспортные средства на откаточном горизонте.

При ширине камер 15 м оставляют ленточные целики толщиной 5 м.

Производительность труда забойной группы составляет 50 т/смену.

При углах падения свыше 30-35° зачистки почвы не требуется, так как руда полностью отбрасывается к выпускным вы работкам, направленным по падению залежи взрывом, т. е. имеет место переход к варианту камерно-столбовой разработки с доставкой руды силой взрыва.

Обычно послойное взрывание скважин начинают после полного обуривания блока. Взрывные работы в соседних блоках ведут с опережением на несколько метров, что способствует лучшей устойчивости кровли и целиков. Скважины в веере взрывают с миллисекундными замедлениями.

 

Рис. 15. Камерно-столбовая система разработки для наклонного рудного тела

 




Поделиться с друзьями:


Дата добавления: 2015-05-29; Просмотров: 4611; Нарушение авторских прав?; Мы поможем в написании вашей работы!


Нам важно ваше мнение! Был ли полезен опубликованный материал? Да | Нет



studopedia.su - Студопедия (2013 - 2026) год. Все материалы представленные на сайте исключительно с целью ознакомления читателями и не преследуют коммерческих целей или нарушение авторских прав! Последнее добавление




Генерация страницы за: 0.012 сек.