Студопедия

КАТЕГОРИИ:


Архитектура-(3434)Астрономия-(809)Биология-(7483)Биотехнологии-(1457)Военное дело-(14632)Высокие технологии-(1363)География-(913)Геология-(1438)Государство-(451)Демография-(1065)Дом-(47672)Журналистика и СМИ-(912)Изобретательство-(14524)Иностранные языки-(4268)Информатика-(17799)Искусство-(1338)История-(13644)Компьютеры-(11121)Косметика-(55)Кулинария-(373)Культура-(8427)Лингвистика-(374)Литература-(1642)Маркетинг-(23702)Математика-(16968)Машиностроение-(1700)Медицина-(12668)Менеджмент-(24684)Механика-(15423)Науковедение-(506)Образование-(11852)Охрана труда-(3308)Педагогика-(5571)Полиграфия-(1312)Политика-(7869)Право-(5454)Приборостроение-(1369)Программирование-(2801)Производство-(97182)Промышленность-(8706)Психология-(18388)Религия-(3217)Связь-(10668)Сельское хозяйство-(299)Социология-(6455)Спорт-(42831)Строительство-(4793)Торговля-(5050)Транспорт-(2929)Туризм-(1568)Физика-(3942)Философия-(17015)Финансы-(26596)Химия-(22929)Экология-(12095)Экономика-(9961)Электроника-(8441)Электротехника-(4623)Энергетика-(12629)Юриспруденция-(1492)Ядерная техника-(1748)

Организация строительства покрытий из горячих и терлых асфальтобетонных смесей




 

Успешное строительство асфальтобетонных покрытий, достиже­ние наибольшей производительности отряда и использования ма­шин, экономное расходование материалов зависят от качества про­екта производства работ (ППР), основным элементом которого является технологическая схема. При ее составлении нужно в пер­вую очередь тщательно учесть местные условия, наличие машин, расположение и мощность АБЗ, конструкцию покрытия и количест­во смеси, технологию работ и многие другие факторы, влияющие на организацию работ.

Частный поток, составляющий организационную схему, включа­ет три подразделения: первое ведет подготовительные работы, вто­рое— укладку и уплотнение нижнего слоя, третье — укладку и уп­лотнение верхнего слоя. При необходимости придания шероховато­сти и укладки слоя износа четвертое звено выполняет эти работы.

Каждое звено работает на захватке, длину которой определяют из расчета выполнения намеченных в смену работ с учетом общего годового плана и наиболее полного использования машин. В пер­вую очередь устанавливают оптимальную длину захватки основно­го звена, которое укладывает и уплотняет верхний слой. Учитывая производительность основной машины этого звена — асфальтоукладчика и стремясь к наибольшему его использованию, определяют состав и режим работы остальных машин Работы предусматрива­ют, как правило, в три смены: в первую смену укладывают верхний слой, во вторую — нижний слой, в третью проводят техническое об­служивание машин, установок и систем автоматического управ­ления.

В целях наиболее полного использования асфальтоукладчика и других машин с учетом укладки верхнего слоя только в светлые ча­сы должна быть принята определенная организация работ. На АБЗ работа должна начинаться раньше, чем на линии, чтобы первые ав­томобили-самосвалы доставили асфальтобетонную смесь к началу работы асфальтоукладчика. Начало и конец смены для асфальто­укладчика и катков назначают различными.

В этом случае асфальтоукладчик начнет работать, когда пер­вые автомобили-самосвалы подадут смесь, а заканчивать раньше, чтобы до конца смены катки успели уплотнить уложенную смесь. При этом, очевидно, возможное время работы асфальтоукладчика за смену составит

где Тсм— число часов в смене; П — время от начала смены до фактического начала работы асфальтоукладчика, У — время, необ­ходимое для уплотнения последней партии смеси (от 0,75 до 1,5 ч).

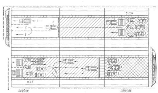
На рис. 64 показан технологический план потока по строитель­ству двухслойного асфальтобетонного покрытия. Рабочая зона за­нимает три захватки, на которых работы идут в две смены. В пер­вую смену на первой захватке выполняют подготовительные рабо­ты, на второй работы не проводят, на третьей укладывают верхний слой покрытий. Во вторую смену (на первой захватке, подготовлен­ной в первую смену, укладывают нижний слой покрытия, на второй выполняют подготовительные работы для укладки в следующую смену верхнего слоя, на третьей заканчивается уплотнение верхне­го слоя, уложенного в первую смену. Тяжелые катки, начавшие ра­боты несколько позже, чем асфальтоукладчик, заканчивают свою работу, когда уже начались работы второй смены. Укладка смеси как для верхнего, так и для нижнего слоя происходит двумя ас­фальтоукладчиками. Производительность двух асфальтоукладчиков очень высокая, поэтому длина захватки достигает 800 м/смену.

При разработке ППР по строительству покрытия учитывают организацию работ на АБЗ. При одновременной укладке верхнего и нижнего слоев на АБЗ должны быть смесители, из которых одни готовят смесь для нижнего, а другие для верхнего слоя. При уклад­ке в первую смену верхнего слоя, а во вторую только нижнего все смесители могут быть ориентированы на приготовление смеси одно­го вида. При разной толщине слоев, что характерно для современных конструкций (см. рис. 62), для верхнего слоя может потребо­ваться значительно меньше смеси, чем для нижнего. Соответствен-_ но может быть различное число специализированных смесителей или отдельных из них, которые в одну из смен не работают. Поэто­му может быть различие в работе на линии.

 

 

 

Рис. 64. Технологическая схема строительства двухслойного асфальтобетонного

 

Слои большой толщины (для полного использования смесите­лей), укладывают в обе смены.

При составлении ППР также важное значение имеет принятое количество асфальтоукладчиков. Укладка каждого слоя на всю ши­рину требует двух-трех асфальтоукладчиков. Такая работа для по­вышения качества покрытия целесообразна, но требует большую длину сменной захватки и соответственно значительного повы­шения производительности заводов и увеличение количества смесителей.

Учитывая ограничение расстояния перевозки горячих и теплых смесей, рассчитывают расстояния между заводами и их число. Для сохранения числа смесителей и других машин предусматривают перемещение заводов с одного места на другое. Чтобы в этот пери­од не было простоя у отрядов по укладке, в ППР предусматривают их работу на других объектах. Комплексная механизация и автоматизация рабочих процессов могут быть осуществлены в наибольшей мере при работе с комплек­тами ДС-110. Поэтому производство работ по строительству дорог с асфальтобетонными покрытиями как на магистралях, так и на всех объектах с большими объемами работ следует предусматри­вать с применением комплектов ДС-110.

 




Поделиться с друзьями:


Дата добавления: 2015-06-04; Просмотров: 661; Нарушение авторских прав?; Мы поможем в написании вашей работы!


Нам важно ваше мнение! Был ли полезен опубликованный материал? Да | Нет



studopedia.su - Студопедия (2013 - 2026) год. Все материалы представленные на сайте исключительно с целью ознакомления читателями и не преследуют коммерческих целей или нарушение авторских прав! Последнее добавление




Генерация страницы за: 0.01 сек.