Студопедия

КАТЕГОРИИ:


Архитектура-(3434)Астрономия-(809)Биология-(7483)Биотехнологии-(1457)Военное дело-(14632)Высокие технологии-(1363)География-(913)Геология-(1438)Государство-(451)Демография-(1065)Дом-(47672)Журналистика и СМИ-(912)Изобретательство-(14524)Иностранные языки-(4268)Информатика-(17799)Искусство-(1338)История-(13644)Компьютеры-(11121)Косметика-(55)Кулинария-(373)Культура-(8427)Лингвистика-(374)Литература-(1642)Маркетинг-(23702)Математика-(16968)Машиностроение-(1700)Медицина-(12668)Менеджмент-(24684)Механика-(15423)Науковедение-(506)Образование-(11852)Охрана труда-(3308)Педагогика-(5571)Полиграфия-(1312)Политика-(7869)Право-(5454)Приборостроение-(1369)Программирование-(2801)Производство-(97182)Промышленность-(8706)Психология-(18388)Религия-(3217)Связь-(10668)Сельское хозяйство-(299)Социология-(6455)Спорт-(42831)Строительство-(4793)Торговля-(5050)Транспорт-(2929)Туризм-(1568)Физика-(3942)Философия-(17015)Финансы-(26596)Химия-(22929)Экология-(12095)Экономика-(9961)Электроника-(8441)Электротехника-(4623)Энергетика-(12629)Юриспруденция-(1492)Ядерная техника-(1748)

Нанесение размеров (ГОСТ 2.307- 68)




Размеры на чертеже указывают размерными числами и размерными линиями. Размерные линии выполняются в виде прямолинейного отрезка или в виде дуги окружности с одной или двумя стрелками (рисунок 13), которые вычерчивают одинаковыми для всего чертежа.

Рис. 13

 

Линейные размеры на чертежах указывают в мм, без обозначения единиц измерения. Условные размеры указываются в градусах, минутах с обозначением единиц измерения. Общее количество размеров должно быть минимальным, но достаточным для изготовления и контроля изделия. Размеры одного и того же элемента на разных изображениях повторять не допускается.

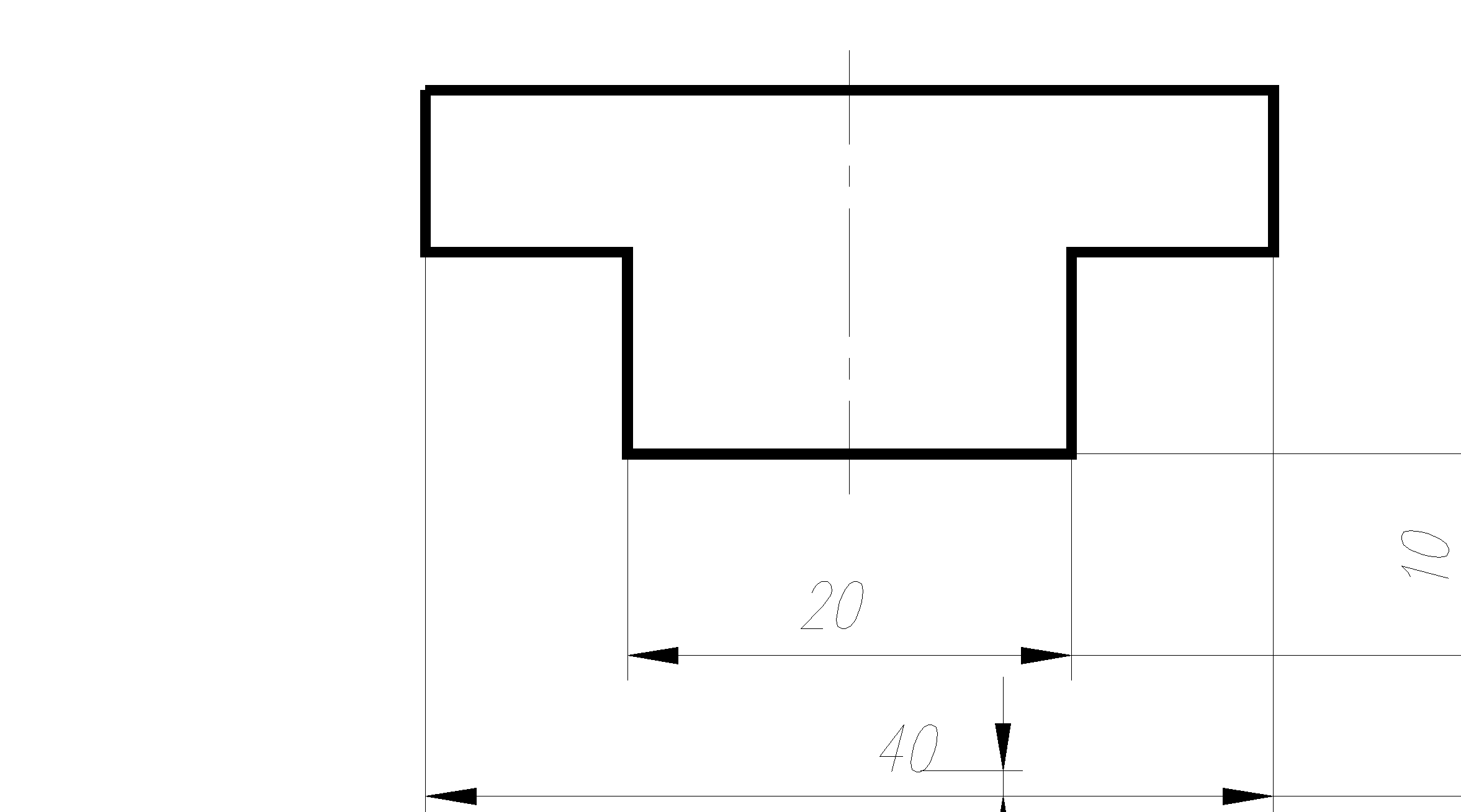
Размеры, относящиеся к одному и тому же конструктивному элементу группируют в одном месте, располагая их на том изображении, на котором геометрическая форма данного элемента показана наиболее полно (рисунок 14).

Рис. 14

Расстояние размерной линии от параллельной ей линии контура должна быть 10 мм, а также расстояние между параллельными размерными линиями должно быть не менее 7 мм (рисунок 15, а). Размерные числа наносят над размерной линией возможно ближе к его середине. Высоту цифр принимают не менее 3,5 мм. Зазор между размерным числом и размерной линией должен быть около 1 мм. Выносные линии должны выходить за концы стрелок размерных линий на 1…5 мм (рисунок 15, б).

а) б)

Рис. 15

 

Размерные числа линейных размеров при различных наклонах размерных линий располагают, как показано на рисунке 16, а, а для угловых – на рисунке 16, б.. Для размеров, попавших в заштрихованные зоны, размерные числа наносят на горизонтальных полках линий выносок.

 

а) б)

Рис. 16

 

Размерные линии желательно наносить вне контура изображения Размерные линии допускается проводить непосредственно к линиям видимого контура, осевым, центровым и другим линиям. Однако в качестве размерных линий не допускается использовать линии контура, осевые, центровые и выносные линии.

Для написания размерного числа, при недостатке места над размерной линией, рекомендуется размеры наносить на продолжении размерной линии, или на полках линий-выносок; если недостаточно места для нанесения стрелок, то их наносят снаружи от выносных линий (рисунок 17).

Размерные числа не допускается разделять или пересекать какими-либо линиями чертежа. Не допускается разрывать линии контура для нанесения размерного числа. В месте нанесения размерного числа осевые, центровые линии и линии штриховки прерываются (рисунок 18).

Размеры, не подлежащие выполнению по данному чертежу и указываемые для большего удобства пользования чертежом, называют справочными. Справочные размеры на чертеже отличают знаком *, а в технических требованиях записывают: «Размеры для справок».

Рис.17

 

Рис. 18

 

Размеры не допускается наносить на чертежах в виде замкнутой цепи, за исключением случаев, когда один из размеров указан как справочный.

Следует избегать пересечения размерных линий с другими размерными и выносными.

Если вид или разрез симметричного предмета или отдельно симметрично расположенных элементов изображаются только до оси симметрии или с обрывом, то размерные линии, относящиеся к этим элементам, проводят с обрывом и обрыв размерной линии делают дальше оси или линии обрыва предмета (рисунок 19).

Рис. 20

 

При изображении детали с разрывом размерную линию не прерывают.

Если наносят несколько параллельных или концентрических размерных линий на небольшом расстоянии друг от друга, то размерные числа над ними следует располагать в шахматном порядке (рисунок 21).

Рис. 21

 

Перед размерным числом диаметра наносят знак Ø. Если на детали имеются несколько одинаковых по размеру отверстий, то достаточно размер нанести один раз с указанием количества одинаковых элементов. Перед размерным числом радиуса пишут букву R. Размерную линию проводят по направлению к центру и ограничивают одной стрелкой, упирающейся в дугу (рисунок 22). Если не надо ставить размеры, определяющие положение центра дуги окружности, то размерную линию можно не доводить до центра и смещать ее относительно центра (рисунок 23). Радиусы скруглений, размеры которых в масштабе чертежа 1 мм и менее, на чертеже не изображаются и размеры их наносят(см рис. 23). Размеры одинаковых радиусов указывают на общей полке.

Рис.22

Рис. 23

 

Размеры квадрата наносят, как показано на рисунке 24. Высота знака квадрата равняется высоте размерных чисел на чертеже.

Размеры фасок под углом 45˚ наносят, как показано на рисунке 25. Если размер фаски в масштабе чертежа 1 мм и менее, то ее размер указывают на полке линии-выноски, проведенной от грани.

Размеры фасок под другими углами указывают по общим правилам линейными и угловыми размерами или двумя линейными размерами.

Рис.24

 

Рис. 25

 

Рис.26




Поделиться с друзьями:


Дата добавления: 2015-07-13; Просмотров: 1233; Нарушение авторских прав?; Мы поможем в написании вашей работы!


Нам важно ваше мнение! Был ли полезен опубликованный материал? Да | Нет



studopedia.su - Студопедия (2013 - 2026) год. Все материалы представленные на сайте исключительно с целью ознакомления читателями и не преследуют коммерческих целей или нарушение авторских прав! Последнее добавление




Генерация страницы за: 11.342 сек.