Студопедия

КАТЕГОРИИ:


Архитектура-(3434)Астрономия-(809)Биология-(7483)Биотехнологии-(1457)Военное дело-(14632)Высокие технологии-(1363)География-(913)Геология-(1438)Государство-(451)Демография-(1065)Дом-(47672)Журналистика и СМИ-(912)Изобретательство-(14524)Иностранные языки-(4268)Информатика-(17799)Искусство-(1338)История-(13644)Компьютеры-(11121)Косметика-(55)Кулинария-(373)Культура-(8427)Лингвистика-(374)Литература-(1642)Маркетинг-(23702)Математика-(16968)Машиностроение-(1700)Медицина-(12668)Менеджмент-(24684)Механика-(15423)Науковедение-(506)Образование-(11852)Охрана труда-(3308)Педагогика-(5571)Полиграфия-(1312)Политика-(7869)Право-(5454)Приборостроение-(1369)Программирование-(2801)Производство-(97182)Промышленность-(8706)Психология-(18388)Религия-(3217)Связь-(10668)Сельское хозяйство-(299)Социология-(6455)Спорт-(42831)Строительство-(4793)Торговля-(5050)Транспорт-(2929)Туризм-(1568)Физика-(3942)Философия-(17015)Финансы-(26596)Химия-(22929)Экология-(12095)Экономика-(9961)Электроника-(8441)Электротехника-(4623)Энергетика-(12629)Юриспруденция-(1492)Ядерная техника-(1748)

Проектирование механизмов переключения блоков




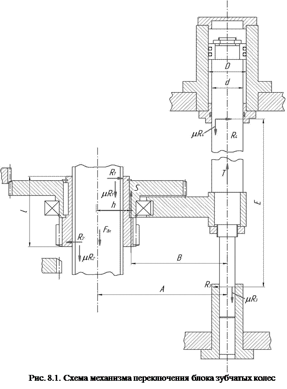
Блоки зубчатых колес перемещаются при смене механических диапазонов частот вращения шпинделя. Обычно блоки передвигаются с помощью переводки – вилки и гидроцилиндра. Типовая схема такого устройства приведена на рис. 8.1.

 
 

Расчеты при проектировании производятся с целью определения требуемых параметров гидроцилиндра. Исходными данными являются сила веса перемещаемого блока Fбл, геометрические размеры и ориентация направления перемещения (горизонтальное или вертикальное).

Для блока, перемещаемого в горизонтальном направлении, требуемое усилие на переводке S (см. рис. 8.1.)

Здесь Fбл=120 Н – сила веса блока;

m=0,25 – коэффициент трения;

h=65мм – расстояние от точки приложения силы S до оси вала;

l =92мм – длина ступицы.

Если блок перемещается в вертикальном направлении, формула для расчета усилия S принимает вид

.

Очевидно, что при проектировании следует стремиться к уменьшению соотношения h/l, т.е. увеличивать l и уменьшать h. С увеличением соотношения h/l, как видно из приведенных формул, знаменатель уменьшается, и требуемое усилие S растет. При h/l» 1 возникает опасность заклинивания механизма.

Требуемое усилие на штоке гидроцилиндра Т (рис.8.1.)

Т=k×S(1+2μ )=1,5∙63,8×(1+2∙0,25 )=112Н.

Здесь: К=1,5…2,0 – коэффициент запаса; меньшее значение принимают при горизонтальном перемещении, большее – при вертикальном;

B=85мм – расстояние от точки приложения силы S до оси штока гидроцилиндра;

Е=250мм – расстояние между зонами направляющих втулок, воспринимающими опрокидывающий момент от усилия S.

Очевидно, что при проектировании следует стремиться к уменьшению соотношения B/E, а также к возможной меньшей величине межосевого расстояния А.

Требуемое давление в гидроцилиндре

где - площадь поршня в штоковой полости;

D=40мм, d=32мм – диаметры поршня и штока.

При дипломном проектировании требуемое давление следует определять с учетом сил трения в уплотнениях по рекомендациям [16].

Величина хода поршня гидроцилиндра должна обеспечивать требуемый ход перемещаемого блока.




Поделиться с друзьями:


Дата добавления: 2014-12-07; Просмотров: 559; Нарушение авторских прав?; Мы поможем в написании вашей работы!


Нам важно ваше мнение! Был ли полезен опубликованный материал? Да | Нет



studopedia.su - Студопедия (2013 - 2026) год. Все материалы представленные на сайте исключительно с целью ознакомления читателями и не преследуют коммерческих целей или нарушение авторских прав! Последнее добавление




Генерация страницы за: 0.009 сек.