Студопедия

КАТЕГОРИИ:


Архитектура-(3434)Астрономия-(809)Биология-(7483)Биотехнологии-(1457)Военное дело-(14632)Высокие технологии-(1363)География-(913)Геология-(1438)Государство-(451)Демография-(1065)Дом-(47672)Журналистика и СМИ-(912)Изобретательство-(14524)Иностранные языки-(4268)Информатика-(17799)Искусство-(1338)История-(13644)Компьютеры-(11121)Косметика-(55)Кулинария-(373)Культура-(8427)Лингвистика-(374)Литература-(1642)Маркетинг-(23702)Математика-(16968)Машиностроение-(1700)Медицина-(12668)Менеджмент-(24684)Механика-(15423)Науковедение-(506)Образование-(11852)Охрана труда-(3308)Педагогика-(5571)Полиграфия-(1312)Политика-(7869)Право-(5454)Приборостроение-(1369)Программирование-(2801)Производство-(97182)Промышленность-(8706)Психология-(18388)Религия-(3217)Связь-(10668)Сельское хозяйство-(299)Социология-(6455)Спорт-(42831)Строительство-(4793)Торговля-(5050)Транспорт-(2929)Туризм-(1568)Физика-(3942)Философия-(17015)Финансы-(26596)Химия-(22929)Экология-(12095)Экономика-(9961)Электроника-(8441)Электротехника-(4623)Энергетика-(12629)Юриспруденция-(1492)Ядерная техника-(1748)

Задвижки




Технические характеристики, конструкции задвижек

Задвижка – это запорное устройство, в котором проход перекрывается поступательным движением затвора перпендикулярно движению потока транс­портируемой среды. Задвижки широко применяют для перекрытия потоков газообразных и жидких сред в трубопроводах с диаметрами условных проходов от 50 до 2 000 мм при рабочих давлениях 0,4–20 МПа и температуре среды до 450 °С. Ниже представлены различные виды задвижек (рис. 24, 25).

На нефтепроводах обычно применяют стальные клиновые задвижки с ручным или электрическим приводом.

В сравнении с другими видами запорной арматуры задвижки имеют следующие преимущества: незначительное гидравлическое сопротивление при полностью открытом проходе; отсутствие поворотов потока рабочей среды; возможность применения для перекрытия потоков среды большой вязкости; простота обслуживания; относительно небольшая строительная длина; возможность подачи среды в любом направлении.

Рис. 24. Задвижка клиновая Рис. 25. Задвижка клиновая

с ручным управлением: с гладким сквозным отверстием:

с проходом Dn = 50–600 мм из ковкого чугуна с проходом

и давлением Рn = 1,6–10 МПа а) Dy = 250–600 мм; б) 50–200 мм


Механика, нефтепромысловое оборудование



 


Рис. 26. Общий вид задвижки стальной клиновой с выдвижным шпинделем и ручным управлением


-&

22 4 15 11 13 2 19 12 14
 

21

 

18 20

 

17 3

3А 1А

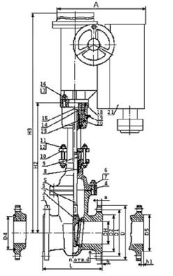
Рис. 27. Задвижка клиновая с выдвижным шпинделем:

1 - корпус; 1А - корпус - уплотнительная поверхность; 2 - крышка; 2А - крышка -

уплотнительная поверхность; 3 - клин; 3А - клин - уплотнительная поверхность;

4 - хомут; 5 - гайка хомута; 6 - шпиндель; 7 - подвес; 8 - резьбовое кольцо;

9 - втулка; 10 - втулка сальника; 11 - крышка сальника; 12 - шпилька;

13 - винт; 14, 15, 16 - гайка; 17 - штифт; 18 - кольцо сальника; 19 - уплотнение;

20 - кольцо сальника; 21 - ручной маховик; 22 - масленка


Справочник мастера по добыче нефти, газа и конденсата



 


 


Рис. 28. Общий вид задвижки стальной клиновой с невыдвижным шпинделем и ручным управлением

 

25 20 21 22 6

 

 




15 11

 

8 18

 

19 12 14

 


Рис. 29. Задвижка стальная литая клиновая с невыдвижным шпинделем и ручным управлением:

1 – корпус; 1А – корпус – уплотнительная поверхность; 2 – крышка; 3 – клин;

3А – клин – уплотнительная поверхность; 6 – шпиндель; 7 – гайка шпинделя; 8 – корпус

сальника; 10 – втулка сальника; 11 – крышка сальника; 12 – шпилька; 13 – винт;

14, 15, 16 – гайка; 17 – шайба; 18, 19 – уплотнение; 20, 21 – кольцо сальника;

22 – прокладка; 25 – ручной маховик


Механика, нефтепромысловое оборудование

Рис. 30. Задвижка клиновая электроприводная (ЗКЛП) Рn 1,6; 4,0; 6,3; 16 МПа:

1 – корпус; 2 – клин; 3 – шпиндель; 4 – прокладка; 5 – крышка; 6 – гайка; 7 – шпилька; 8 – набивка сальника; 9 – втулка сальника; 10 – фланец сальника; 11 – гайка; 12 – шпилька; 13 – вкладыш; 14 – вставка; 15 – втулка кулачковая; 16 – гайка; 17 – шпилька; 18 – винт; 19 – масленка; 20 – подшипник; 21 – электропривод

Недостатки, общие для всех конструкций задвижек, следующие: неболь­шой допускаемый перепад давлений на затворе (по сравнению с вентиля­ми), невысокая скорость срабатывания затвора, возможность получения гидравлического удара в конце хода, большая высота, трудности ремонта изношенных уплотнительных поверхностей затвора при эксплуатации.

Ниже представлены разнообразные конструкции задвижек. Наиболее целесообразной является классификация задвижек по конструкции затвора. По этому признаку задвижки могут быть объединены по основным типам: кли­новые и параллельные задвижки. По этому же признаку клиновые задвижки могут быть с цельным, упругим или составным клином. Параллельные задвижки можно подразделить на однодисковые и двухдисковые. В зависимости от кон­струкции системы винт – гайка и ее расположения (в среде или вне ее) задвижки могут быть с выдвижным и с невыдвижным шпинделем (рис. 26, 27).

На нефтепроводах обычно используется стальные клиновые задвижки с электроприводами на Ру = 6,4–8,0 МПа и Dy = 700–1 200 мм.


мастера по добыче нефти, газа и конденсата




Рис. 31. Задвижка для воды ЗВЭ

Рис. 32. Задвижка для воды ЗВР





Поделиться с друзьями:


Дата добавления: 2015-06-04; Просмотров: 1052; Нарушение авторских прав?; Мы поможем в написании вашей работы!


Нам важно ваше мнение! Был ли полезен опубликованный материал? Да | Нет



studopedia.su - Студопедия (2013 - 2026) год. Все материалы представленные на сайте исключительно с целью ознакомления читателями и не преследуют коммерческих целей или нарушение авторских прав! Последнее добавление




Генерация страницы за: 0.009 сек.