Студопедия

КАТЕГОРИИ:


Архитектура-(3434)Астрономия-(809)Биология-(7483)Биотехнологии-(1457)Военное дело-(14632)Высокие технологии-(1363)География-(913)Геология-(1438)Государство-(451)Демография-(1065)Дом-(47672)Журналистика и СМИ-(912)Изобретательство-(14524)Иностранные языки-(4268)Информатика-(17799)Искусство-(1338)История-(13644)Компьютеры-(11121)Косметика-(55)Кулинария-(373)Культура-(8427)Лингвистика-(374)Литература-(1642)Маркетинг-(23702)Математика-(16968)Машиностроение-(1700)Медицина-(12668)Менеджмент-(24684)Механика-(15423)Науковедение-(506)Образование-(11852)Охрана труда-(3308)Педагогика-(5571)Полиграфия-(1312)Политика-(7869)Право-(5454)Приборостроение-(1369)Программирование-(2801)Производство-(97182)Промышленность-(8706)Психология-(18388)Религия-(3217)Связь-(10668)Сельское хозяйство-(299)Социология-(6455)Спорт-(42831)Строительство-(4793)Торговля-(5050)Транспорт-(2929)Туризм-(1568)Физика-(3942)Философия-(17015)Финансы-(26596)Химия-(22929)Экология-(12095)Экономика-(9961)Электроника-(8441)Электротехника-(4623)Энергетика-(12629)Юриспруденция-(1492)Ядерная техника-(1748)

Описание горячего цеха




В горячем цехе завершается технологический процесс приготовления пищи. Именно в этом цехе осуществляется тепловая обработка разнообразных продуктов, доводятся до готовности полуфабрикаты, приготовляются первые, вторые и сладкие блюда, подготовляются продукты для холодных блюд, а иногда (на небольших по объему выпускаемой продукции предприятиях) выпекаются и кондитерские изделия.

Горячий цех оборудуется плитами, пище-варочными котлами с подводкой холодной и горячей воды, жарочными шкафами, электросковородами, холодильными шкафами, стеллажами, производственными столами.

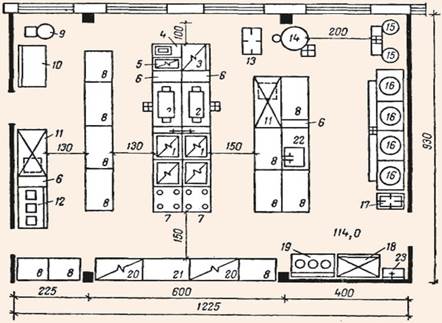
Примерный план горячего цеха ресторана на 300 мест:
1 - плита электрическая четырехконфорочная ПЭСМ-4Ш; 2 - сковорода электрическая СЭСМ-0,5; 3 - шкаф жарочный электрический; 4 - фритюрница ФЭСМ-20; 5 - плита электрическая двухконфорочная для непосредственного жаренья; 6 - вставка к тепловому оборудованию; 7-мармит электрический МСЭСМ-50 для соусов; 8 - стол производственный СП-1470; 9 - универсальный привод ПГ-0,6; 10 - ^тол для установки средств малой механизации; 11 ~ стол охлаждаемый СОЭСМ-2; 12 - печь шашлычная; 13 - стеллаж передвижной; 14 - котел пищеварочный КПЭ-100; 15 - электрокипятильник КРНЭ-100Б; 16 - котел пищеварочный КПЭСМ-60; 17- ванна передвижная ВПГСМ для промывки гарниров; 18 - шкаф холодильный ШХ-0,4М; 19 - прилавок-мармит для первых блюд; 20 - стойка раздаточная электрическая СРТЭСМ; 21 - стойка раздаточная СРСМ; 22 - стол со встроенной моечной ванной СМВСМ; 23 – раковина

1.4 Организация рабочего места при приготовлении второго блюда «Солянка мясная сборная»

Технологическая операция Технологическое оборудование Инвентарь, инструменты Посуда для приготовления для отпуска
1.Механическая обработка овощей Производственные столы Картофелеочистительная машина МОК-125 Овощерезательная машина МРО-200 Весы ВНЦ-10 Холодильная камера КХН-2-6М Поварские ножи и разделочные доски с маркировкой «ОС», «зелень» Гастроемкости для продуктов  
2.Варка бульона   Электрическая плита Е1100-4 Весы ВНЦ-10 Кастрюли, сито Кастрюли, раздаточные ложки  
3. Пассерование овощей Электрическая плита Е1100-4 Весы ВНЦ-10 Лопатки   Сковорода  
4.Приготовление супа Электрический котел Передвижные табуреты Кастрюли, половники  
5.Отпуск блюда Весы ВНЦ-10 Холодильная камера КХН-2-6М Передвижные табуреты Половники Суповая тарелка

Охрана труда в горячем цехе:




Поделиться с друзьями:


Дата добавления: 2015-07-13; Просмотров: 6642; Нарушение авторских прав?; Мы поможем в написании вашей работы!


Нам важно ваше мнение! Был ли полезен опубликованный материал? Да | Нет



studopedia.su - Студопедия (2013 - 2026) год. Все материалы представленные на сайте исключительно с целью ознакомления читателями и не преследуют коммерческих целей или нарушение авторских прав! Последнее добавление




Генерация страницы за: 0.01 сек.