Студопедия

КАТЕГОРИИ:


Архитектура-(3434)Астрономия-(809)Биология-(7483)Биотехнологии-(1457)Военное дело-(14632)Высокие технологии-(1363)География-(913)Геология-(1438)Государство-(451)Демография-(1065)Дом-(47672)Журналистика и СМИ-(912)Изобретательство-(14524)Иностранные языки-(4268)Информатика-(17799)Искусство-(1338)История-(13644)Компьютеры-(11121)Косметика-(55)Кулинария-(373)Культура-(8427)Лингвистика-(374)Литература-(1642)Маркетинг-(23702)Математика-(16968)Машиностроение-(1700)Медицина-(12668)Менеджмент-(24684)Механика-(15423)Науковедение-(506)Образование-(11852)Охрана труда-(3308)Педагогика-(5571)Полиграфия-(1312)Политика-(7869)Право-(5454)Приборостроение-(1369)Программирование-(2801)Производство-(97182)Промышленность-(8706)Психология-(18388)Религия-(3217)Связь-(10668)Сельское хозяйство-(299)Социология-(6455)Спорт-(42831)Строительство-(4793)Торговля-(5050)Транспорт-(2929)Туризм-(1568)Физика-(3942)Философия-(17015)Финансы-(26596)Химия-(22929)Экология-(12095)Экономика-(9961)Электроника-(8441)Электротехника-(4623)Энергетика-(12629)Юриспруденция-(1492)Ядерная техника-(1748)

Планировка станций




Расчет количества автомобилей технической помощи

Для оказания технической помощи на дороге дорожным станциям выделяются автомобили.

Расчет количества этих автомобилей проводится в следующей последовательности:

1. Вначале определяется количество автомобилей, которым потребуется техническая помощь:

, (1.11)

 

где N – число автомобилей в зоне действия СТО, шт.;

– среднегодовой пробег автомобилей в зоне действия станции, км;

– наработка на дорожный отказ, км.

 

2. Количество дорожных отказов в течении суток:

, (1.12)

где D – число дней эксплуатации автомобиля в году, дни.

 

3. Количество автомобилей технической помощи:

, (1.13)

где – сменная производительность автомобиля технической помощи; f=2-3 автомобиля.

 

 

Под планировкой СТО понимается компоновка или взаимное расположение производственных, складских и административно-бытовых помещений в плане или отдельно стоящих зданий (сооружений), предназначенных для обслуживания и ремонта автомобилей.

Планировка станций технического обслуживания определяется в основном схемой технологического процесса, назначением, мощностью и размерами предприятия, а также строительными нормами и правилами проектирования предприятий по обслуживанию автомобилей.

В основе планировочного решения лежит схема технологического процесса и производственная программа предприятий по видам обслуживания и ремонта.

Площадь земельного участка для предприятия должна превышать площадь застройки не менее чем в 3-4 раза. Удобным считаются горизонтальные участки, имеющие наибольшую длину вдоль проезда общего пользования.

Состав помещений определяется мощностью станций обслуживания и производственной программой.

В помещениях постов технического обслуживания и ремонта допускается размещать окрасочную камеру и посты для ремонта кузовов с применением сварки при условии, что указанные посты должны быть ограждены несгораемыми экранами высотой 1,8 м от пола и располагаться на расстоянии не менее 15 м от открытых проемов окрасочной камеры.

Весьма важное значение при разработке планировочного решения имеет технологическая взаимосвязь отдельных производственных зон и участков.

Обычно на станциях технического обслуживания основным помещением является зона технического обслуживания и ремонта, которая по характеру производственного процесса должна быть связана со всеми участками.

 

Примеры планировочных решений ряда зон и участков представлены на рис.1.1. и 1.2.

 

Геометрические размеры зон технического обслуживания, ремонта и хранения определяются: габаритными размерами автомобилей, расстояниями между автомобилями на постах и автомобиле-местах хранения, а также между автомобилями и элементами зданий или оборудованием согласно СНиП 11-93-74, шириной проезда автомобилей в зонах и методом расстановки автомобилей.

Взаимное расположение производственных помещений определяется технологическими, строительными, противопожарными и санитарными требованиями. Малярный, обойный и кузовной участки по условиям технологического процесса и противопожарных требований размещают смежно. Агрегатно-механический участок располагают около складов запасных частей и материалов.

Посты технического обслуживания по технологической взаимосвязи располагают вблизи помещений для карбюраторных, электротехнических, аккумуляторных и шинных работ.

Посты текущего ремонта приближают к помещениям для выполнения агрегатных, слесарно-механических, сварочных, кузовных и малярных работ, а также к складам запасных частей и материалов.

 

основное направление движения

- - - возможное направление движения

Рис 1.1. Типовая организация кузовного и окрасочного отделения

а- вентиляционная камера; б – обойное отделение; в – кузовной участок; г – краско-приготовительное отделение; д - окрасочный участок;

1-машина швейная; 2-стенд для обивки сидений; 3-стол закройщика; 4-верстак обойщика 5-стеллаж; 6-точильный станок; 7-установка для правки кузовов; 8-опрокидыватель для легковых автомобилей; 9-тележка для перевозок сварочных баллонов; 10-правочноя плита; 11-сварочный трансформатор; 12-стол электросварщика; 13-металлический экран; 14-стол газосварщика; 15-стол для приготовления красок; 16-краскомешалка; 17-шкаф для лаков; 18-вискозометр на подставке; 19-комбинированная камера для окраски и сушки; 20-пульт управления.

 

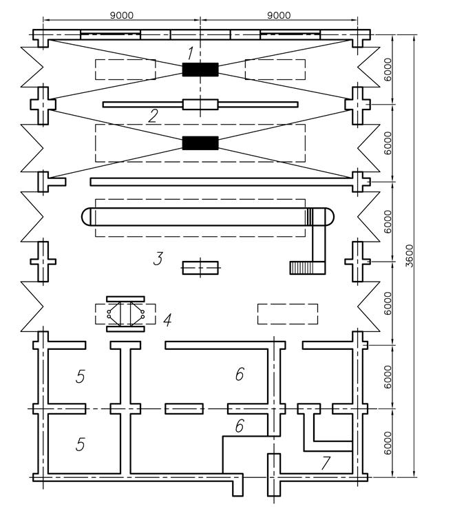
Рис.1.2.Схема типовой организации постов участка

(постов) технического обслуживания

и текущего ремонта:

1-подъемник двухстоечный электромеханический;2- подъемник четырехстоечный электромеханический; 3-зона размещения вспомогательного оборудования и инструмента; 4-вентиляционный канал и устройство для перемещения автомобиля.

 

Для аккумуляторных участков должны предусматриваться два помещения: одно для ремонта, а другое для зарядки аккумуляторов. Отдельное помещение для зарядки аккумуляторов может не предусматриваться, если одновременно заряжаются е более 10 аккумуляторов (их заряд должен производиться в специальном шкафу с индивидуальным вентиляционным отсосом).

На предприятиях по обслуживанию автомобилей должны предусматриваться отдельные складские помещения смазочных, лакокрасочных материалов, химикатов, сгораемых материалов (текстильные, бумажные, картонные, резиновые и т.д.), а также деталей в сгораемой таре.

Помещение клиентской должно иметь непосредственное сообщение с кабинетом администратора, с конторой (стол заказов) и бухгалтерией (сообщение с последними может осуществляться через внутренние окошки). Кроме того, клиентская должна иметь сообщение с буфетом и бытовыми помещениями для клиентов (умывальная и уборная). Если на станции предусмотрена продажа запасных частей и принадлежностей, то желательна непосредственная связь клиентской через торговый прилавок со складом станции. Во всех случаях клиентская должна быть расположена со стороны основного подъезда к зданию станции и иметь сообщение с помещением для приемки и сдачи автомобилей.

 

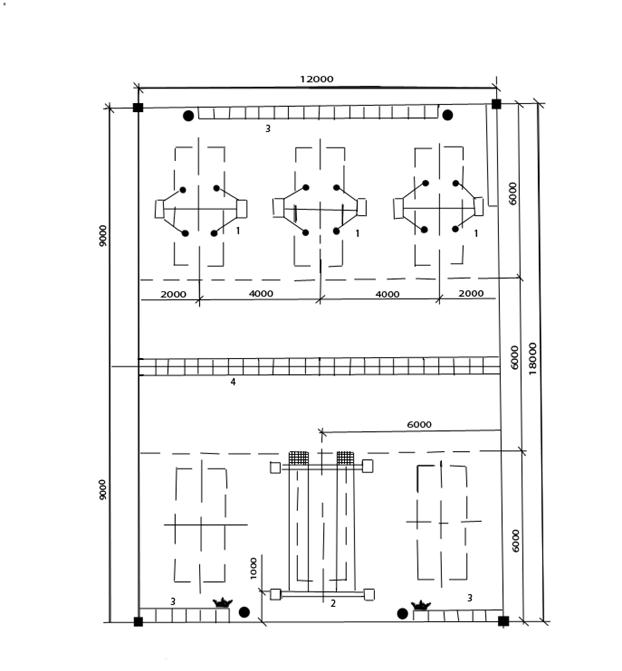
Пример планировочного решения дорожной станции приведен на рис. 1.3.

 

Выбирая конструкторскую схему здания СТО, обычно стремятся избежать промежуточных опор и поэтому часто применяют однопролетную схему. Многопролетную схему увязывают с планировкой так, чтобы колонны не служили помехой для движения и установки автомобилей. Величина и число пролетов определяется в основном количеством и расположением постов, а также геометрическими параметрами расчетной модели автомобиля.

Для мелких и средних станций обслуживания обычно удается ограничиться применением однопролетной конструктивной схемы.

Для станций обслуживания применяются сетки колонн 12х6, 18х6, 24х6, 12х12, 18х12, 24х12, 24х24, 36х36 м. при этом стремятся использовать унифицированные строительные конструкции. Полезная высота производственных и складских помещений принимается равной 4,0-4,5; 5-5,5;5,5 м.

 

Здания станций технического обслуживания обычно одноэтажные.

 

При расположении станции технического обслуживания в двух зданиях в одном из них следует располагать административные, торговые, бытовые и прочие помещения, посещаемые клиентами, а в другом – помещения производственного назначения. В этом случае между зданиями обычно располагаются участок приема и выдачи автомобилей.

 

 

Рис.1.3. План производственного корпуса дорожной

станции обслуживания на три поста:

1-мойка легковых автомобилей; 2-мойка автобусов; 3-обслуживание и ремонт автобусов; 4-обслуживание и ремонт легковых автомобилей; 5-склады; 6-бытовые помещения; 7-клиентская.

 

 

Устройств заправочных пунктов в составе станции обслуживания следует избегать, так как они усложняют и удорожают строительство вследствие значительного увеличения площади участка и повышения требований к его застройке.

В случае размещения в комплексе станции технического обслуживания АЗС необходимо учитывать в общей транспортной схеме генплана отдельный транспортный поток к АЗС со своей накопительной площадкой. При этом транспортный поток не должен пересекать поток заезда и выезда автомобилей на станцию обслуживания.

В целях сокращения стоимости строительства дорожных станций рекомендуется располагать их на соседних участках с участками зданий дорожной службы, если такое расположение не противоречит основному назначению станции. При этом уменьшаются затраты на источники водоснабжения, теплоснабжения и электроснабжения, на коммуникации и благоустройство. Кроме того, такое расположение станций облегчает решение жилищного вопроса для персонала.

 




Поделиться с друзьями:


Дата добавления: 2014-11-29; Просмотров: 2199; Нарушение авторских прав?; Мы поможем в написании вашей работы!


Нам важно ваше мнение! Был ли полезен опубликованный материал? Да | Нет



studopedia.su - Студопедия (2013 - 2026) год. Все материалы представленные на сайте исключительно с целью ознакомления читателями и не преследуют коммерческих целей или нарушение авторских прав! Последнее добавление




Генерация страницы за: 0.008 сек.